Roomy three-bed semi with garage and garden — chain free and ready to modernise..
- No upward chain, ready for quick completion
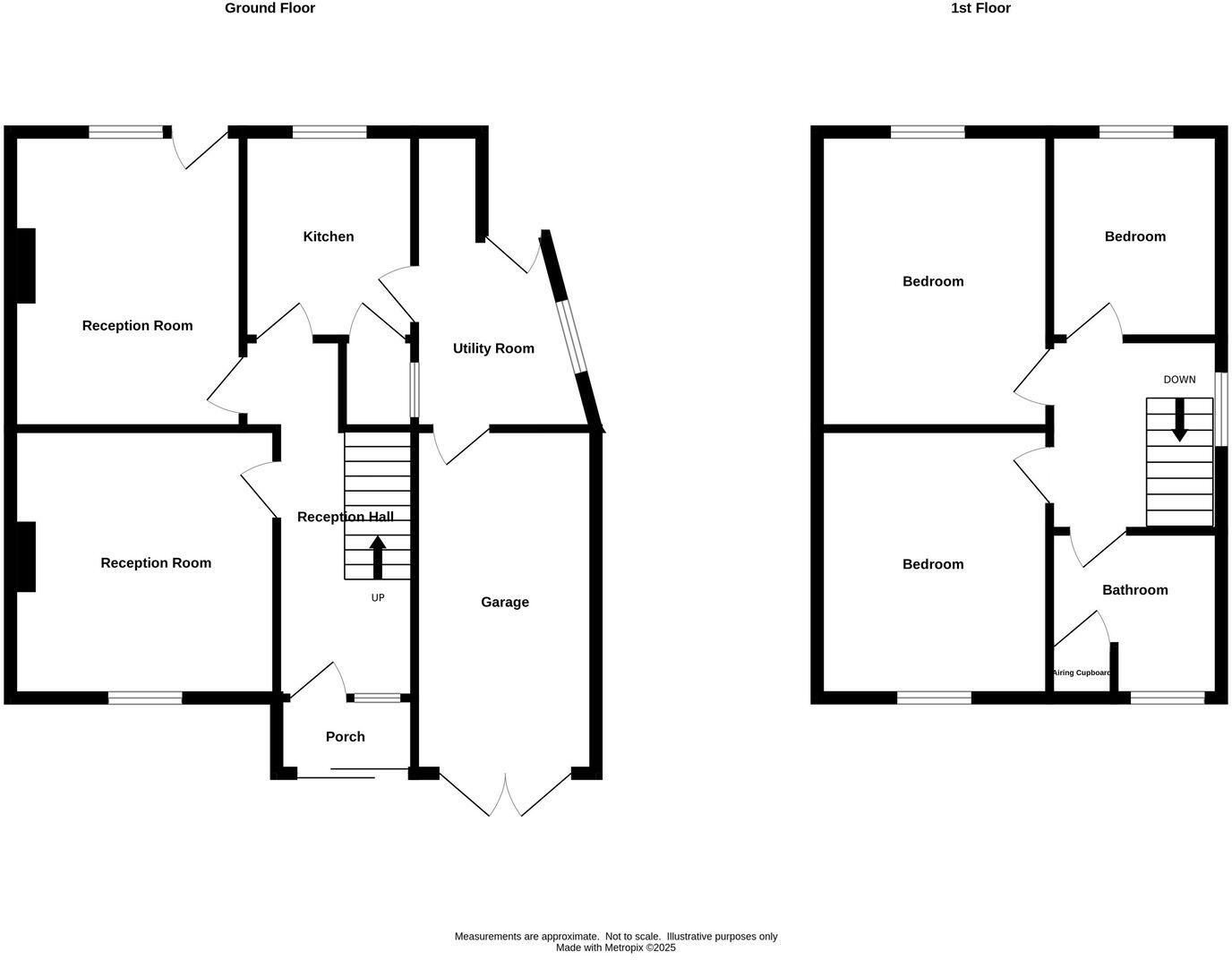
- Spacious footprint approx. 1,454 sqft, wide frontage
- Two good reception rooms and side vestibule utility area
- Three decent bedrooms, single family bathroom with shower
- Fitted kitchen with oven and hob, pantry off
- Garage and decent-sized rear garden, side gate access
- Dated interior in places — needs modernisation and updating
- Area records above-average crime; EPC D
A deceptive, spacious three-bedroom semi-detached home set on a wide plot in Halesowen, offered with no upward chain. The house provides two good reception rooms, a fitted kitchen with oven and hob, and a useful side vestibule with utility recess leading to an attached garage. The rear dining room opens to the garden, giving practical family flow and scope for extension subject to planning.
The property sits well for Rowley Train Station and local amenities, with several Good-rated primary and secondary schools nearby — a clear plus for families. The home benefits from gas central heating, double glazing and all mains services connected. With a large overall size (about 1,454 sqft) and decent plot, there is clear potential to modernise and add value.
Buyers should note the house is dated in places and will need modernising; the EPC is D and some internal fittings reflect an older era. There is a single family bathroom and the area records above-average crime, which prospective buyers should consider. Council Tax Band C and freehold tenure are practical advantages.
Ideal for a family or buyer seeking a roomy, chain-free property to renovate and personalise, this home combines good transport links and schools with obvious refurbishment potential. Viewing recommended to appreciate the size, layout and garden access firsthand.
3 bedroom semi-detached house for sale in HALESOWEN, Shenstone Valley Road, B62 — £315,000 • 3 bed • 1 bath • 872 ft²
3 bedroom semi-detached house for sale in Willowsbrook Road, Halesowen, B62 9RG, B62 — £270,000 • 3 bed • 2 bath • 1103 ft²
3 bedroom semi-detached house for sale in HALESOWEN, Albert Road, B63 — £275,000 • 3 bed • 1 bath • 689 ft²
3 bedroom semi-detached house for sale in Gower Road, Halesowen, B62 — £400,000 • 3 bed • 1 bath • 1023 ft²
3 bedroom semi-detached house for sale in HALESOWEN, Willowsbrook Road, B62 — £305,000 • 3 bed • 1 bath • 894 ft²
3 bedroom semi-detached house for sale in HALESOWEN, Woodridge Road, B63 — £250,000 • 3 bed • 1 bath • 758 ft²










































