Stylish central home with private patio and two parking spaces, minutes from station.
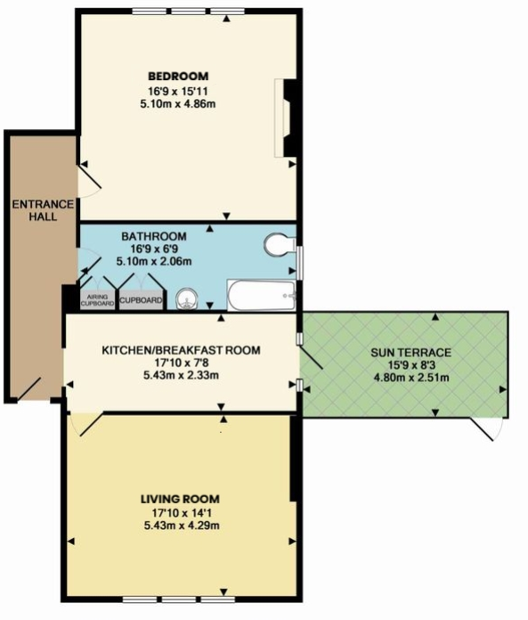
Large 766 sq ft one-bedroom layout with high ceilings and period features
Designer kitchen, spa bathroom and underfloor heating throughout key rooms
Private patio plus two allocated off-street parking spaces
Soundproofing and new boiler included in recent renovation
Share of Freehold and offered chain free
Lease has 85 years left — renewal required; confirm costs and timing
Service charge circa £2,100 per year
Broadband speeds reported slow in the area
This beautifully renovated one-bedroom Victorian flat blends period character with contemporary finishes. High ceilings, original cornicing and tall sash windows give a generous feel across approximately 766 sq ft, unusual for a one-bed, while a private patio provides an outdoor spot on a tree-lined street.
Refurbishment highlights include a designer kitchen with integrated appliances and underfloor heating, a spa-like bathroom with underfloor heating, bespoke hallway storage, soundproofing and a new boiler. Two allocated off-street parking spaces and use of communal grounds add rare practical benefits close to Reigate town centre and the station.
Important considerations: the current lease has 85 years remaining and will need renewing promptly; a new long lease is stated to be created as part of the sale, but buyers should confirm terms and costs. The property has an average service charge of £2,100 per year and broadband speeds in the area are reported slow. The building is of solid brick construction and may have limited cavity insulation compared with modern builds.
Offered Share of Freehold and chain free, this home suits a buyer seeking a move-in-ready, characterful central residence or a high-spec pied-à-terre. Verify lease-extension costs and service charge details before proceeding.
1 bedroom flat for sale in Raglan Road, Reigate, RH2 — £400,000 • 1 bed • 1 bath • 936 ft²
1 bedroom apartment for sale in Holmesdale Road, Reigate, RH2 — £270,000 • 1 bed • 1 bath • 625 ft²
2 bedroom apartment for sale in Raglan Road, Reigate, Surrey, RH2 — £400,000 • 2 bed • 2 bath • 705 ft²
3 bedroom flat for sale in 3 Yorke Road, Reigate, RH2 — £550,000 • 3 bed • 2 bath • 1264 ft²
1 bedroom flat for sale in Wray Park Road, Reigate, RH2 — £375,000 • 1 bed • 1 bath • 452 ft²
2 bedroom apartment for sale in Wray Park Road, Reigate, Surrey, RH2 — £395,000 • 2 bed • 2 bath • 673 ft²


































































