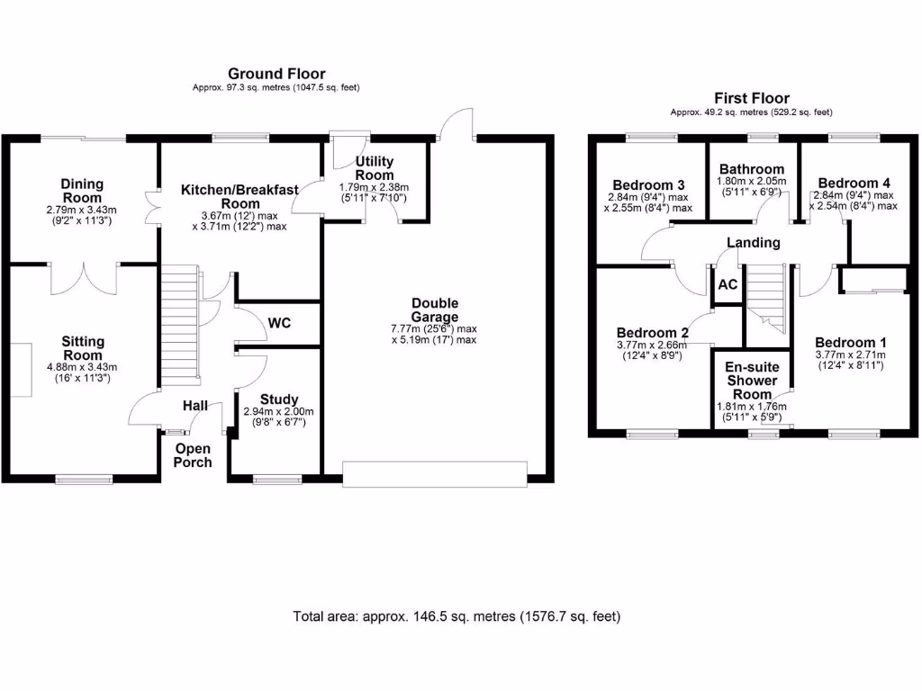
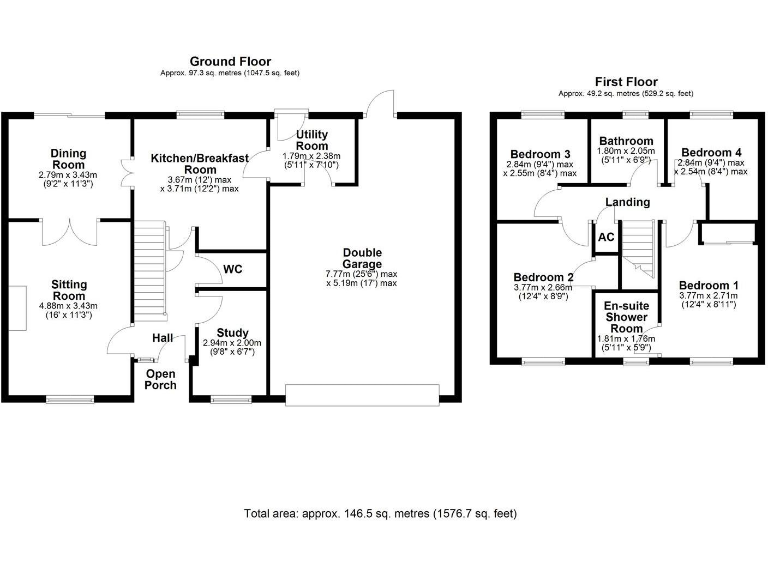
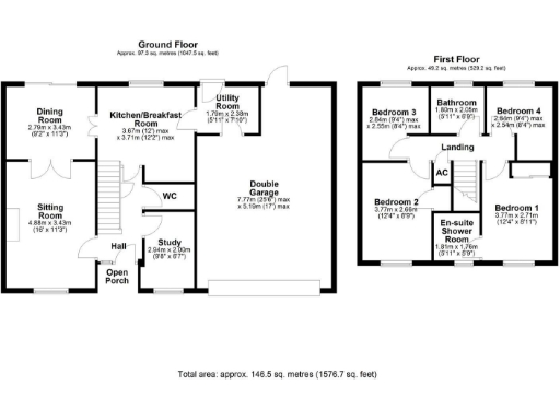
Spacious four-bedroom house with double garage and sunny private garden.
- Four bedrooms; main bedroom with en-suite and built-in wardrobes
- Three reception rooms plus study; flexible family space
- South-west facing rear garden with large patio and pergola
- Double garage with internal access, light and power
- New UPVC windows and doors fitted this year
- Average-sized plot depth; corner position gives extra side space
- Council tax above average for the area
- Some nearby primary schools rated 'requires improvement' (check local options)
This detached four-bedroom house sits on an attractive corner plot in a quiet cul-de-sac, a short walk from Devizes Market Place, the Kennet & Avon Canal and surrounding Wiltshire countryside. The layout suits a growing family: three reception rooms give space for formal dining, home working and relaxed living, while the kitchen/breakfast room and adjoining utility are practical for everyday life. New UPVC windows and doors were fitted this year and the property benefits from mains gas central heating.
The main bedroom includes built-in wardrobes and an en-suite; three further bedrooms share a family bathroom upstairs. On the ground floor there is a study and a cloakroom, plus internal access to a double garage with light and power. The enclosed south-west rear garden has a large patio (partly covered by a pergola) and a lawn — ideal for afternoon sun and family entertaining. Garage access to the garden means you can move bikes and garden tools without going through the house.
Practical points to note: the house is an average-sized late 20th-century suburban home (circa 1991–95) with double glazing installed before 2002 and cavity wall construction. Council tax sits above average for the area. The plot is corner-positioned but modest in depth, so gardeners should expect more limited rear depth despite useful side garden space. Nearby schools include good and improving options, though some local primaries are rated as requiring improvement.
Overall this is a well-presented family home offering flexible reception space, strong parking and garage provision, and a sunny, private garden. It will suit buyers seeking a comfortable, low-risk family base close to town amenities and country walks, with scope to update interiors to personal taste.
5 bedroom detached house for sale in Bailey Close, Devizes, SN10 — £365,000 • 5 bed • 1 bath • 1204 ft²
4 bedroom detached house for sale in Great Western Close, Devizes, SN10 — £625,000 • 4 bed • 2 bath • 1528 ft²
4 bedroom detached house for sale in Broadleas Park, Devizes, SN10 — £425,000 • 4 bed • 2 bath • 1121 ft²
4 bedroom detached house for sale in Massey Road, Devizes, SN10 — £415,000 • 4 bed • 2 bath • 1223 ft²
3 bedroom detached house for sale in Cornfield Road, Devizes, SN10 — £325,000 • 3 bed • 1 bath • 1071 ft²
5 bedroom detached house for sale in Woodford Close, Devizes, Wiltshire, SN10 — £700,000 • 5 bed • 3 bath • 2758 ft²






















































































