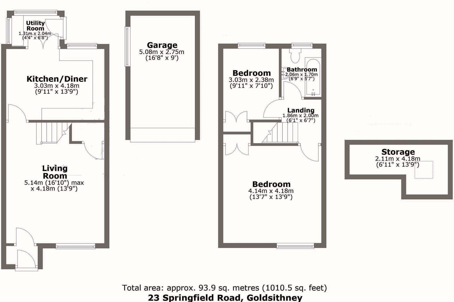
Ready-to-move 2-bed with garage, parking and lawn close to coast and countryside.
No onward chain — ready for prompt relocation
Modern kitchen and useful utility room
Loft room gives home office or storage flexibility
Off-street parking for up to three cars plus garage
Front and rear gardens with timber decking
Oil-fired central heating — fuel cost consideration
Slow broadband speeds in the area
Modest plot size; not a large garden
Set on Springfield Road in sought-after Goldsithney, this two-bedroom semi offers comfortable, move-in-ready living with no onward chain. The ground floor has a bright reception room, modern kitchen-dining area and handy utility, while two well-proportioned bedrooms and a family bathroom occupy the first floor. A flexible loft room provides extra storage or a home-office option.
Outside there are landscaped front and rear gardens, timber decking and private parking for up to three cars plus a single garage. The plot is modest but well arranged, and the property enjoys pleasant countryside views and easy access to coastal walks, village amenities and nearby Penzance.
Practical points to note: heating is by an oil-fired boiler to radiators, broadband speeds are reported slow, and the garden/parking space is compact rather than expansive. The house was built in the late 1970s/early 1980s and is double glazed; the EPC rating is D (67). Overall this is a tidy, well-presented home suited to small families or couples seeking village life with straightforward parking and extra loft space.
3 bedroom semi-detached house for sale in St. Petry, Goldsithney, Penzance, Cornwall, TR20 — £350,000 • 3 bed • 1 bath • 1006 ft²
2 bedroom bungalow for sale in Meadow View, Goldsithney, Penzance, Cornwall, TR20 — £365,000 • 2 bed • 1 bath • 821 ft²
3 bedroom detached bungalow for sale in Goldsithney, Penzance TR20 — £425,000 • 3 bed • 1 bath • 1281 ft²
2 bedroom terraced house for sale in Tregurtha View, Goldsithney, Penzance, Cornwall, TR20 — £235,000 • 2 bed • 1 bath • 671 ft²
3 bedroom terraced house for sale in St. Aubyns, Goldsithney, TR20 — £295,000 • 3 bed • 2 bath • 1237 ft²
3 bedroom end of terrace house for sale in St. Aubyns, Goldsithney, Penzance, Cornwall, TR20 — £260,000 • 3 bed • 1 bath • 1083 ft²


















































































