Refurbished family home with annexe and large garden in coastal village.
Newly renovated five-bedroom detached house with annexe and gym
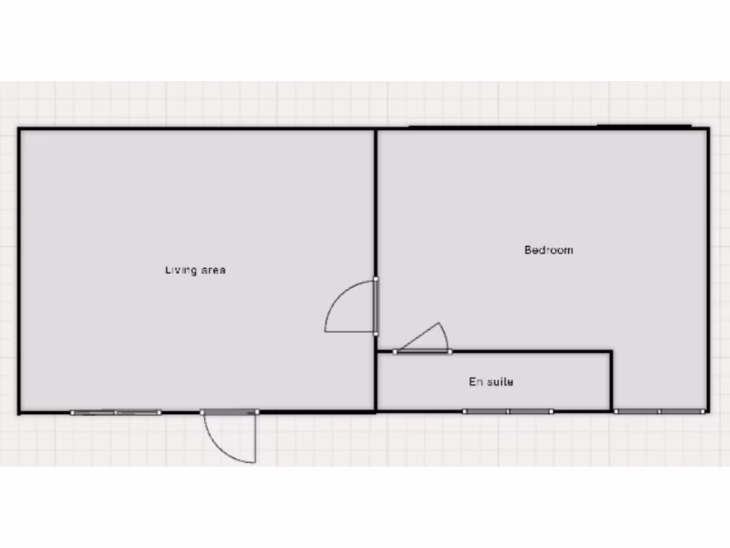
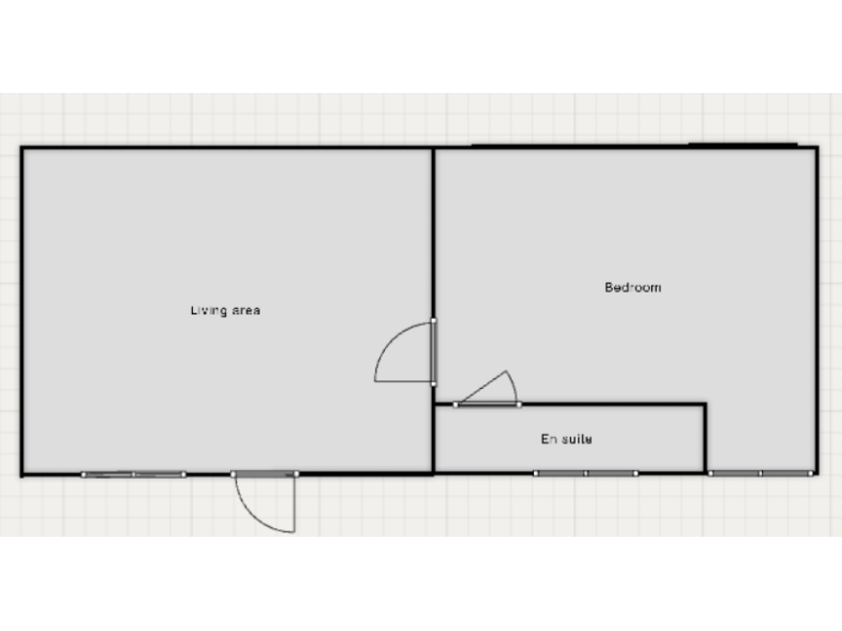
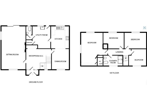
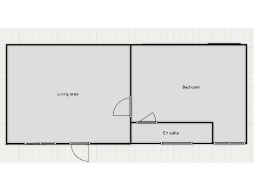
This recently renovated five-bedroom detached house sits on a large plot in the village of Ludgvan, about 2.5 miles from Penzance. The main house includes four bedrooms, an integral garage and a gym, while a one-bedroom annexe with en-suite offers guest accommodation or rental potential. Modern upgrades include double glazing and an air source heat pump serving radiators.
The property suits families seeking village life with good local schools nearby and easy access to St Michael’s Way and surrounding countryside. The rear patio and sizable garden give private outdoor space, and driveway parking for three cars is practical for households or visitors.
Notable practical points: the home is freehold, has fast broadband and excellent mobile signal, and is at no risk of flooding. However, internal living space is described as relatively small compared with the generous plot, and council tax is above average. The wider area is classed as relatively deprived and local crime is average, facts that may influence buyers considering community services and long-term value.
Overall, the house offers a freshly refurbished, energy-efficient base with flexible accommodation (including an annexe) for family living or potential income, balanced by modest internal space and local socio-economic factors to bear in mind.
3 bedroom semi-detached house for sale in Carvossa Estate, Ludgvan, Penzance, Cornwall, TR20 — £280,000 • 3 bed • 2 bath • 1086 ft²
4 bedroom detached house for sale in St. Pirans Way, Perranuthnoe, TR20 — £833,000 • 4 bed • 3 bath • 2239 ft²
5 bedroom house for sale in Gulval, Penzance, Cornwall, TR20 — £900,000 • 5 bed • 3 bath • 1504 ft²
5 bedroom detached house for sale in Newmill, Penzance, TR20 — £875,000 • 5 bed • 3 bath • 1756 ft²
3 bedroom character property for sale in Helnoweth Cottages - Gulval - End of Terrace Full renovation, TR18 — £475,000 • 3 bed • 2 bath • 1302 ft²
5 bedroom semi-detached house for sale in Bay View Villas, Penzance, TR18 — £650,000 • 5 bed • 3 bath • 2049 ft²














































































































