N22 8NR - 2 bedroom apartment for sale in Myddleton Road, London, N22

View on Property Piper

2 bedroom apartment for sale in Myddleton Road, London, N22

Summary - FLAT A, 26, MYDDLETON ROAD N22 8NR

2 bed 1 bath Apartment

**Standout Features:**
- Two well-proportioned bedrooms
- Spacious living room with bright bay window
- Separate kitchen with ample storage
- Modern family bathroom
- Long leasehold with new double-glazed windows
- Prime location near amenities and schools
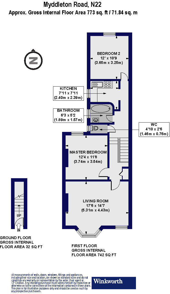
- Total area of 773 square feet

**Summary:**
Nestled in the charming Bowes Park area, this two-bedroom first-floor apartment offers comfortable living with the potential for personalization. Boasting a spacious reception room featuring a bright bay window, two double bedrooms, and a separate kitchen, this space is perfect for young families, first-time buyers, or investors. The modern bathroom adds a touch of convenience, while the new double-glazed windows enhance energy efficiency and noise reduction.

The apartment’s location is a significant draw, just moments away from the lively Myddleton Road, community gardens, and a picturesque river path. It's also surrounded by high-quality schools, including the Outstanding-rated Trinity Primary Academy. With Bowes Park Station and easy access to major underground lines, commuting to central London is effortless. However, prospective buyers should note that this property is located in an area with above-average crime rates. Overall, this charming home is a rare find at a competitive price of £425,000, providing ample opportunity for future value appreciation. Don't miss out on this inviting space that could be your next home or investment!

Property Details

Image Descriptions

Floorplan Description

Rooms

Textual Property Features

Detected Visual Features

EPC Details

Nearby Schools

Nearest Bars And Restaurants

,,,,}

Nearest General Shops

,,}

Nearest Grocery shops

,,}

Nearest Supermarkets

,,}

Nearest Religious buildings

,,}

Nearest Medical buildings

,,,}

Nearest Airports

,}

Nearest Leisure Facilities

,,,,}

Nearest Tourist attractions

,,}

Nearest Train stations

,,,,}

Nearest Bus stations and stops

,,,,}

Nearest Hotels

,,}

Tags

Local Market Stats

AirBnB Data

Similar Properties

Meta

High Res Images

Compatible Images

Low res Images

Thumbnails

Raw Images

High Res Floorplan Images

Compatible Floorplan Images

Low res Floorplan Images

FloorplanImages Thumbnail

Raw Floorplan Images