**Standout Features:**
- Unmodernised Grade II Listed Victorian townhouse
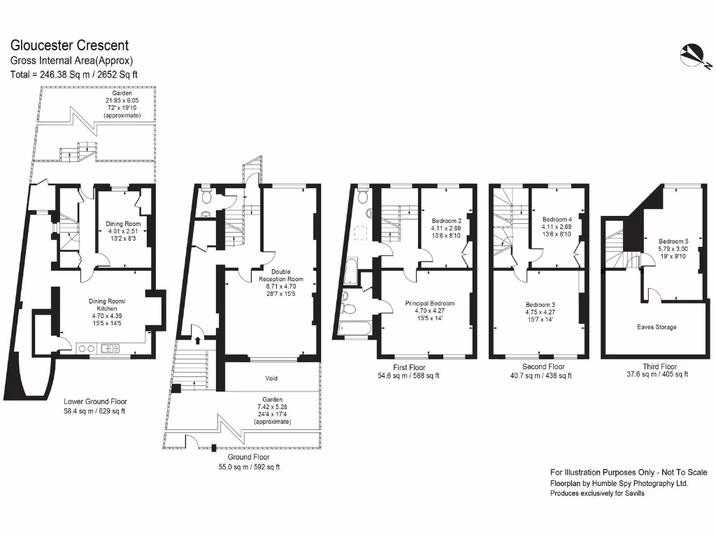
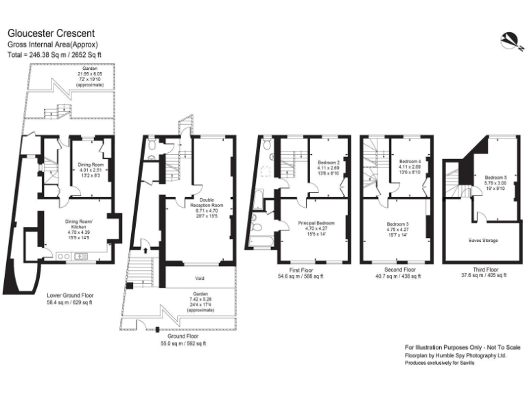
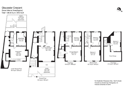
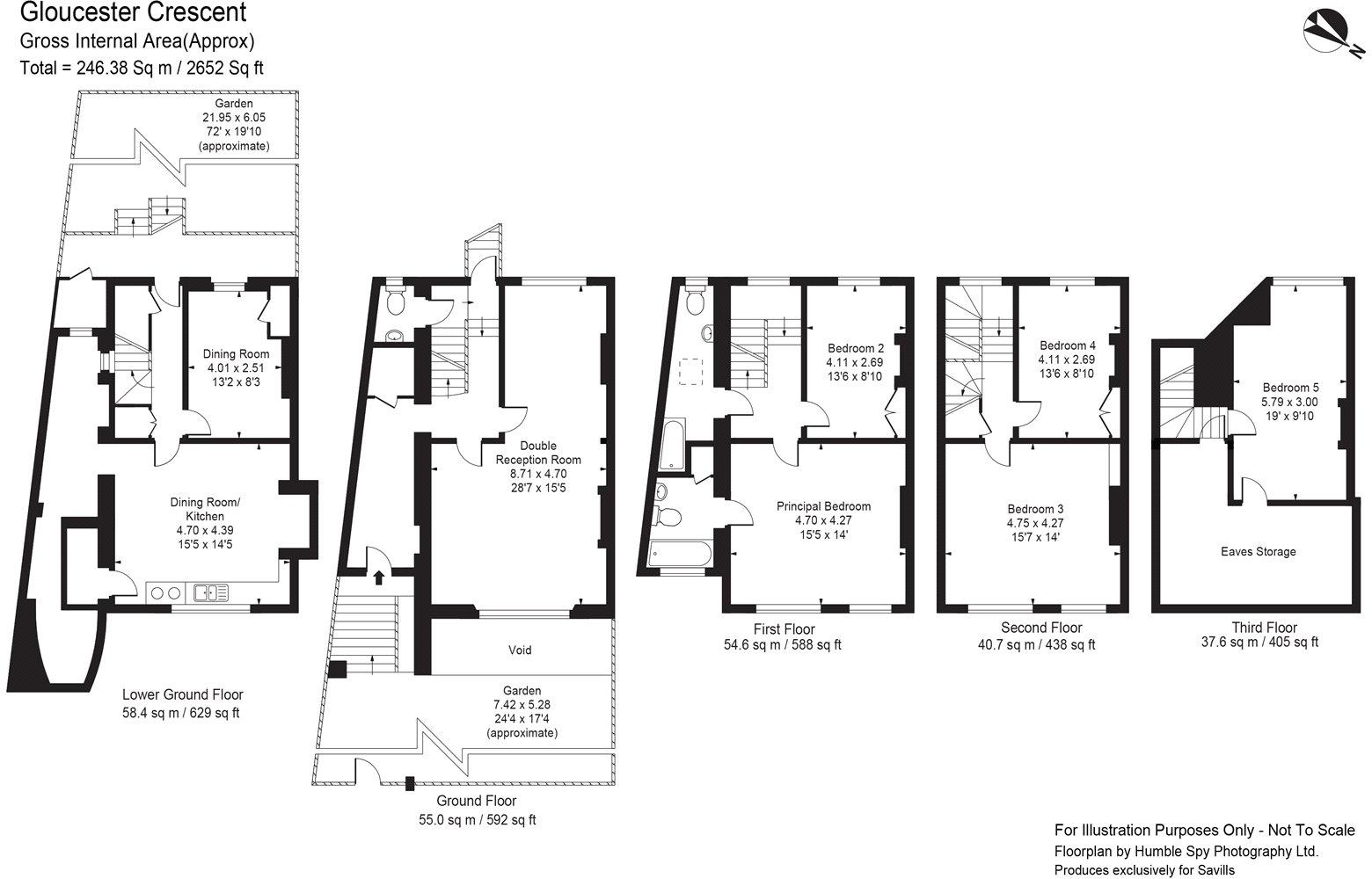
- Generous 2,652 sq ft of versatile living space
- Five spacious bedrooms and two bathrooms
- Grand high ceilings and period features throughout
- Expansive 72ft south-west facing garden
- Planning potential for extensions, subject to planning approval (STPA)
- Central location in the desirable Gloucester Crescent, close to Regent’s Canal and Regent’s Park
**Concise Summary:**
Discover the charm and potential of this unmodernised Grade II Listed Victorian townhouse nestled in the highly sought-after Gloucester Crescent. Spanning an impressive 2,652 sq ft, this expansive family home features grand high ceilings and period details, boasting five generous bedrooms and two bathrooms—offering the perfect canvas for creating a bespoke living space tailored to your taste.
Positioned just moments away from the vibrant atmosphere of Camden Town and the tranquil expanses of Primrose Hill, this property offers both leisure and convenience. Enjoy the excellent public transport links, only a short walk from Camden Town underground, providing quick access to the West End and beyond. The south-west facing garden offers tranquility amidst the urban landscape, with the possibility of extensions on the garden level and second floor over existing bathrooms (subject to planning approval).
While the house requires renovation, its character and potential make it a blank slate for the discerning buyer. Given its central location and desirable features, this property holds excellent appeal for families and investors alike. Don't miss this unique opportunity—properties like this in such a prime location are rarely available for long.
3 bedroom semi-detached house for sale in Gloucester Crescent, Primrose Hill, London, NW1 — £2,750,000 • 3 bed • 3 bath • 1968 ft²
5 bedroom terraced house for sale in Gloucester Crescent, Primrose Hill, London, NW1 — £3,150,000 • 5 bed • 2 bath • 2301 ft²
2 bedroom terraced house for sale in Gloucester Crescent, London, NW1 — £1,750,000 • 2 bed • 2 bath • 1257 ft²
5 bedroom terraced house for sale in Albert Street, Camden, NW1 — £2,975,000 • 5 bed • 4 bath • 2786 ft²
6 bedroom terraced house for sale in Crowndale Road, Camden, London, NW1 — £1,400,000 • 6 bed • 3 bath • 2024 ft²
3 bedroom end of terrace house for sale in Chalcot Crescent, Primrose Hill, London, NW1 — £3,195,000 • 3 bed • 2 bath • 1798 ft²


















































