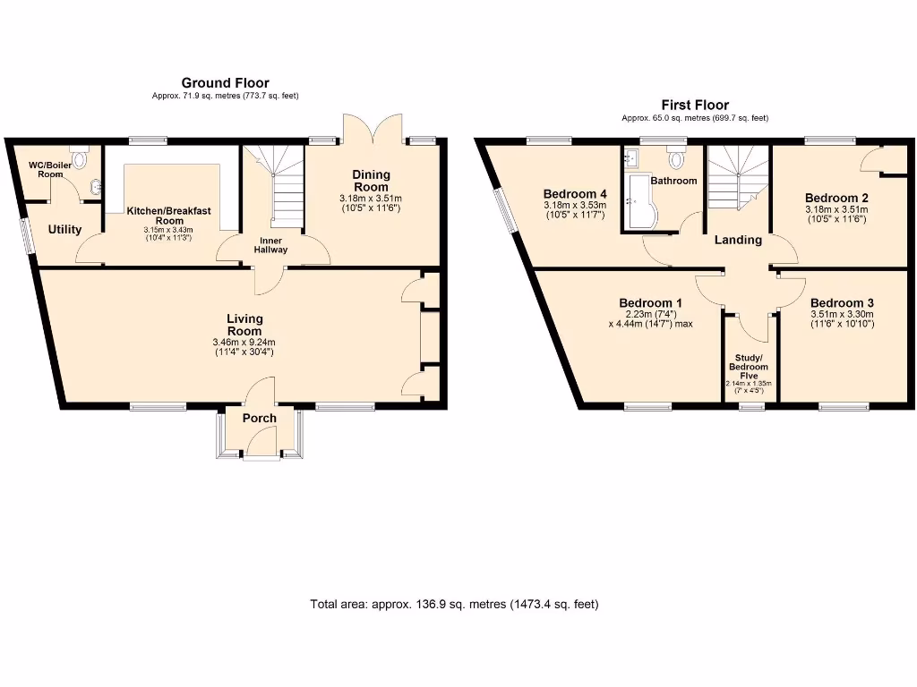
Five bedrooms and spacious 1,615 sq ft living space
Generous, well-established gardens and multiple seating areas
Off-street parking via tree-lined gravel driveway
Single bathroom only for five bedrooms
Oil-fired boiler with radiators; oil tank on site
Granite walls likely uninsulated; EPC rating E
Private drainage; buyer should verify condition and costs
Neighbouring pedestrian right of way and shared rear lane access
Set within the quiet hamlet of Trenear, this five-bedroom character cottage combines generous living space with sizeable, well-established gardens and off-street parking. The home’s exposed stonework, timber beams and sash windows create a warm, period feel, while modern touches in the kitchen and a sound-proofed studio add useful contemporary utility. Offered chain free on a freehold title, the property is about 1,615 sq ft with a decent plot and low local crime.
Practical considerations include a single family bathroom serving five bedrooms, oil-fired central heating and double glazing of unknown age. The granite external walls appear uninsulated (as-built), and the EPC is rated E — buyers should budget for potential energy upgrades and a survey to confirm insulation or structural details. Drainage is private, and the neighbouring property retains a pedestrian right of way over part of the front garden; the rear lane is shared.
The hamlet setting suits families or buyers seeking a peaceful rural base with reasonable road links to Helston and nearby towns. Broadband speeds are reported as fast and mobile signal average. Council tax is affordable and the property includes useful outbuildings: a large store/utility and a sound-proofed studio that could be home office, hobby room or rental space. A full inspection and RICS survey are recommended to verify services, construction and any maintenance needs.



































































































