Private courtyard, central amenities and low ongoing costs for easy urban living.
Two double bedrooms and one bathroom
Enclosed paved rear courtyard with outside light
Fitted kitchen with integrated appliances
Long lease remaining (992 years)
Service charge £800 (below average)
Town-centre location — shops and transport on the doorstep
Higher local crime rate — consider security measures
No private garden; on-street/communal parking only
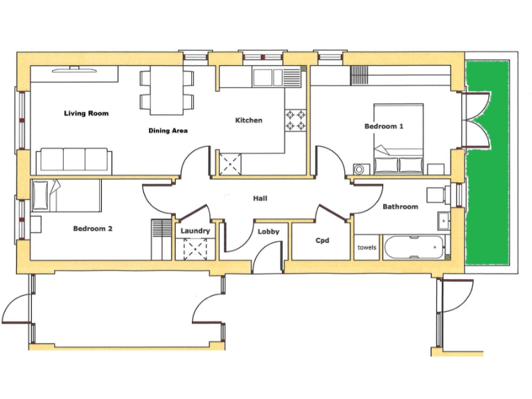
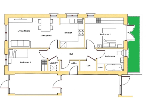
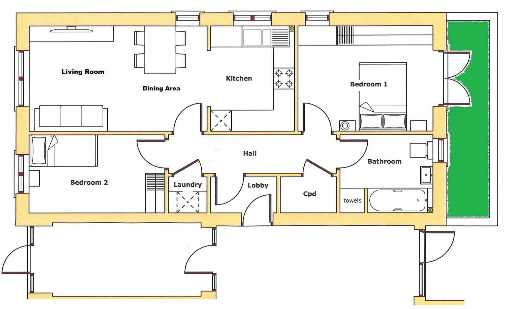
Discover a compact, well-presented apartment in the centre of Richmond, presented with neutral finishes and low-maintenance living. The layout includes a living/dining room, fitted kitchen with integrated appliances, two double bedrooms and a bathroom with shower over bath. A private paved rear courtyard gives an outdoor spot for morning coffee or storage.
Practical details support straightforward ownership: mains gas central heating with combi boiler, double glazing throughout and a long lease. The service charge is modest for the area, and council tax sits at Band B, keeping running costs manageable. Broadband and mobile signal are both strong in this town-centre location.
The flat sits within a communal retirement-style block close to shops, transport and local amenities, making it suitable for first-time buyers seeking a compact, central home or buy-to-let investors targeting reliable rental demand. Note the wider area records higher crime levels; prospective buyers should factor local safety and security measures into their decision.
Internally the apartment is average-sized rather than spacious; room proportions suit single occupants, couples or small households. There is potential to personalise finishes and storage to better match longer-term needs, but no major structural issues are indicated. On-street or communal parking is available immediately outside rather than private off-street parking.
2 bedroom flat for sale in Richemont Close, Richmond, DL10 — £250,000 • 2 bed • 2 bath • 574 ft²
1 bedroom apartment for sale in St. James Chapel Flats, Richmond, DL10 — £79,950 • 1 bed • 1 bath • 440 ft²
1 bedroom apartment for sale in Alexandra Way, Richmond, DL10 — £90,000 • 1 bed • 1 bath
3 bedroom end of terrace house for sale in Frenchgate, Richmond, DL10 — £210,000 • 3 bed • 1 bath • 926 ft²
2 bedroom mews property for sale in Fernlea Mews, Ryders Wynd, Richmond, DL10 — £230,000 • 2 bed • 2 bath • 882 ft²
2 bedroom end of terrace house for sale in New Road, Richmond, DL10 — £270,000 • 2 bed • 1 bath • 603 ft²










































