DL14 7BJ - 2 bedroom terraced house for sale in 22 Durham StreetBishop…

View on Property Piper

2 bedroom terraced house for sale in 22 Durham StreetBishop AucklandCo Durham, DL14

Summary - 22 DURHAM STREET BISHOP AUCKLAND DL14 7BJ

2 bed 1 bath Terraced

**Standout Features:**
- Two-bedroom terraced house in Bishop Auckland
- Spacious layout with large living areas
- No onward chain for hassle-free moving
- Close proximity to town center amenities
- Freehold tenure with very low council tax
- Potential for modernization and personalization

**Concerns:**
- High local crime rate
- Older construction with solid brick walls lacking insulation
- Double glazing installed prior to 2002

Situated in a residential area of Bishop Auckland, this charming Edwardian terraced house on Durham Street offers two generous bedrooms and a spacious layout, perfect for first-time buyers or investors seeking a rental opportunity. Enjoy the convenience of being just minutes from various town center amenities, including shops, pubs, and eateries, making daily life effortless. The absence of an onward chain allows for an easy transition into your new home, while the low council tax rates add to the value.

Boasting traditional features like high ceilings and a welcoming fireplace, this property invites you to explore its full potential, whether you’re ready to move in right away or looking to make updates over time. However, be mindful of the high local crime rate and the fact that the older construction may require some modernizing. With the right vision, you could transform this house into a comfortable sanctuary tailored to your lifestyle. Don’t let this opportunity slip away—schedule a viewing today!

Property Details

Brochure Descriptions

Image Descriptions

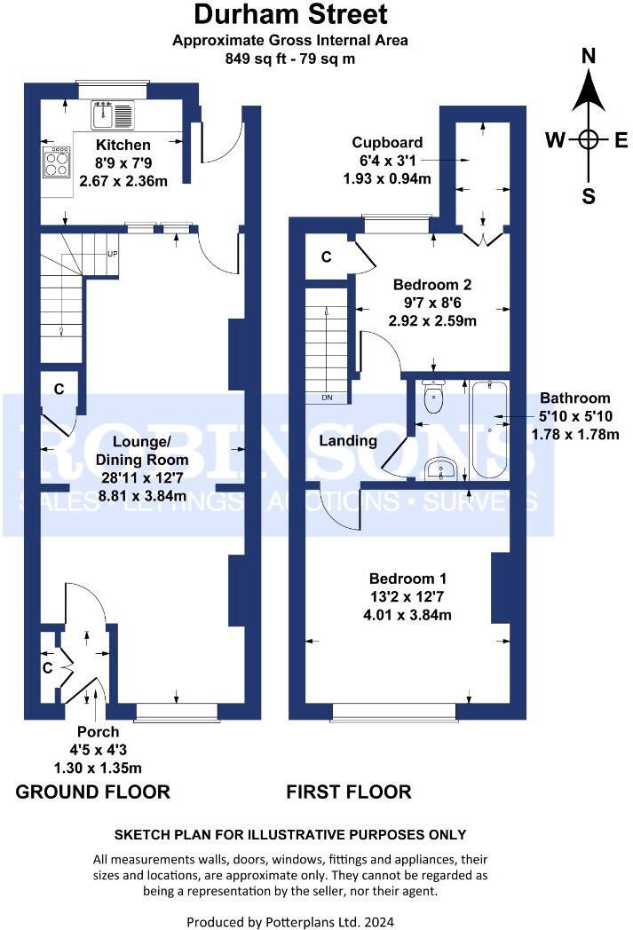
Floorplan Description

Rooms

Textual Property Features

Detected Visual Features

EPC Details

Nearby Schools

Nearest Bars And Restaurants

,,,,}

Nearest General Shops

,,}

Nearest Grocery shops

,,}

Nearest Supermarkets

,,}

Nearest Religious buildings

,,}

Nearest Medical buildings

,,,}

Nearest Leisure Facilities

,,,,}

Nearest Tourist attractions

,,}

Nearest Train stations

,,,,}

Nearest Bus stations and stops

,,,,}

Nearest Hotels

,,}

Tags

Local Market Stats

AirBnB Data

Similar Properties

Meta

High Res Images

Compatible Images

Low res Images

Thumbnails

Raw Images

High Res Floorplan Images

Compatible Floorplan Images

Low res Floorplan Images

FloorplanImages Thumbnail

Raw Floorplan Images