Compact family home with large gardens and ample parking in a popular village location.
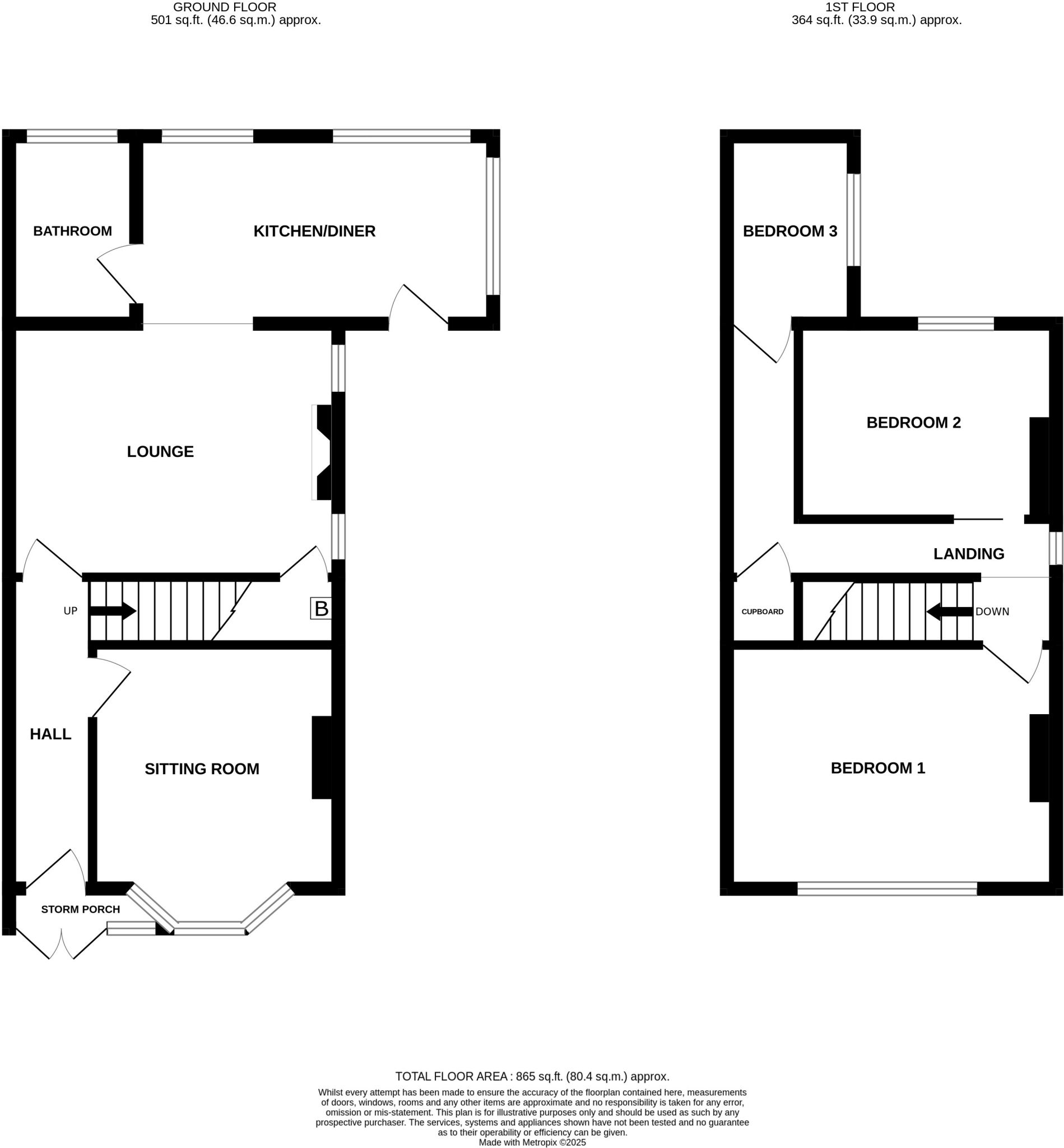
Three bedrooms with small third bedroom
A three-bedroom semi-detached home in a popular village setting, offering practical living over two storeys and sizeable side and rear gardens. The property benefits from a fitted kitchen/diner with integrated appliances, gas central heating, UPVC double glazing and generous off-street parking for several vehicles — useful for family life or multi-car households. At 656 sq ft the interior is compact; the third bedroom is small and overall living space suits buyers seeking manageable, well-located accommodation rather than large-room proportions.
This freehold house includes a four-piece bathroom and is presented with functional fixtures, but buyers should note the small overall footprint and modest plot size. The area has above-average crime levels and is flagged as very deprived locally — important considerations for buyer confidence and insurance or security costs.
Well-suited to families or first-time buyers wanting outdoor space and commuter access to Wrexham and Chester, the property offers immediate move-in potential with scope for cosmetic updates. Internal inspection is recommended to appreciate the garden scale and flexible layout.
3 bedroom semi-detached house for sale in Hall View, Caego, LL11 — £235,000 • 3 bed • 1 bath • 776 ft²
3 bedroom end of terrace house for sale in High Street, Rhostyllen, LL14 — £139,950 • 3 bed • 1 bath • 781 ft²
3 bedroom semi-detached house for sale in Wats Dyke Way, Wrexham, LL11 — £279,950 • 3 bed • 1 bath • 1017 ft²
3 bedroom semi-detached house for sale in Heol Glyndwr, Coedpoeth, Wrexham, LL11 — £195,000 • 3 bed • 1 bath • 986 ft²
3 bedroom semi-detached house for sale in East Avenue, Wrexham, LL11 — £190,000 • 3 bed • 1 bath • 937 ft²
3 bedroom semi-detached house for sale in Prospect Drive, Coedpoeth, LL11 — £250,000 • 3 bed • 1 bath • 882 ft²














































