SW2 2NU - 4 bedroom house for sale in Ewen Crescent, SW2

View on Property Piper

4 bedroom house for sale in Ewen Crescent, SW2

Summary - 3 EWEN CRESCENT LONDON SW2 2NU

4 bed 1 bath House

Newly renovated family home with private south-east garden, minutes from Brockwell Park.
Four double bedrooms across two floors
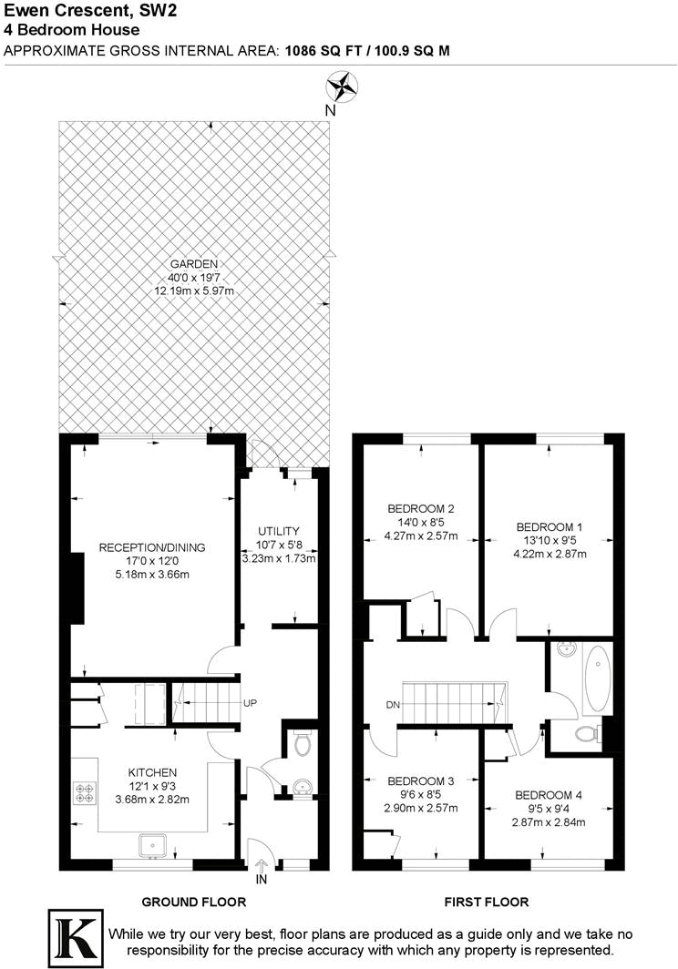
This newly renovated four-bedroom mid-terrace offers more than 1,000 sq ft of family-friendly living in a quiet South London crescent. The generous through living-dining room opens via sliding doors to a south-east facing private garden, creating a bright, flexible ground floor for everyday life and play. A separate utility room and downstairs WC add practical convenience for a busy household.

Upstairs provides four well-proportioned bedrooms and a fitted family bathroom; loft storage and recent double glazing improve comfort and storage. The property is freehold and positioned between Brixton and Tulse Hill, with Brockwell Park only a five-minute stroll away — ideal for weekend play, exercise and markets. Local schools and multiple town centres are within walking distance.

Transport links are strong, with Tulse Hill (Thameslink), Herne Hill and Brixton stations nearby for fast city journeys. Note the home has only one full bathroom for four bedrooms, and the plot is modest in size despite a tidy forty-foot garden. Broadband speeds are reported as very slow, and the local area scores high on deprivation metrics; crime is described as average.

Overall this house suits families seeking a roomy, renovated home close to green space and excellent transport, and buyers should factor in limited outdoor space, a single bathroom, and potential broadband upgrades when considering the property.

Property Details

Brochure Descriptions

Image Descriptions

Floorplan Description

Rooms

Textual Property Features

Target Audience

AI Tags

Detected Visual Features

EPC Details

Nearby Schools

Nearest Bars And Restaurants

,,,,}

Nearest General Shops

,,}

Nearest Grocery shops

,,}

Nearest Supermarkets

,,}

Nearest Religious buildings

,,}

Nearest Medical buildings

,,,}

Nearest Airports

,,}

Nearest Leisure Facilities

,,,,}

Nearest Tourist attractions

,,}

Nearest Train stations

,,,,}

Nearest Bus stations and stops

,,,,}

Nearest Hotels

,,}

Tags

Local Market Stats

AirBnB Data

Similar Properties

Meta

High Res Images

Compatible Images

Low res Images

Thumbnails

Raw Images

High Res Floorplan Images

Compatible Floorplan Images

Low res Floorplan Images

FloorplanImages Thumbnail

Raw Floorplan Images