Chain-free three-bed semi with garage, decent garden and good local amenities.
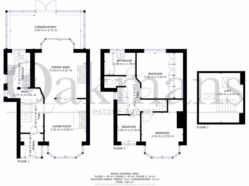
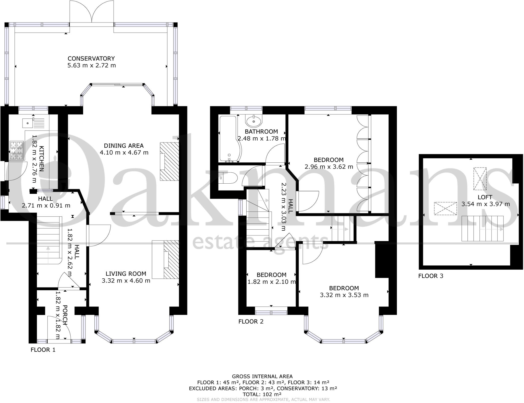
Three bedrooms across multiple storeys, circa 1,127 sq ft
A 1930s semi-detached house with bay windows, garage and a generous rear garden, presented chain-free and ready for a new owner. At around 1,127 sq ft the home provides comfortable, practical living over multiple storeys with a lounge, dining room, conservatory, fitted kitchen and three bedrooms.
This property suits first-time buyers or young families looking for space and strong local amenities: good primary schools, nearby secondary options, fast broadband and straightforward access to QE Hospital, the University of Birmingham and local shops. The driveway and integral garage add useful parking and storage in this suburban setting.
Built between 1930–1949 with solid brick walls, the house will likely benefit from energy upgrades — insulation and clarification of double-glazing installation are recommended. There is one family bathroom plus a separate WC; buyers should inspect services and consider modernisation to the kitchen, bathroom and heating controls for long-term comfort and efficiency.
Practical positives include freehold tenure, low local crime, no flood risk and average area deprivation. The property is advertised chain-free which can speed purchase, but buyers should verify all details (council tax, service history, and any required repairs) via their solicitor and surveyor before exchange.
3 bedroom semi-detached house for sale in Dockar Road, Birmingham, West Midlands, B31 — £230,000 • 3 bed • 1 bath • 1494 ft²
3 bedroom semi-detached house for sale in Whitehill Lane, Northfield, Birmingham, B29 — £230,000 • 3 bed • 1 bath • 909 ft²
3 bedroom semi-detached house for sale in West Park Avenue, Birmingham, West Midlands, B31 — £280,000 • 3 bed • 1 bath • 915 ft²
3 bedroom semi-detached house for sale in Spiceland Road, Birmingham, West Midlands, B31 — £280,000 • 3 bed • 1 bath • 1065 ft²
3 bedroom semi-detached house for sale in Senneleys Park Road, Northfield, B31 — £315,000 • 3 bed • 1 bath • 1264 ft²
3 bedroom semi-detached house for sale in Steene Grove, Birmingham, West Midlands, B31 — £220,000 • 3 bed • 1 bath • 840 ft²


















































































































































