Chain-free three-bed village home with flexible reception rooms and private garden..
- Three bedrooms: two doubles and one single, all with built-in storage
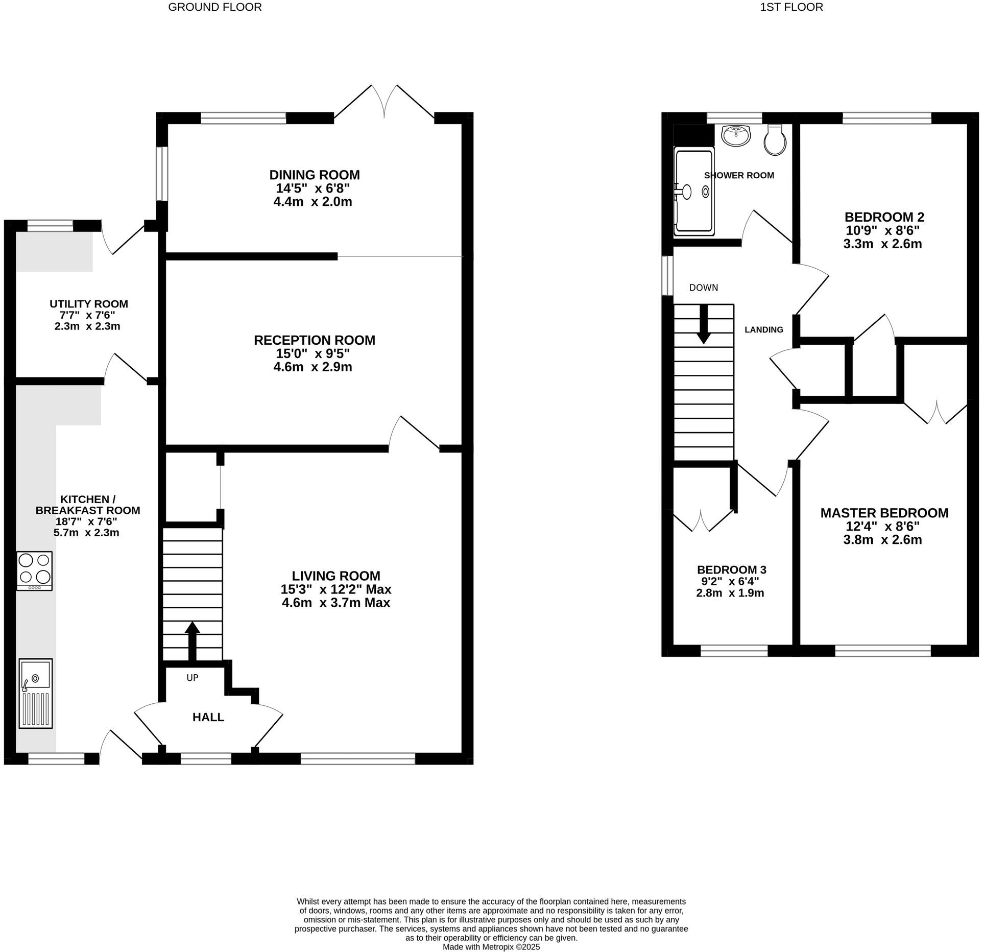
- Flexible ground floor: living room, snug and dining room
- Kitchen/breakfast room with direct driveway access and separate utility
- Rear garden with patio; mainly laid to lawn, modest plot size
- Off-road parking to the front; offered chain-free
- EPC C; electric storage heaters and likely uninsulated cavity walls
- Single modern shower room only; some updating may be desirable
- Slow broadband and average mobile signal in village location
Set in the sought-after village of Lower Broadheath, this three-bedroom semi-detached home offers flexible living across a generous ground floor and a private rear garden. The layout includes a kitchen/breakfast room with direct driveway access and an adjoining utility room, a large living room and two further reception rooms that could be used as a snug, dining room or home office. Upstairs are two double bedrooms, a single bedroom with built-in storage in each room, and a modern shower room serving all bedrooms.
Practical features include off-road parking, a patio and mainly lawned rear garden, double glazing installed post-2002, an EPC rating of C and Council Tax Band C. The property is offered freehold and with no onward chain, making it straightforward for a buyer to proceed. The village location provides easy access to Worcester, good primary schools nearby and rural amenities.
There are some clear areas for improvement: heating is via electric storage heaters and the cavity walls are assumed to have no insulation, so upgrading heating and insulation would improve comfort and running costs. Broadband speeds are slow here and the plot is modest in size. The house dates from the late 1960s–1970s and some updating of internal decor and services may be required to suit modern tastes.
This home will suit families seeking a village base with good schools and low local crime, downsizers wanting single-level flexibility on the ground floor, or buyers looking for a chain-free purchase to add value through sensible improvements. Its combination of flexible reception space, parking and private garden makes it a practical, well-located proposition for a range of buyers.
3 bedroom semi-detached house for sale in 3 Malvern Walk WR2 6QZ, WR2 — £220,000 • 3 bed • 1 bath • 826 ft²
3 bedroom semi-detached house for sale in Peachley Lane, Lower Broadheath, WR2 — £350,000 • 3 bed • 1 bath • 781 ft²
2 bedroom semi-detached house for sale in Jacomb Road, Lower Broadheath, Worcester, Worcestershire, WR2 — £235,000 • 2 bed • 1 bath • 541 ft²
3 bedroom semi-detached house for sale in Malvern Close, Lower Broadheath, WR2 — £235,000 • 3 bed • 1 bath • 628 ft²
3 bedroom semi-detached house for sale in Jacomb Road, Lower Broadheath, Worcester, WR2 — £250,000 • 3 bed • 2 bath • 1187 ft²
3 bedroom semi-detached house for sale in Grange Road, Lower Broadheath, WR2 — £350,000 • 3 bed • 2 bath • 1109 ft²


















































































