Bright period home close to town, school and seafront for families.
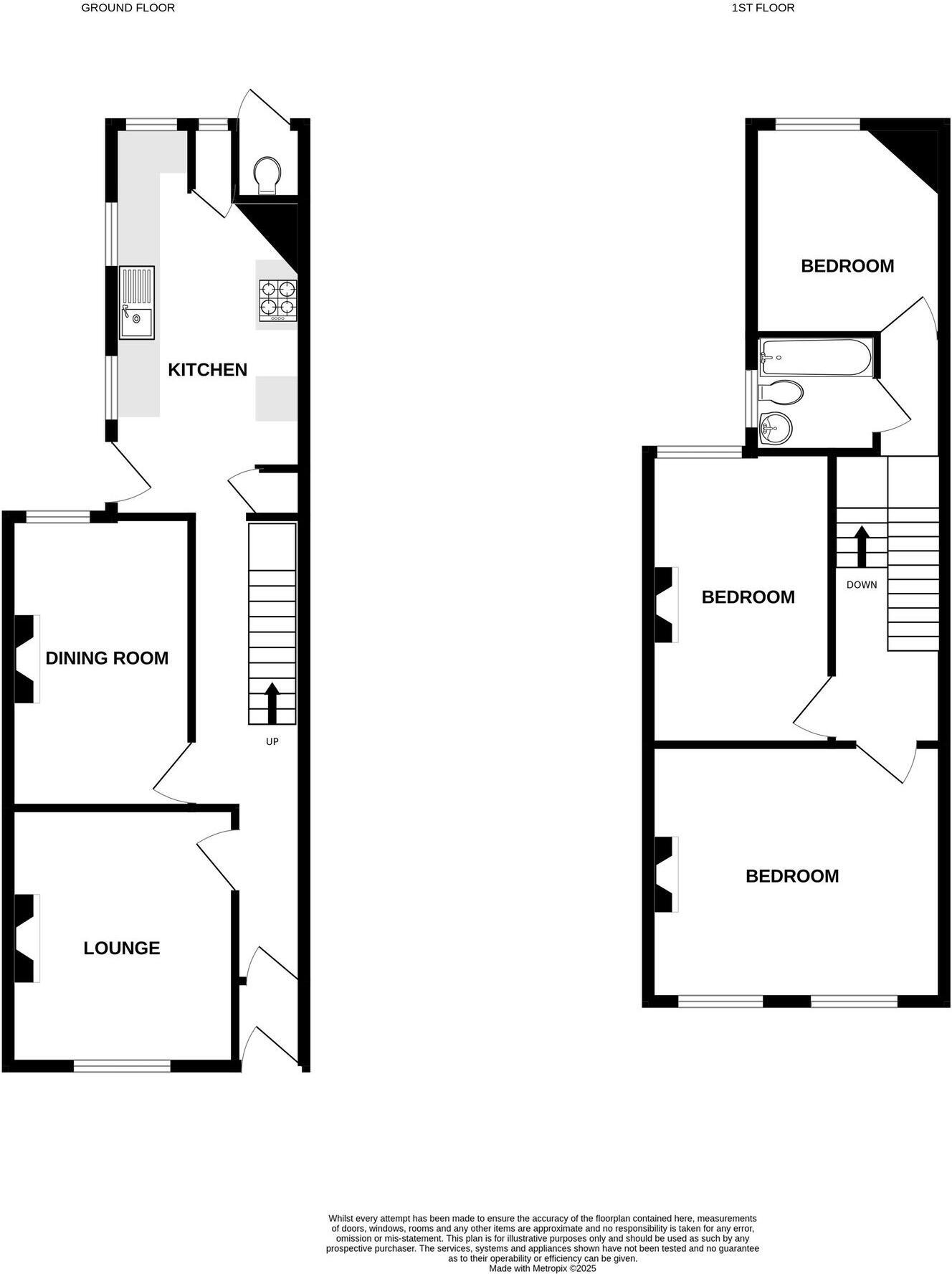
Edwardian mid-terrace with bay-fronted lounge and dining room
Generous kitchen/breakfast room with pantry and garden access
Three first-floor bedrooms; modern bathroom with shower over bath
Enclosed sunny courtyard rear garden with raised seating area
Gas central heating and uPVC double glazing throughout
Small overall size (approx. 794 sq ft) and compact plot
Single bathroom only; suitable for families but limited facilities
Possible roof issues nearby; recommend professional survey
This Edwardian mid-terrace offers bright, well-proportioned rooms across two floors, set in a quiet residential street a short walk from Budleigh Salterton town centre and seafront. The layout suits a family or couple seeking period character—bay-fronted lounge, separate dining room and a generous kitchen/breakfast space lead from the entrance vestibule to an enclosed sunny courtyard garden.
Practical features include gas central heating, uPVC double glazing, a modern first-floor bathroom and useful pantry. The property benefits from excellent mobile signal and fast broadband, easy pedestrian access to St Peter’s Primary School and nearby footpaths along the River Otter for everyday convenience and leisure.
Buyers should note the house is small overall (approx. 794 sq ft) with a small plot and only one bathroom. Some neighbouring terraces are described as requiring roof work, so a buyer should investigate the roof and carry out a targeted survey. On-street parking only; rear access is via a service lane.
This home presents immediate comfortable living with scope to personalise and potentially increase value through sympathetic updating. It’s a straightforward freehold purchase in a low-crime, sought-after small-town location close to shops, bus routes and green spaces.
3 bedroom terraced house for sale in Jocelyn Road, Budleigh Salterton, EX9 — £299,950 • 3 bed • 1 bath • 919 ft²
3 bedroom terraced house for sale in Armytage Road, Budleigh Salterton, Devon, EX9 — £295,000 • 3 bed • 1 bath • 920 ft²
3 bedroom terraced house for sale in Boyne Road, Budleigh Salterton, EX9 — £300,000 • 3 bed • 1 bath • 1018 ft²
3 bedroom terraced house for sale in Boyne Road, Budleigh Salterton, EX9 6SE, EX9 — £225,000 • 3 bed • 1 bath • 728 ft²
3 bedroom end of terrace house for sale in Norman Crescent, Budleigh Salterton, Devon, EX9 — £330,000 • 3 bed • 3 bath • 845 ft²
3 bedroom end of terrace house for sale in Clinton Close, Budleigh Salterton, Devon, EX9 — £375,000 • 3 bed • 1 bath • 841 ft²


























































