**Standout Features:**
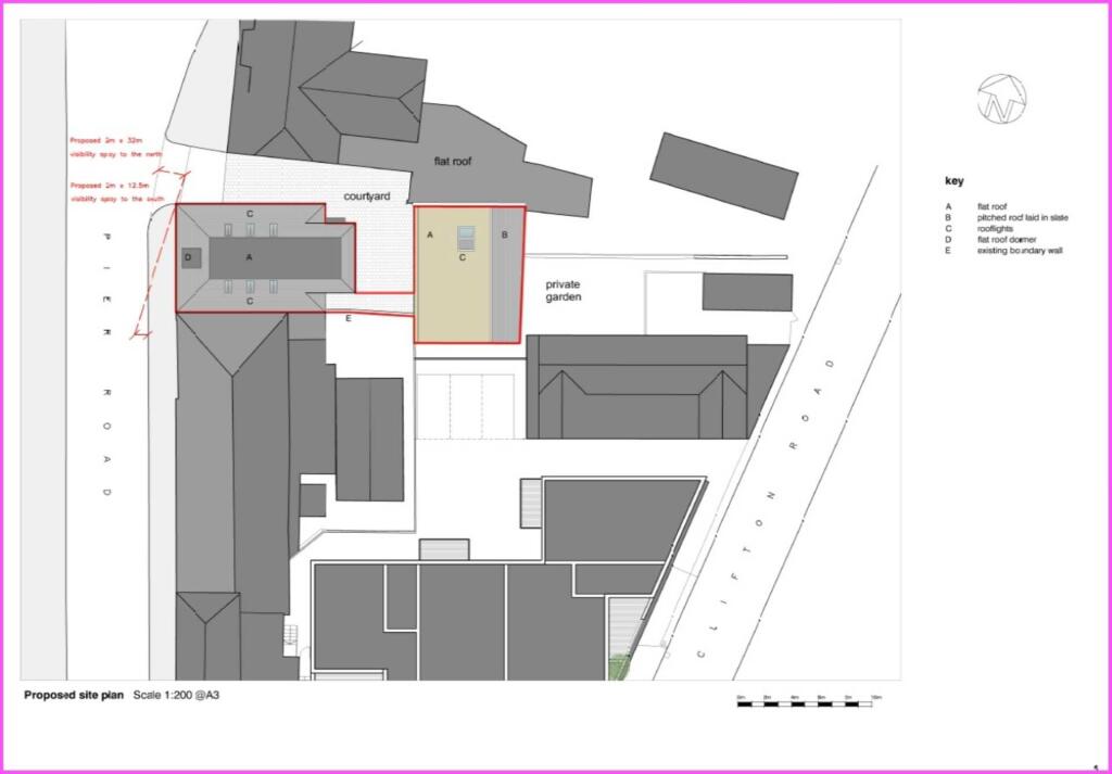
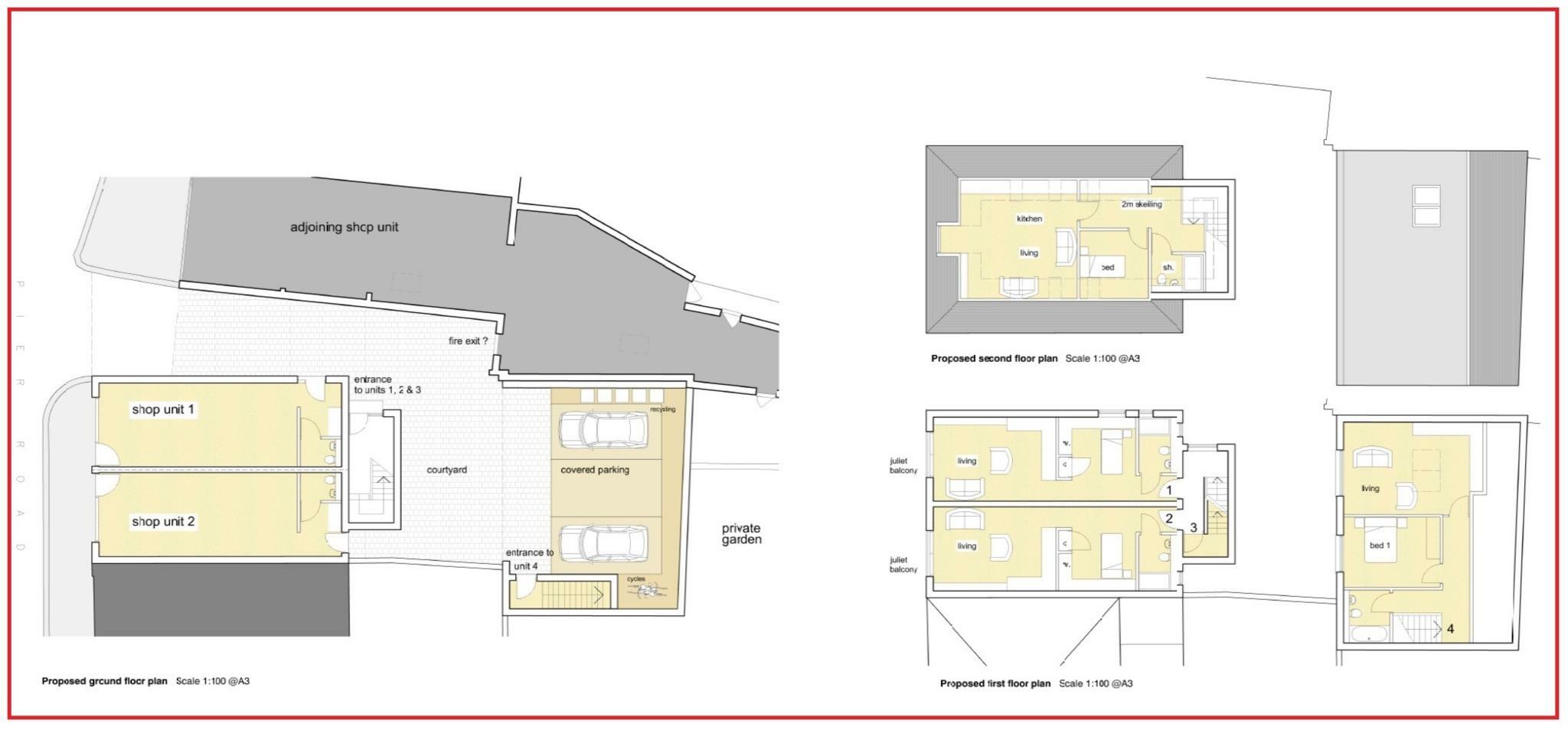
- Redevelopment opportunity with approved planning permission for mixed-use commercial and residential space.
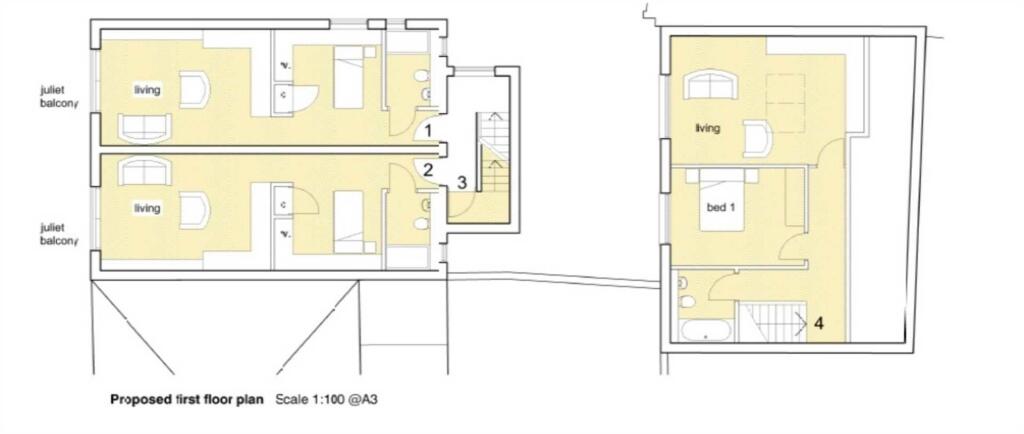
- Front block: 3 contemporary apartments, 2 with river views and Juliet balconies, designed for open-plan living.
- Ground-level commercial units: 2 retail spaces with picturesque River Arun views, each with kitchen areas and cloakrooms.
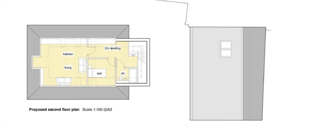
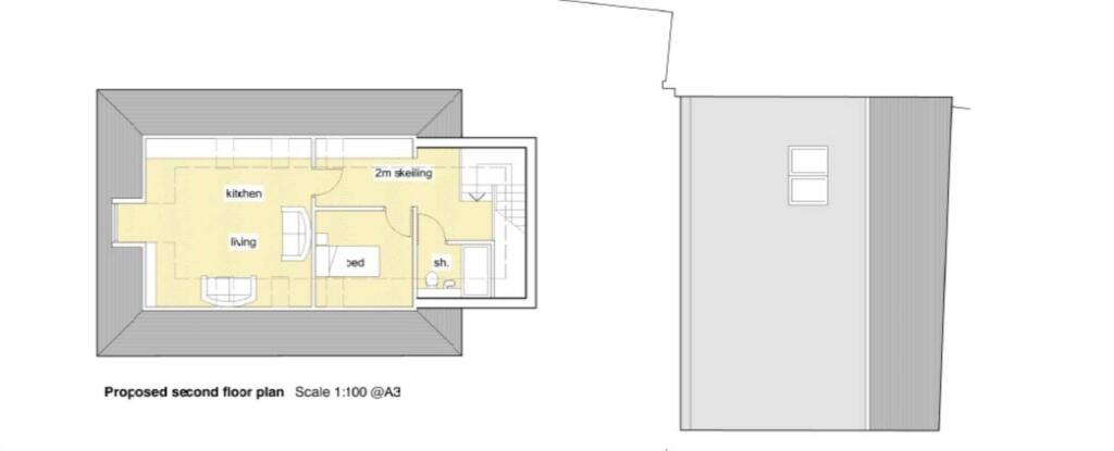
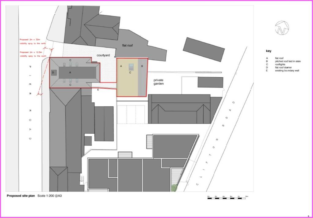
- Detached rear block: spacious apartment with private access, open-plan living, and exclusive parking for 3 vehicles.
- Excellent location near Pier Road with access to cafes, shops, and leisure activities.
**Potential Concerns:**
- Above average crime rates in the area may be a consideration.
- Broadband speeds reported as slow; may affect remote work capabilities.
- Property condition details are unverified; prospective buyers should conduct inspections.
This unique mixed-use property at Pier Road, Littlehampton, offers a rare development opportunity in a desirable riverside location. Boasting approved plans for the demolition and construction of three modern apartments alongside two retail units, this property is perfect for investors looking to capitalize on the growing demand for both residential and commercial spaces. The contemporary design maximizes space and comfort, appealing to those who wish to embrace the coastal charm of the area.
The spacious, detached apartment at the rear with private access adds versatility, ideal for owners or potential renters seeking a serene living environment. With convenient off-street parking for up to three cars, living here ensures practicality alongside the lifestyle benefits of nearby delightful amenities. Given its excellent location with access to a vibrant community atmosphere, this opportunity won't last long. Envision yourself at the heart of Littlehampton's charm, blending life, work, and leisure seamlessly.
Studio apartment for sale in Surrey Street, Littlehampton, BN17 — £720,000 • 1 bed • 1 bath • 2622 ft²
4 bedroom terraced house for sale in Pier Road, Littlehampton, BN17 — £695,000 • 4 bed • 2 bath • 1771 ft²
4 bedroom town house for sale in Surrey Street, Littlehampton, BN17 — £749,850 • 4 bed • 4 bath • 2143 ft²
Plot for sale in East Street, Littlehampton, BN17 — £500,000 • 1 bed • 1 bath • 8309 ft²
Commercial property for sale in Surrey Street, Littlehampton, BN17 — £720,000 • 1 bed • 1 bath • 2622 ft²
7 bedroom apartment for sale in Beach Road, Littlehampton, BN17 — £500,000 • 7 bed • 1 bath










































































































































