Spacious three-bedroom with large garden and double driveway for families.
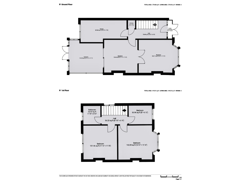
Three bedrooms with flexible multiple reception rooms
Generous rear garden with patio, lawn and pergola seating
Double driveway providing off-street parking for two cars
Single modern shower room only; one bathroom for three bedrooms
Medium flood risk — consider local flood measures and insurance
About 999 sq ft; average-sized rooms and standard ceiling heights
Built c.1967–1975 with filled cavity walls and double glazing
Freehold tenure, Council Tax Band C, mains gas central heating
This three-bedroom freehold house on Meadowbrook Road offers comfortable family living with clear curb appeal. The property is presented in good order, with double driveway parking, multiple reception rooms and an established rear garden that’s great for children and entertaining.
Internally you’ll find a cosy sitting room with a bay window and wood-burning stove, a larger rear lounge with gas fireplace and French doors into a sunroom, plus a modern kitchen and a single upgraded family shower room. The layout suits everyday family life and flexible living across two storeys.
Practical points to note: the home measures about 999 sq ft, has one bathroom, and sits in a medium flood-risk area. Built in the late 20th century and with double glazing, the property is gas‑heated via boiler and radiators. Council Tax Band C and freehold tenure provide straightforward ongoing costs.
Location perks include good local schools (several rated Good and one Outstanding nearby), fast broadband and excellent mobile signal, low local crime and convenient bus and shop access. Early viewing is recommended to appreciate the garden, plot size and versatile reception spaces in person.
3 bedroom semi-detached house for sale in Raby Drive, Moreton, Wirral, CH46 — £270,000 • 3 bed • 1 bath • 972 ft²
3 bedroom semi-detached house for sale in Rothbury Close, Moreton, Wirral, CH46 — £210,000 • 3 bed • 1 bath • 923 ft²
3 bedroom semi-detached house for sale in Millhouse Close, Moreton, Wirral , CH46 — £210,000 • 3 bed • 1 bath • 736 ft²
3 bedroom detached house for sale in Borrowdale Road, Moreton, Wirral, CH46 — £350,000 • 3 bed • 2 bath • 1272 ft²
3 bedroom semi-detached house for sale in Saughall Road, Moreton, Wirral, CH46 — £290,000 • 3 bed • 1 bath • 1061 ft²
3 bedroom semi-detached house for sale in Fieldway, Meols, Wirral, CH47 — £375,000 • 3 bed • 1 bath • 1329 ft²










































































