BD11 2EE - 3 bedroom detached house for sale in Bradford Road, Birkens…

View on Property Piper

3 bedroom detached house for sale in Bradford Road, Birkenshaw, BD11

Summary - 680B BRADFORD ROAD BIRKENSHAW BRADFORD BD11 2EE

3 bed 2 bath Detached

**Standout Features:**
- Beautifully presented detached family home
- Located in a sought-after area of Birkenshaw
- Three spacious double bedrooms, including an en-suite
- Modern kitchen with high-end appliances (Rangemaster cooker, integrated dishwasher)
- Open-plan layout with generous living spaces
- Private driveway, garage with electric door, and front garden
- Excellent transport links, close to schools and amenities
- Freehold tenure and chain-free sale

**Potential Downsides:**
- Council tax band: E (above average)
- High local crime rate

Nestled in a desirable area of Birkenshaw, this stunning detached family home offers an exquisite blend of modern living and ample space. Boasting three double bedrooms, including a charming en-suite with underfloor heating, this property is ideal for families seeking comfort and style. The spacious lounge features a striking wood-burning stove, and the open-plan kitchen/dining area flows seamlessly for easy entertaining, equipped with premium appliances and elegant finishes.

Outside, enjoy the beautifully landscaped front garden and a raised patio perfect for summer nights. With a private driveway and electric garage for hassle-free parking, this home is not only practical but also convenient for commuting, being just minutes from major motorway junctions. Positioned close to highly regarded schools and local amenities, this property captures the essence of family-friendly living.

This gem is chain-free and ready for you to move in. Don't miss out—schedule your viewing today to fully appreciate all this home has to offer!

Property Details

Image Descriptions

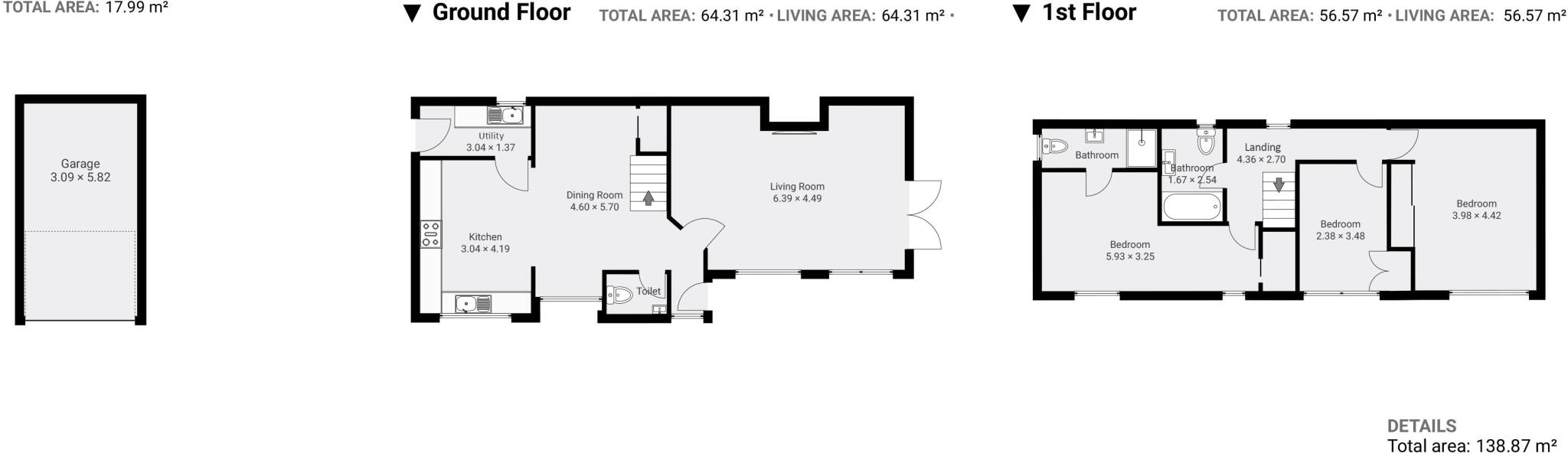
Floorplan Description

Rooms

Textual Property Features

Detected Visual Features

EPC Details

Nearby Schools

Nearest Bars And Restaurants

,,,,}

Nearest General Shops

,,}

Nearest Grocery shops

,,}

Nearest Supermarkets

,,}

Nearest Religious buildings

,,}

Nearest Medical buildings

,,,}

Nearest Airports

}

Nearest Leisure Facilities

,,,,}

Nearest Tourist attractions

,,}

Nearest Train stations

,,,,}

Nearest Bus stations and stops

,,,,}

Nearest Hotels

,,}

Tags

Local Market Stats

Similar Properties

Meta

High Res Images

Compatible Images

Low res Images

Thumbnails

Raw Images

High Res Floorplan Images

Compatible Floorplan Images

Low res Floorplan Images

FloorplanImages Thumbnail

Raw Floorplan Images