LE3 5ES - Restaurant for sale in Fosse Road North, Leicester, LE3

View on Property Piper

Restaurant for sale in Fosse Road North, Leicester, LE3

Summary - 184 FOSSE ROAD NORTH LEICESTER LE3 5ES

1 bed 1 bath Restaurant

Income-producing freehold on Fosse Road North — investment with clear upside, sold chain-free..
- Freehold mixed-use: takeaway ground floor + self-contained flat
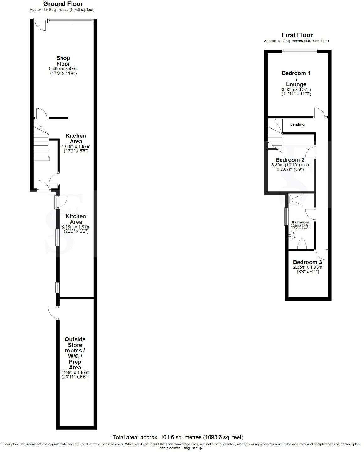
- Total floor area approx 1,093 sq ft across multi-story layout
- Separate commercial and residential access; existing rental income
- Combined income yields approx 5.5% (current lets continue)
- Prominent shopfront with high footfall and excellent transport links
- Area is deprived with very high local crime — risk to consider
- Small plot with paved rear yard; limited outside space
- Low ceilings in parts; refurbishment or redevelopment likely needed
A rare freehold opportunity on busy Fosse Road North combining a long-established ground-floor takeaway with a self-contained first-floor flat. The property extends to approximately 1,094 sq ft and is arranged to provide separate commercial and residential access, making it straightforward to continue as an income-producing asset or reposition for higher value (subject to planning).

Current income produces an approximate 5.5% yield from combined commercial and residential rents; the ground-floor trade and first-floor flat are both occupied and sold freehold. Practical features include a large shopfront and customer area, two kitchen/prep zones, rear paved yard with side access for deliveries and waste, and mains gas, electricity, water and heating to the flat.

Investors will value the clear upside: heavy pedestrian footfall, prominent location and scope for improvement or redevelopment (STPP). Important considerations are the property's urban context — the immediate area is classified as deprived with very high local crime — and a small plot size. The ground-floor space has relatively low ceilings in parts and would require planned investment to modernise or expand.

The sale excludes the trading business (available by separate negotiation). Buyers should factor in potential refurbishment costs, planning risk for any change of use or extension, and ongoing management for mixed-use tenancies. This is best suited to buy-to-let investors or small developers seeking a centrally located, income-generating freehold with clear enhancement potential.

Property Details

Image Descriptions

Floorplan Description

Rooms

Textual Property Features

Target Audience

AI Tags

Detected Visual Features

Nearby Schools

Nearest Bars And Restaurants

,,,,}

Nearest General Shops

,,}

Nearest Grocery shops

,,}

Nearest Supermarkets

,,}

Nearest Religious buildings

,,}

Nearest Medical buildings

,,,}

Nearest Airports

,}

Nearest Leisure Facilities

,,,,}

Nearest Tourist attractions

,,}

Nearest Train stations

,,,,}

Nearest Bus stations and stops

,,,,}

Nearest Hotels

,,}

Tags

Local Market Stats

AirBnB Data

Similar Properties

Meta

High Res Images

Compatible Images

Low res Images

Thumbnails

Raw Images

High Res Floorplan Images

Compatible Floorplan Images

Low res Floorplan Images

FloorplanImages Thumbnail

Raw Floorplan Images