Three-bedroom family home with garage, garden and excellent commuter links..
- Large living room with feature fireplace
- Generous kitchen/diner with patio doors to garden
- Ground-floor family room/guest bedroom and cloakroom
- Utility room, garage and off-street parking
- Attractive rear garden with timber summerhouse
- Single family bathroom upstairs for three bedrooms
- Built 1950s; cavity walls assumed uninsulated (upgrade likely)
- Council tax and local crime rates above average
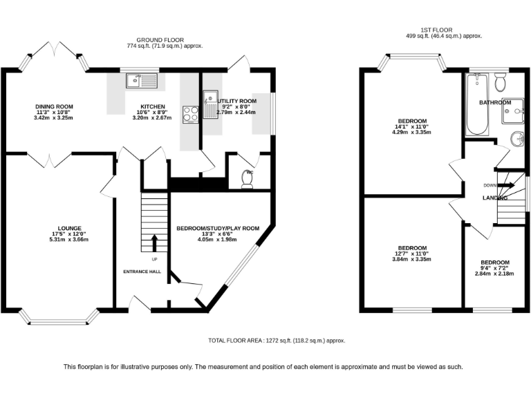
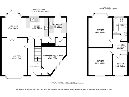
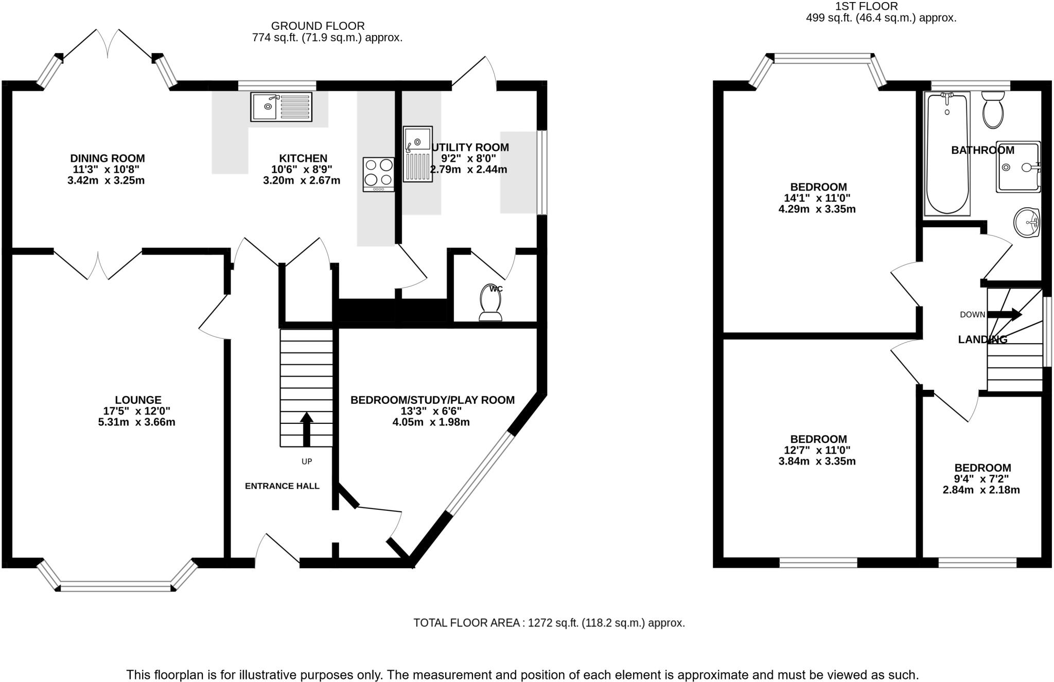
A spacious three-bedroom semi-detached home set on a corner plot, ideal for growing families needing versatile living space. The ground floor offers a large living room with a feature fireplace and wide kitchen/diner with patio doors opening to the landscaped rear garden and summerhouse.
Practical additions include a utility room, cloakroom and a ground-floor family room that can serve as a guest bedroom or home office. Upstairs are three bedrooms served by a modern family bathroom; total internal area is approximately 1,272 sq ft, giving generous room proportions throughout.
Outside there is a garage and off-street parking, plus a decent-sized, attractively landscaped garden with patio seating. The location is close to Dunstable town centre, shops, restaurants, strong primary and secondary schools, and the guided Busway linking to Luton station — convenient for commuters.
Important factual points: the property was built in the 1950s so some systems and finishes may benefit from updating. Cavity walls are noted as having no insulation (assumed) so thermal upgrades could be useful. Council tax is above average and local crime rates are above average; buyers should consider these practical factors alongside the home’s family-friendly layout and commuter links.
 3 bedroom semi-detached house for sale in Lowther Road, Dunstable, Bedfordshire, LU6 — £415,000 • 3 bed • 1 bath • 916 ft²
 3 bedroom semi-detached house for sale in Lowther Road, Dunstable, Bedfordshire, LU6 — £415,000 • 3 bed • 1 bath • 916 ft² 3 bedroom semi-detached house for sale in Drovers Way, Dunstable, Bedfordshire, LU6 — £335,000 • 3 bed • 2 bath • 1130 ft²
 3 bedroom semi-detached house for sale in Drovers Way, Dunstable, Bedfordshire, LU6 — £335,000 • 3 bed • 2 bath • 1130 ft² 3 bedroom semi-detached house for sale in London Road, Dunstable, LU6 — £450,000 • 3 bed • 1 bath • 1337 ft²
 3 bedroom semi-detached house for sale in London Road, Dunstable, LU6 — £450,000 • 3 bed • 1 bath • 1337 ft² 3 bedroom semi-detached house for sale in Beecroft Way, Dunstable, Bedfordshire, LU6 — £375,000 • 3 bed • 1 bath • 995 ft²
 3 bedroom semi-detached house for sale in Beecroft Way, Dunstable, Bedfordshire, LU6 — £375,000 • 3 bed • 1 bath • 995 ft² 4 bedroom semi-detached house for sale in Beale Street, Dunstable, LU6 — £400,000 • 4 bed • 1 bath
 4 bedroom semi-detached house for sale in Beale Street, Dunstable, LU6 — £400,000 • 4 bed • 1 bath 3 bedroom semi-detached house for sale in Kirkstone Drive, Dunstable, Bedfordshire, LU6 — £400,000 • 3 bed • 1 bath • 789 ft²
 3 bedroom semi-detached house for sale in Kirkstone Drive, Dunstable, Bedfordshire, LU6 — £400,000 • 3 bed • 1 bath • 789 ft²






































































