SO41 9AA - 1 bedroom apartment for sale in High Street, Lymington, SO41

View on Property Piper

1 bedroom apartment for sale in High Street, Lymington, SO41

Summary - Flat 4,1 High Street,LYMINGTON,SO41 9AA SO41 9AA

1 bed 1 bath Apartment

Generous Georgian one/two bed with south garden and outbuildings, chain-free and long lease..
Chain-free first-floor period apartment with generous rooms
Large sitting room: high ceilings, parquet, feature fireplace
South-facing private walled garden with mature planting
Two-storey outhouse with redevelopment potential (STPP)
Bothy with power — ideal studio/workshop
Requires new kitchen and bathroom upgrading
Grade II Listed — restrictions likely on alterations
Leasehold: 990 years; service charge c.£900 pa; EPC E
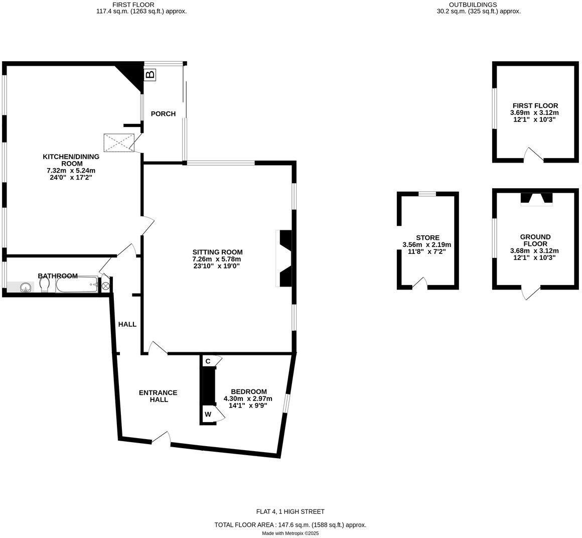
A rare, characterful first-floor apartment on Lymington High Street with substantial internal space and a private south-facing walled garden. The main sitting room impresses with Georgian proportions: high ceilings, parquet flooring, large floor-to-ceiling Georgian window and a feature fireplace with woodburner. The property is offered chain-free and benefits from a long lease (990 years), peppercorn ground rent and an annual service charge of approximately £900.

The accommodation is flexible: a large kitchen/dining room with exposed beams could be retained as a generous kitchen/diner or reconfigured into a second bedroom, creating a true one/two bedroom plan. A double bedroom, sizeable entrance hall and a bathroom complete the flat. Outside, a two-storey brick outhouse offers redevelopment potential (STPP) and a powered bothy provides useful studio or workshop space for home-working or storage.

Important practical points: the apartment is Grade II Listed which may restrict some changes and could complicate refurbishment. The kitchen requires replacement and the bathroom needs upgrading; overall the flat requires renovation to reach its full potential. EPC rating E and Council Tax Band D. The location is highly walkable to shops, restaurants, the quay and the train station, and short-term lets are permitted.

This property will suit a buyer seeking a period home with generous proportions, outdoor space and scope to add value through sympathetic refurbishment — whether as an owner-occupier wanting a prominent town address or an investor looking for holiday-let potential. Be aware of the listing constraints and the need for works before moving in.

Property Details

Brochure Descriptions

Image Descriptions

Rooms

Textual Property Features

Target Audience

AI Tags

Detected Visual Features

Nearby Schools

Nearest Bars And Restaurants

,,,,}

Nearest General Shops

,,}

Nearest Grocery shops

,,}

Nearest Supermarkets

,,}

Nearest Religious buildings

,,}

Nearest Medical buildings

,,,}

Nearest Airports

,}

Nearest Leisure Facilities

,,,,}

Nearest Tourist attractions

,,}

Nearest Train stations

,,,,}

Nearest Bus stations and stops

,,,,}

Nearest Hotels

,,}

Tags

Local Market Stats

AirBnB Data

Similar Properties

Meta

High Res Images

Compatible Images

Low res Images

Thumbnails

Raw Images

High Res Floorplan Images

Compatible Floorplan Images

Low res Floorplan Images

FloorplanImages Thumbnail

Raw Floorplan Images