PE25 3HW - 8 bedroom guest house for sale in 32 South Parade, Skegness…

View on Property Piper

8 bedroom guest house for sale in 32 South Parade, Skegness, PE25

Summary - 32 SOUTH PARADE SKEGNESS PE25 3HW

8 bed 7 bath Guest House

**Standout Features:**
- Prime seafront location on South Parade, Skegness
- 8 bedrooms, including 6 well-appointed en-suite letting rooms
- Spacious, versatile 2-bedroom owners' accommodation
- Attractive Victorian terrace with distinct architectural features
- Courtyard garden and off-street parking
- Selling as a going concern due to retirement

**Summary Description:**
Discover this beautifully presented 8-bedroom guest house, ideally located along the scenic South Parade in Skegness. With 6 en-suite letting rooms, this property caters perfectly to tourism, making it an ideal investment for aspiring hoteliers or a large family seeking an expansive coastal home. The charming Victorian architecture boasts high ceilings, bay windows, and a detailed brick façade, all enhancing its historic character.

The property features a cozy guest dining area adjacent to a contemporary kitchen, creating a welcoming atmosphere for guests. The owners’ versatile 2-bedroom living space ensures privacy while also offering ample room for relaxation and entertaining. Additionally, enjoy the convenience of off-street parking and a tranquil courtyard garden, perfect for unwinding.

This property presents a unique opportunity as a going concern, featuring strong rental potential in a vibrant tourist area. However, potential buyers should consider the local high crime rates and overall area deprivation. With fast broadband and a variety of local amenities just a short walk away, this guest house is not only a smart investment but also a comfortable retreat. Act quickly and seize the chance to own this exceptional property!

Property Details

Brochure Descriptions

Image Descriptions

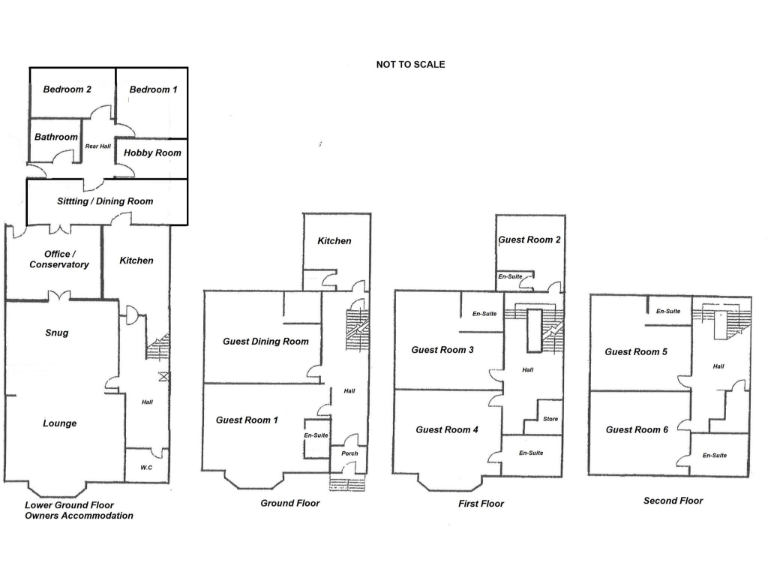
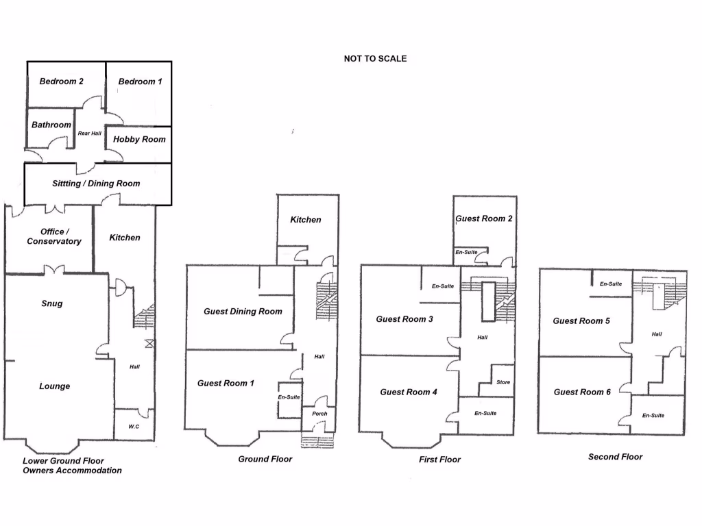
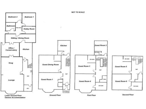
Floorplan Description

Rooms

Textual Property Features

Detected Visual Features

Nearby Schools

Nearest Bars And Restaurants

,,,,}

Nearest General Shops

,,}

Nearest Grocery shops

,,}

Nearest Supermarkets

,,}

Nearest Religious buildings

,,}

Nearest Medical buildings

,,,}

Nearest Leisure Facilities

,,,,}

Nearest Tourist attractions

,,}

Nearest Train stations

,,,,}

Nearest Bus stations and stops

,,,,}

Nearest Hotels

,,}

Tags

Local Market Stats

AirBnB Data

Similar Properties

Meta

High Res Images

Compatible Images

Low res Images

Thumbnails

Raw Images

High Res Floorplan Images

Compatible Floorplan Images

Low res Floorplan Images

FloorplanImages Thumbnail

Raw Floorplan Images