BH20 7HW - 3 bedroom detached house for sale in West Street, Bere Regi…

View on Property Piper

3 bedroom detached house for sale in West Street, Bere Regis, Wareham, BH20

Summary - 39 WEST STREET BERE REGIS WAREHAM BH20 7HW

3 bed 1 bath Detached

**Standout Features:**
- Spacious 3-bedroom detached family home
- Open-plan kitchen/family room with modern appliances
- Ample off-road parking and garage with power
- Close to local amenities, schools, and public transport
- Enclosed, low-maintenance rear garden
- Scenic countryside walks nearby

Nestled in the inviting village of Bere Regis, this well-maintained 1950s detached house is perfect for families seeking both comfort and convenience. With three generous bedrooms, including a spacious main bedroom with ample storage, this home offers versatile living spaces that adapt to modern family needs. The heart of the home features an open-plan kitchen and family room—ideal for entertaining—with sleek integrated appliances and a breakfast bar, while a separate utility room adds practicality.

Step outside to enjoy a low-maintenance garden with a raised terrace and artificial lawn, perfect for outdoor dining or relaxing in the sun. The property also includes a garage with power and lighting, offering additional storage or workshop potential. While the home is in excellent condition, the nearby schools may require consideration, as the local primary has a moderate rating.

Situated in a small town with an affluent community, this property is not only a comfortable family home but also a gateway to the stunning countryside—ideal for those who appreciate outdoor activities. With local shops, a post office, and a bus stop just a stone’s throw away, this house seamlessly integrates rural charm with everyday convenience. Don't miss out on the opportunity to secure this delightful family residence!

Property Details

Image Descriptions

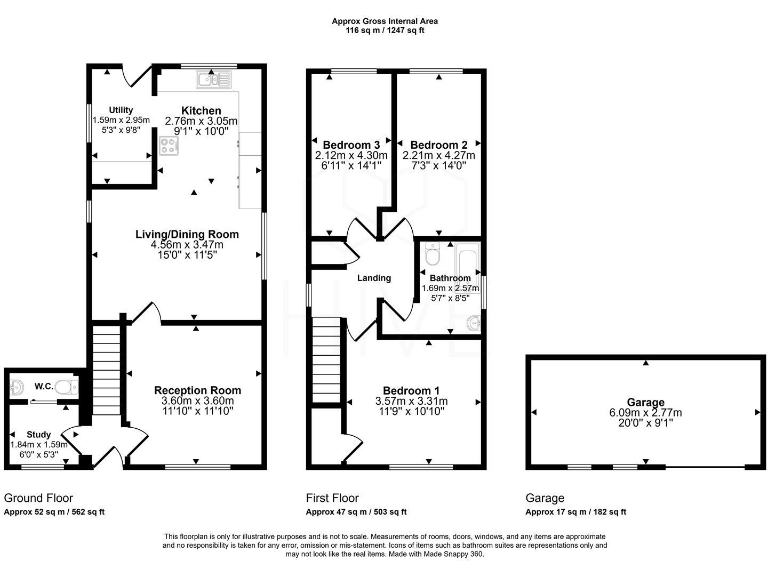
Floorplan Description

Rooms

Textual Property Features

Detected Visual Features

EPC Details

Nearby Schools

Nearest Bars And Restaurants

,,,,}

Nearest General Shops

,,}

Nearest Grocery shops

,,}

Nearest Supermarkets

,,}

Nearest Religious buildings

,,}

Nearest Medical buildings

,,,}

Nearest Airports

}

Nearest Leisure Facilities

,,,,}

Nearest Tourist attractions

,,}

Nearest Train stations

,,,,}

Nearest Bus stations and stops

,,,,}

Nearest Hotels

,,}

Tags

Local Market Stats

AirBnB Data

Similar Properties

Meta

High Res Images

Compatible Images

Low res Images

Thumbnails

Raw Images

High Res Floorplan Images

Compatible Floorplan Images

Low res Floorplan Images

FloorplanImages Thumbnail

Raw Floorplan Images