Contemporary four-bedroom house with garage, garden and easy station access.
- Built 2022 — modern specification across three floors
- Four bedrooms, three bathrooms including en-suite and separate shower
- Garage plus off-street parking; very large plot with rear garden
- Approx. 1,206 sq ft — average overall internal size
- Around an 8-minute walk to the station; next to green open space
- Freehold; service charge £150 (below average) applies
- Council tax level is above average
- All services and appliances untested — independent checks recommended
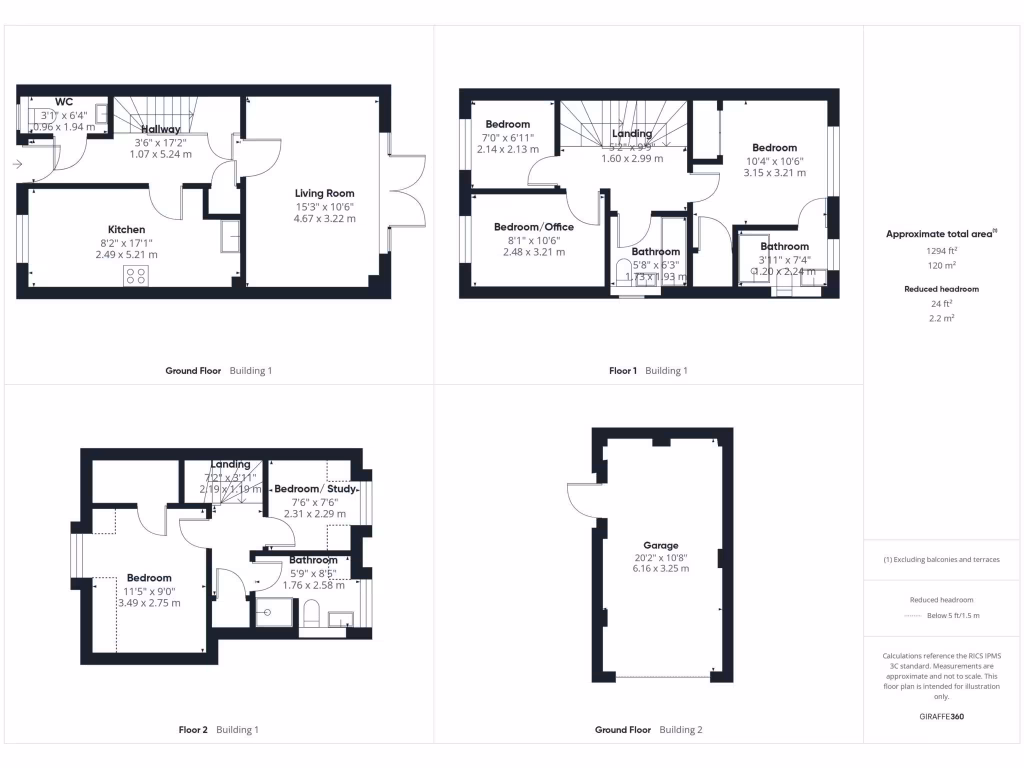
This modern three-storey semi-detached house, built in 2022, offers family-focused living in the popular village of Haddenham. The ground floor features a bright living room with French doors to a low‑maintenance rear garden and a kitchen/breakfast room, while upstairs provides flexible sleeping space including a master with en-suite and a large fourth bedroom on the top floor.
Practical daily life is well served: a single garage, additional off-street parking, cloakroom/WC on the ground floor, and a dedicated study/hobby room ideal for remote working or children’s homework. The property sits on a very large plot next to open green space and is roughly an eight-minute walk from the station, making commutes and local travel straightforward.
Buyers should note the property is freehold with a below-average service charge (£150), but council tax is above average. The house is an average overall size (about 1,206 sq ft) for four bedrooms, so families needing larger reception spaces may find layout constraints. All fixtures and services should be independently checked; listed broadband and flood-risk data are favourable.
Overall, this is a contemporary, low-maintenance family home in a quiet, affluent town-fringe setting. It will suit buyers seeking modern specification, convenient transport links and outdoor space, but those requiring very large internal living areas should confirm the layout meets their needs.
4 bedroom semi-detached house for sale in Halifax Green, Haddenham, Aylesbury, HP17 — £499,950 • 4 bed • 3 bath • 1206 ft²
4 bedroom detached house for sale in The Gables, Haddenham, HP17 — £525,000 • 4 bed • 1 bath • 1219 ft²
4 bedroom detached house for sale in Haddenham, Buckinghamshire, HP17 — £595,000 • 4 bed • 1 bath • 1356 ft²
4 bedroom detached house for sale in Cotts Field, Haddenham, HP17 — £665,000 • 4 bed • 2 bath • 1625 ft²
4 bedroom detached house for sale in The Croft, Haddenham, HP17 — £897,000 • 4 bed • 3 bath • 1373 ft²
4 bedroom detached house for sale in The Gables, Haddenham, HP17 — £525,000 • 4 bed • 2 bath • 1098 ft²


























































































































































































