**Standout Features:**
- Stunning Grade II listed Georgian ground floor apartment
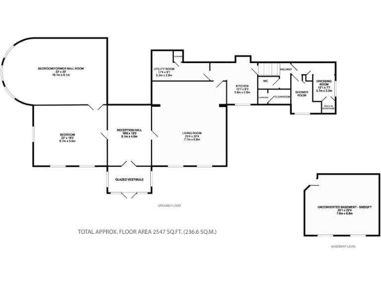
- Expansive 2,547 sq ft layout with original period features
- Historic ballroom measuring 33ft, perfect for entertaining
- Exclusive use of private garden within 4 acres of communal grounds
- Off-street parking available, with visitor spaces
- Convenient location near Welwyn North mainline station
- Potential for basement conversion (currently utilized for storage)
**Notable Concerns:**
- Above-average service charge of £5,400 per annum
- Renovation and extension restrictions due to listed status
- Slow broadband speeds in the area
Nestled in the serene setting of Marden Hill, Hertford, this exceptional ground floor apartment in a historic Georgian manor radiates charm and elegance. Boasting impressive period features throughout, including a magnificent 33ft ballroom, the expansive living space of 2,547 sq ft offers both comfort and grandeur. The apartment benefits from a private garden, nestled within 4 acres of beautifully maintained communal grounds, enhancing the exclusive feel of this stately home.
With easy access to Welwyn North mainline station, this property is ideal for commuters seeking a tranquil lifestyle while remaining close to urban conveniences. Although the service charge is on the higher side and the property has listed status which limits renovation potential, its unique character and spacious layout present a remarkable opportunity for families or discerning buyers looking to embrace countryside living with historical significance. Don’t miss out on this rare listing—properties of this caliber are seldom available for long!
3 bedroom apartment for sale in Marden Hill, Hertford, SG14 — £1,295,000 • 3 bed • 1 bath • 2500 ft²
3 bedroom apartment for sale in Marden Hill, Hertford, SG14 — £1,100,000 • 3 bed • 2 bath • 2648 ft²
3 bedroom apartment for sale in Marden Hill, Hertford, SG14 — £1,100,000 • 3 bed • 2 bath • 2600 ft²
5 bedroom country house for sale in Marden Hill, Hertford, SG14 — £2,300,000 • 5 bed • 3 bath • 6018 ft²
4 bedroom apartment for sale in Marden Hill House, Marden Hill, Nr Hertford, Hertfordshire, SG14 — £1,000,000 • 4 bed • 3 bath • 3526 ft²
2 bedroom apartment for sale in Campions, Old Harlow, CM17 — £665,000 • 2 bed • 1 bath • 1855 ft²






















































































































































