SE15 3AS - 3 bed victorian home with extension in Surrey Road, SE15 3AS

View on Property Piper

3 bedroom end of terrace house for sale in Surrey Road, Nunhead, London, SE15

Summary - 49, Surrey Road SE15 3AS

3 bed 2 bath End of Terrace

Newly renovated living close to Nunhead Green and excellent transport links.
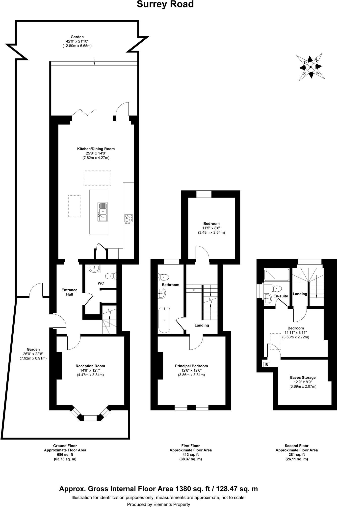
Three double bedrooms and two bathrooms in 1,380 sq ft of living space
Set on a quiet, tree-lined street in the heart of Nunhead, this newly renovated three-bedroom Victorian end-of-terrace combines period character with contemporary living. The property offers generous proportions across 1,380 sq ft, including a large open-plan kitchen extension that floods the ground floor with natural light and opens onto a landscaped garden through bi-fold doors.

The home has been refurbished to a high standard throughout: modern kitchen, two bathrooms, double glazing, and new finishes that suit family life and entertaining. Its freehold tenure, sizeable internal space and convenient side entrance add practical appeal for day-to-day living. Excellent local transport links (Nunhead station and nearby Peckham Rye) make commuting straightforward.

Practical points to note: the house was constructed circa 1900–1929 and has solid brick walls with no known cavity insulation (buyers may wish to budget for wall insulation to improve thermal performance). The EPC is rated D and council tax sits in Band E, above average for the area. The plot is modest in size despite a landscaped garden, so outside space is well designed but compact.

The property sits within a sought-after local community with fast broadband, strong mobile signal, and good local schools including several rated Good or Outstanding. This house will suit families wanting a ready-to-move-in Victorian home with contemporary extensions, buyers seeking a spacious freehold in Zone 2, or those looking to add selective thermal upgrades over time.

Property Details

Image Descriptions

Floorplan Description

Rooms

Textual Property Features

Target Audience

AI Tags

Detected Visual Features

EPC Details

Nearby Schools

Nearest Bars And Restaurants

,,,,}

Nearest General Shops

,,}

Nearest Grocery shops

,,}

Nearest Supermarkets

,,}

Nearest Religious buildings

,,}

Nearest Medical buildings

,,,}

Nearest Airports

,,}

Nearest Leisure Facilities

,,,,}

Nearest Tourist attractions

,,}

Nearest Train stations

,,,,}

Nearest Bus stations and stops

,,,,}

Nearest Hotels

,,}

Tags

Local Market Stats

AirBnB Data

Similar Properties

Meta

High Res Images

Compatible Images

Low res Images

Thumbnails

Raw Images

High Res Floorplan Images

Compatible Floorplan Images

Low res Floorplan Images

FloorplanImages Thumbnail

Raw Floorplan Images