**Highlights:**
- Spacious three-bedroom semi-detached family home
- Extended kitchen/breakfast room and bright Sun Room
- Two separate reception rooms plus ground floor WC
- Long double garage with potential for additional parking/garages (subject to planning)
- Large rear garden ideal for family activities
- Convenient location near Gillingham town centre and schools
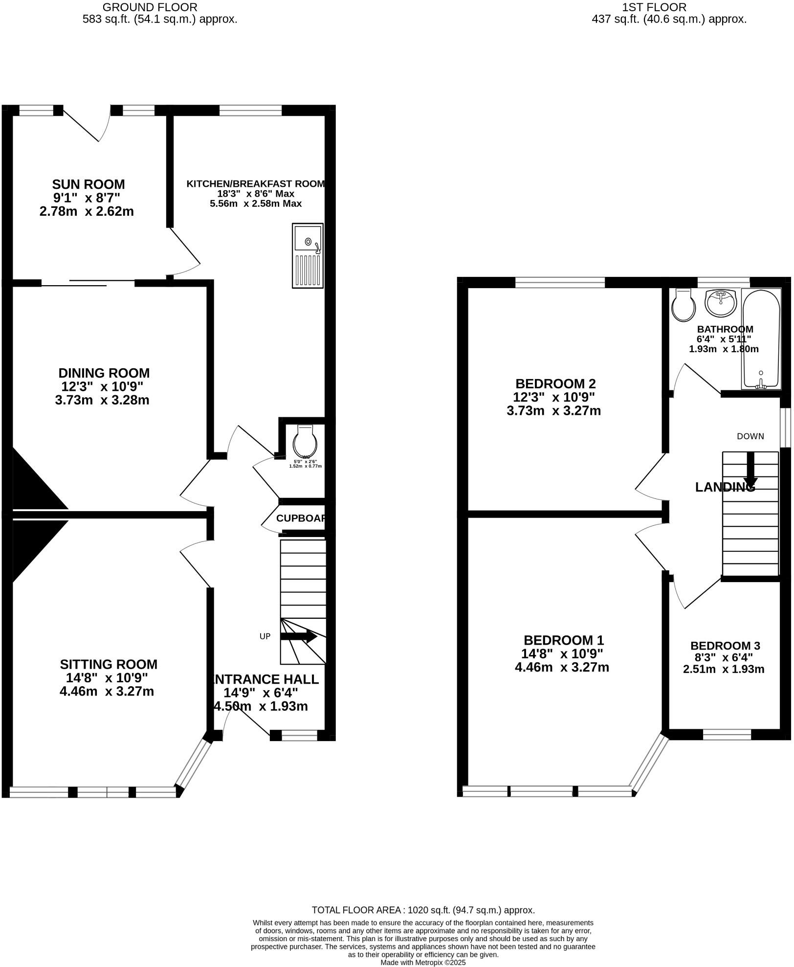
This delightful three-bedroom semi-detached home offers a perfect blend of space and comfort ideal for family living. With two well-proportioned reception rooms and an extended kitchen/breakfast room, this home is designed for both everyday living and entertaining. The bright Sun Room and sizeable garden present an inviting space for outdoor fun and relaxation. Upstairs, you’ll find two double bedrooms and a good-sized third bedroom, accompanied by a family bathroom and a convenient ground floor WC.
The long double garage provides ample parking and storage solutions, and there’s potential to create additional parking or even extra garages at the rear, opening the door to personalized enhancements (subject to planning). Located in a family-friendly area with easy access to local schools rated 'Good' and essential amenities, this property is not just a house but a future family haven. Though the local crime rate is noted to be high, the excellent mobile signal and fast broadband are compelling features for modern lifestyles.
Seize this fantastic opportunity to invest in a spacious family home filled with potential—schedule your viewing today!











































































