Ready-furnished one-bed retirement plot close to Exeter city centre.
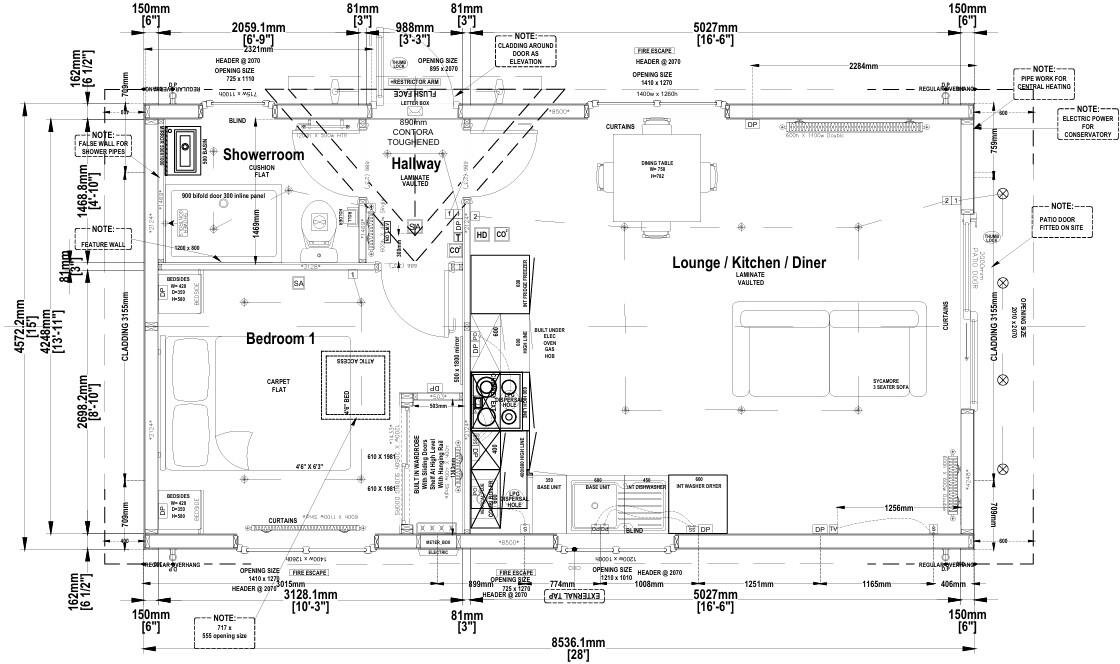
Brand-new 30 x 16ft one-bedroom park home, built 2025
A brand-new 30 x 16ft one-bedroom park home positioned on a corner plot in Ringswell Park, designed for over-50s seeking low-maintenance living close to Exeter city centre. The interior is finished in a modern grey palette with an open-plan lounge/diner, integrated kitchen appliances, double glazing and gas central heating — all supplied ready-furnished so you can move straight in.
Outside, the plot is arranged for minimal upkeep with gravel landscaping and one off-street parking space. Practical comforts include excellent mobile signal, fast broadband and convenient transport links to the city, airport and M5. The layout and size suit a downsizer wanting a compact, contemporary home with modern fittings and straightforward maintenance.
Important practical points: the property is a park home with an exempt EPC and an advertised ground rent of £175 per month (approximately £2,100 per year), which is a significant ongoing cost. Tenure details are not provided and should be checked before purchase. The local crime level is above average for the area, which may be a consideration for some buyers.
Overall this is a convenient, ready-to-live-in option for someone over 50 who prioritises a modern, low-upkeep home close to city amenities — provided they accept the park-home fees and verify tenure and service arrangements beforehand.
2 bedroom park home for sale in Montgomery Road, Ringswell Park, Exeter, EX2 — £100,000 • 2 bed • 1 bath • 361 ft²
2 bedroom park home for sale in Ringswell Park, Exeter, EX2 — £170,000 • 2 bed • 1 bath
2 bedroom park home for sale in Drake Avenue, Ringswell Park, Exeter, EX2 — £190,000 • 2 bed • 1 bath • 676 ft²
1 bedroom park home for sale in Drake Avenue, Ringswell Park, Exeter, EX2 — £110,000 • 1 bed • 1 bath
2 bedroom park home for sale in Drake Avenue, Ringswell Park, Exeter, EX2 — £110,000 • 2 bed • 1 bath • 478 ft²
2 bedroom park home for sale in The Firs, Longdown Road, Exeter, EX2 — £220,000 • 2 bed • 2 bath • 665 ft²










































