Backing the golf course with conservatory, hot tub and owned solar panels for lower bills.
Guide price £630,000–£650,000
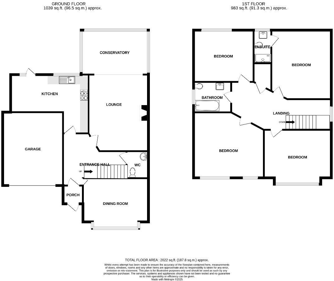
A substantial four-double-bedroom detached home on a generous plot, offering flexible family living across two storeys and a boarded loft. The house benefits from owned solar panels, an integral garage, wide driveway parking and a conservatory with a hot tub, all backing directly on to the golf course for open, relaxing views. A modern fitted kitchen, separate utility and dining room support everyday family routines, while a large lounge leads to the conservatory and garden.
Practical upgrades already in place include double glazing and a 3–4 year old boiler; the solar panels are owned and reported to reduce combined energy bills by around £100 pcm and provide daytime electricity. Accommodation includes a modern four-piece family bathroom plus an additional ensuite-style bathroom for the master bedroom, giving good provision for a busy household.
This is Freehold, low-crime, low-flood-risk family accommodation in an affluent suburb with fast broadband and excellent mobile signal. The property dates from the late 1990s–early 2000s, so while many main services are modern, buyers should inspect for typical wear and consider personalization or light updating to suit tastes. Early viewing is recommended to appreciate the size, layout and golf-course aspect.
4 bedroom detached house for sale in George Close, Canvey Island, SS8 — £675,000 • 4 bed • 3 bath • 2130 ft²
6 bedroom detached house for sale in George Close, Canvey Island, SS8 — £900,000 • 6 bed • 1 bath • 2595 ft²
4 bedroom detached house for sale in Ameland Road, Canvey Island, SS8 — £465,000 • 4 bed • 2 bath • 1453 ft²
4 bedroom detached house for sale in Fernlea Road, Benfleet, SS7 — £525,000 • 4 bed • 2 bath • 1600 ft²
4 bedroom detached house for sale in Papenburg Road, Canvey Island, SS8 — £550,000 • 4 bed • 3 bath • 1645 ft²
3 bedroom detached house for sale in Rowan Close, RAYLEIGH, Essex, SS6 — £450,000 • 3 bed • 2 bath • 1205 ft²


























































































































