Ready-to-move home with low running costs close to the station.
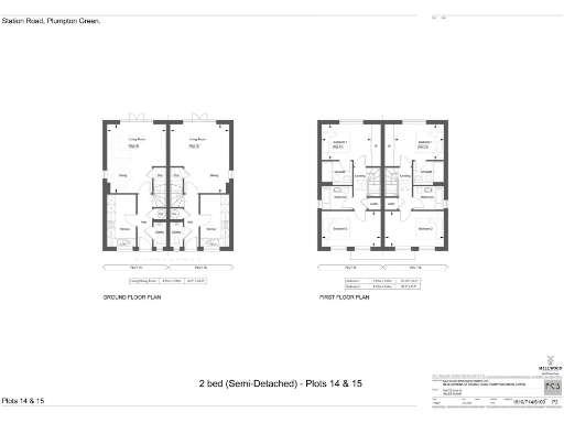
Two double bedrooms with ensuite and family bathroom
Includes PV solar panels and air-source heat pump
Comes fully furnished; 5% deposit already paid
10-year LABC new-build guarantee in place
Two allocated off-street parking spaces
Private landscaped garden and modern patio area
Very small overall size ~456 sq ft — limited storage
Slow broadband and average mobile signal in area
This compact two-bedroom semi offers a practical, low-maintenance first home in a sought-after village location. Built by Elivia Homes as part of a new development, the property includes two bathrooms, an allocated pair of parking spaces and a private garden — ready to move into with all furnishings included and a 5% deposit already paid.
Running costs are reduced by PV solar panels and an air-source heat pump for central heating; the home is also covered by a 10-year LABC guarantee. The layout suits daily life with an entrance hall and cloakroom, kitchen, open lounge/diner and a master bedroom with ensuite, plus a guest bedroom and family bathroom. Plumpton station is within walking distance and local amenities include a village shop, pub and primary school in the immediate area.
Be aware this is a small property (approximately 456 sq ft) best suited to first-time buyers, single occupants or couples rather than those needing lots of storage or large living spaces. Broadband speeds in the area are slow and mobile signal is average, which may affect remote working. The house is freehold and positioned in a very low-crime, affluent village setting, with school catchment options including Chailey School.
2 bedroom semi-detached house for sale in Kiln Wood Lane, Wivelsfield Green, RH17 — £475,000 • 2 bed • 2 bath • 870 ft²
2 bedroom semi-detached house for sale in South Road,
Wivelsfield Green, Haywards Heath,
East Sussex
RH17 7QR, RH17 — £455,000 • 2 bed • 2 bath • 870 ft²
2 bedroom house for sale in Station Road, Berwick, East Sussex, BN26 6SZ, BN26 — £450,000 • 2 bed • 2 bath • 850 ft²
2 bedroom semi-detached house for sale in South Road,
Wivelsfield Green, Haywards Heath,
East Sussex
RH17 7QR, RH17 — £475,000 • 2 bed • 2 bath • 870 ft²
4 bedroom detached house for sale in West Gate, Plumpton Green, Lewes, BN7 — £650,000 • 4 bed • 2 bath • 1055 ft²
4 bedroom detached house for sale in Oakfield Lane, Plumpton Green, Lewes, East Sussex, BN7 — £745,000 • 4 bed • 2 bath • 1389 ft²






































































