Chain-free, single-floor living with a large private garden and garage.
Chain-free freehold bungalow with two bedrooms and single-level living
Large, level rear garden with deck, lawn, shed and privacy
Private garage plus front garden and parking space
Presented in modern decorative order throughout
Electric storage heaters — higher running costs than gas systems
Modest overall footprint; rooms relatively small for a bungalow
Exterior maintenance needed (roof and landscaping attention advised)
Local area crime recorded as above average — check security/insurance
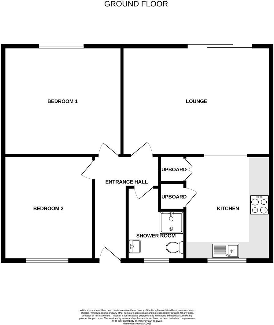
Set away on a quiet stretch of Brennacott Road, this two-bedroom terraced bungalow offers low-maintenance single-floor living with a generous, level garden — ideal for downsizers or those seeking an easy-to-manage home. The interior is presented in contemporary decorative order with good natural light, sliding doors from the lounge to the rear deck, and tidy, modern finishes throughout. Broadband speeds and mobile coverage are strong, supporting home-working or streaming.
Practical features include a private garage, a decent-sized rear plot with lawn and decking, and double glazing. The layout is straightforward and accessible, with two bedrooms and a compact kitchen and bathroom that suit single-level living. The property is offered freehold and chain-free, so it’s ready for an immediate move or quick refurbishment to add personal touches.
Buyers should note the bungalow’s compact overall footprint — rooms are modest in scale — and the property uses electric storage heaters, which can be more expensive to run than gas central heating. There are also signs of external maintenance needs (roof and landscaping attention noted), and local crime levels are recorded as above average; prospective buyers should satisfy themselves on security and insurance costs.
In short, this quietly positioned bungalow delivers comfortable, modern single-storey living with scope to improve and personalise. It suits someone looking for a low-stairs home near Bideford’s amenities, beaches and the Tarka Trail, provided they accept the modest room sizes and the running/maintenance considerations.
2 bedroom bungalow for sale in Brennacott Road, Bideford, EX39 — £175,000 • 2 bed • 1 bath • 615 ft²
2 bedroom bungalow for sale in Moreton Park Road, Bideford, EX39 — £170,000 • 2 bed • 1 bath • 621 ft²
2 bedroom bungalow for sale in South Avenue, Bideford, Devon, EX39 — £245,000 • 2 bed • 1 bath • 572 ft²
2 bedroom bungalow for sale in East Ridge View, Bideford, Devon, EX39 — £262,500 • 2 bed • 2 bath • 711 ft²
2 bedroom bungalow for sale in East Ridge View, Bideford, EX39 — £250,000 • 2 bed • 2 bath • 948 ft²
3 bedroom bungalow for sale in Hanson Park, Northam, Bideford, Devon, EX39 — £285,000 • 3 bed • 1 bath • 752 ft²


































































