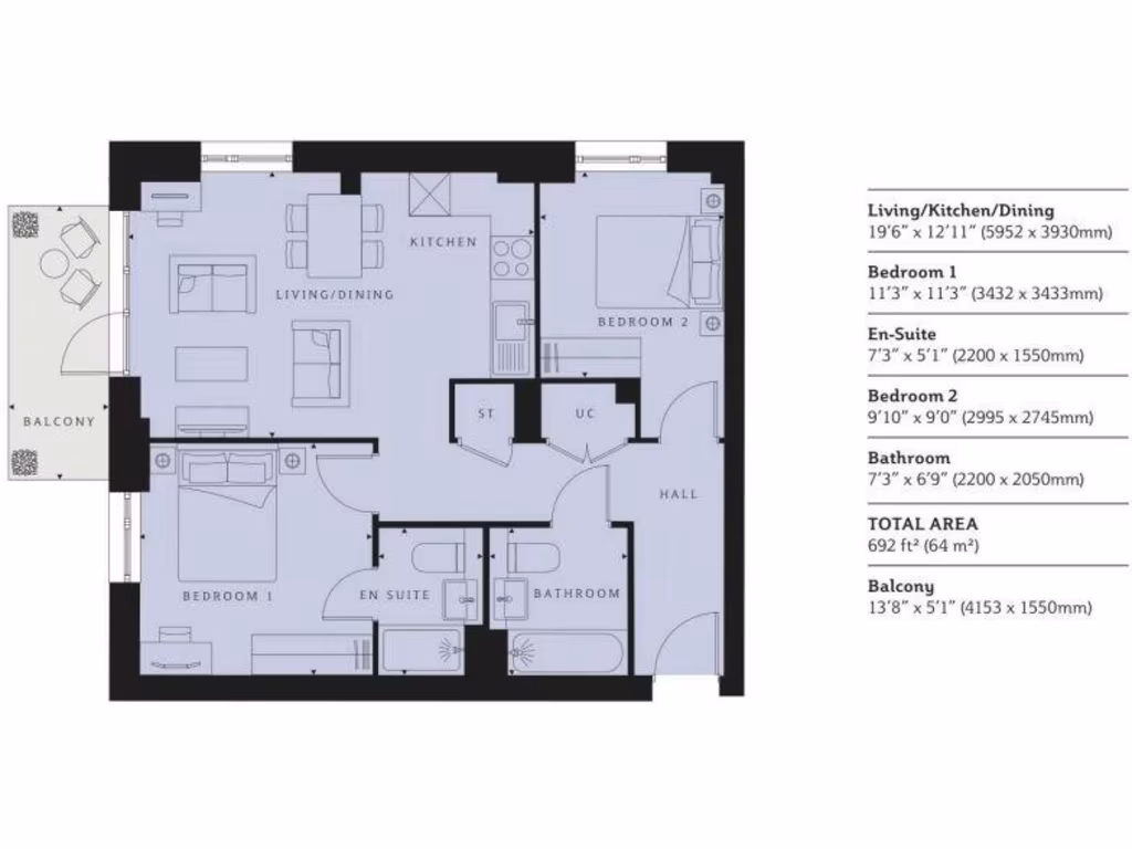
**Property Summary for Wembley Park Gardens, HA9 8PW**
- **Price:** £635,000
- **Type:** 2-Bedroom Flat (Leasehold)
- **Size:** 692 sq ft
- **Location:** Wembley Park, North-West London
- **Amenities:** Private garden, open-plan living, integrated kitchen, balcony
- **Safety:** Very low crime rate
- **Regeneration Potential:** Located in an area benefiting from a £2.5 billion regeneration project
Discover contemporary urban living at its finest in this brand new 2-bedroom flat located in the highly sought-after Wembley Park Gardens development. Spanning a comfortable 692 square feet, this modern home offers high ceilings and large windows that flood the space with natural light. The open-plan layout seamlessly connects living and kitchen areas, perfect for entertaining.
Step outside to enjoy beautifully landscaped podium gardens, providing a tranquil oasis amidst bustling city life. With a private balcony to savor the views, you’ll have a personal retreat right at home. Enjoy quick access to local amenities, with a variety of shops, eateries, and schools (including outstanding-rated options) just minutes away.
Commuters will appreciate being a minute's walk from Wembley Park Station, linking you to central London in just 20 minutes. The vibrant local culture, marked by iconic venues like Wembley Stadium and the OVO Arena, ensures you’ll always have something exciting at your doorstep.
While this flat represents a remarkable buying opportunity in a thriving area, potential buyers should be aware of its leasehold status. Don’t miss the chance to secure your piece of this rapidly developing neighborhood — properties in this prime location won’t last long!
1 bedroom flat for sale in Wembley Park Gardens,
Brook Avenue, HA9 — £3,850,000 • 1 bed • 1 bath • 402 ft²
1 bedroom flat for sale in Wembley Park Gardens,
Brook Avenue, HA9 — £435,000 • 1 bed • 1 bath • 402 ft²
2 bedroom apartment for sale in Wembley Park Gardens, Brook Avenue, Wembley, HA9 — £535,000 • 2 bed • 2 bath
2 bedroom flat for sale in Wembley Park Gardens, Brook Ave, Wembley, HA9 — £575,000 • 2 bed • 2 bath • 716 ft²
2 bedroom apartment for sale in Brook Avenue,
Wembley,
HA9 8PH, HA9 — £561,000 • 2 bed • 1 bath • 689 ft²
1 bedroom flat for sale in Pullman House, Brook Avenue, HA9 — £391,000 • 1 bed • 1 bath • 407 ft²






















































