ML4 3BX - 2 bedroom end of terrace house for sale in Caledonian Avenu…

View on Property Piper

2 bedroom end of terrace house for sale in Caledonian Avenue, Bellshill, ML4

Summary - Caledonian Avenue, Bellshill, ML4 ML4 3BX

2 bed 1 bath End of Terrace

**Standout Features:**
- Newly renovated, move-in ready condition
- 2 spacious double bedrooms
- Modern kitchen with integrated appliances and direct garden access
- Stunning bathroom with rainfall shower
- Off-street parking for multiple vehicles
- Secure south-east facing garden with timber sun deck
- Excellent mobile and broadband connectivity
- Very affordable council tax

**Summary:**
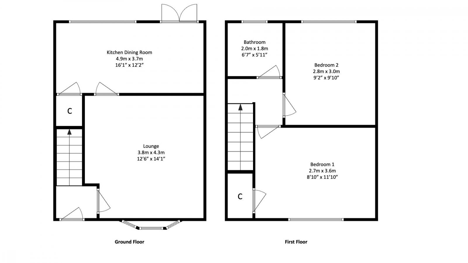
Discover this beautifully renovated 2-bedroom end-terrace home, perfectly situated in a vibrant community near Bellshill Train Station and local amenities. With an inviting open-plan layout, the spacious lounge features a bay window that pours in natural light, while the modern dining kitchen is perfect for entertaining, complete with French doors leading to a sunny garden deck.

Upstairs, you’ll find two generously sized double bedrooms, both with potential for additional storage. The loft space adds further flexibility and can be adapted to suit your needs, pending planning permissions. Enjoy the luxury of a stylish bathroom with contemporary finishes, complemented by gas central heating and double glazing throughout.

This property also offers a block-paved driveway for off-street parking and is ideally located for commuters with easy access to the M74 and M8. The area boasts a variety of local amenities, including highly regarded schools and leisure facilities, making it perfect for families or first-time buyers. Given its prime location and excellent condition, early viewing is highly recommended—this is a unique opportunity you won't want to miss!

Property Details

Image Descriptions

Rooms

Textual Property Features

Detected Visual Features

Nearest Bars And Restaurants

,,,,}

Nearest General Shops

,,}

Nearest Grocery shops

,,}

Nearest Supermarkets

,,}

Nearest Religious buildings

,,}

Nearest Medical buildings

,,,}

Nearest Airports

,}

Nearest Leisure Facilities

,,,,}

Nearest Tourist attractions

,,}

Nearest Train stations

,,,,}

Nearest Bus stations and stops

,,,,}

Nearest Hotels

,,}

Tags

Local Market Stats

Similar Properties

Meta

High Res Images

Compatible Images

Low res Images

Thumbnails

Raw Images

High Res Floorplan Images

Compatible Floorplan Images

Low res Floorplan Images

FloorplanImages Thumbnail

Raw Floorplan Images