Move-in-ready three-bed with garage and south garden, ideal for first buyers.
Freehold three-bedroom end-terrace with off-street parking
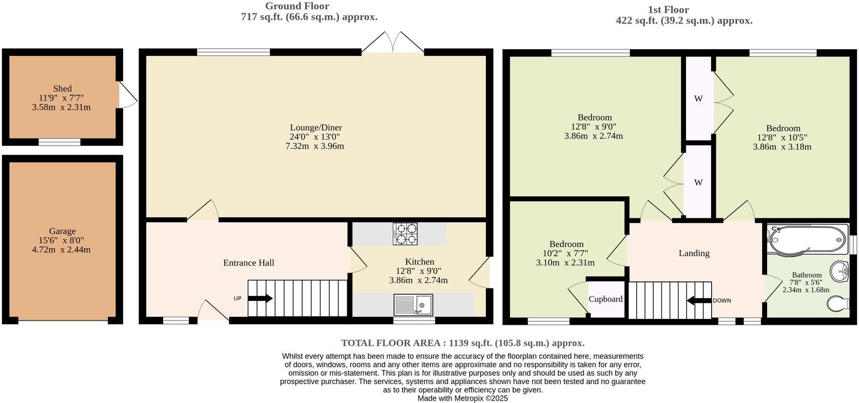
Well-presented three-bedroom end-terrace in the heart of Badersfield, offered freehold with off-street parking and an en-bloc garage nearby. The ground floor features a spacious open-plan lounge and dining area with large rear doors that flow onto a south-facing, fully enclosed garden with a new patio and a powered shed. The kitchen is bright and practical with plentiful storage and side access for everyday convenience.
Upstairs provides two double bedrooms with built-in wardrobes and a third room well-suited as a study or nursery. The family bathroom is modern with a full-size bath and overhead shower. Practical comforts include double glazing, gas central heating (boiler and radiators), and a sensible room layout across two storeys, making the home low-maintenance and largely move-in-ready.
Notable considerations are listed plainly: there are asbestos-containing tiles beneath the carpet, broadband speeds are slow in the area, and an annual maintenance/service charge of £760 applies. The EPC is rated D. These factors will be important for buyers to factor into future running costs and any refurbishment plans.
Positioned in a quiet village setting with very low crime, good mobile signal and easy road links to Wroxham, North Walsham and Norwich, this property suits first-time buyers seeking a practical starter home or investors looking for a straightforward, let-ready asset. Local schools are well-regarded and village amenities are within walking distance, while countryside and larger town facilities remain easily accessible.
3 bedroom terraced house for sale in Ormesby Road, Badersfield, NR10 — £230,000 • 3 bed • 1 bath • 952 ft²
2 bedroom terraced house for sale in Ormesby Road, Badersfield, NR10 — £190,000 • 2 bed • 1 bath • 724 ft²
3 bedroom semi-detached house for sale in Barton Road, Badersfield, Norfolk, NR10 — £240,000 • 3 bed • 1 bath • 1001 ft²
3 bedroom terraced house for sale in Ormesby Road, BADERSFIELD, NR10 — £220,000 • 3 bed • 2 bath • 964 ft²
3 bedroom semi-detached house for sale in Ormesby Road, Badersfield, NR10 — £220,000 • 3 bed • 1 bath • 832 ft²
2 bedroom terraced house for sale in Ormesby Road, Badersfield, NR10 — £200,000 • 2 bed • 1 bath • 851 ft²






































































