**Standout Features:**
- Iconic 17th-century Georgian townhouse with Grade II listing
- Beautifully renovated with modern finishes while preserving period charm
- Private courtyard with powered outhouse (WC included)
- Close proximity to green spaces and local amenities
- Highly sought-after Stokesley market town location
- Move-in ready condition with high-quality materials and stylish décor
**Summary:**
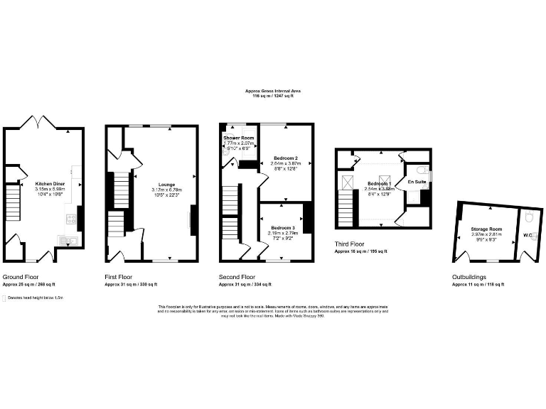
Discover the elegance of this stunning Grade II listed Georgian townhouse in the heart of Stokesley’s College Square. This unique 3-bedroom property perfectly marries classic period aesthetics with contemporary living, boasting tasteful renovations made over the last two and half years. Its spacious, open-plan kitchen leads seamlessly to a private courtyard ideal for outdoor entertaining or tranquil relaxation. The versatile outhouse provides a myriad of options, from a guest suite to a utility space.
Located in a vibrant market town known for its strong community feel, this home is a stone's throw away from lush parks, quaint shops, and a variety of dining options, making it perfect for families and first-time buyers alike. Embrace a lifestyle rich in amenities and engagement with local traditions, such as the bustling farmers market and active sports clubs.
While the exquisite design and location are undeniable, it is important to note that renovations or further developments may be challenging due to its listed status. Don't miss out on this rare gem, as homes of this caliber in Stokesley are in high demand. Schedule a viewing today and envision your future in this charming townhouse.
1 bedroom terraced house for sale in High Street, Stokesley, TS9 — £130,000 • 1 bed • 1 bath • 382 ft²
3 bedroom terraced house for sale in College Square, Stokesley, Middlesbrough, TS9 — £350,000 • 3 bed • 2 bath • 1345 ft²
3 bedroom terraced house for sale in West Green, Stokesley, TS9 — £295,000 • 3 bed • 2 bath • 1363 ft²
3 bedroom end of terrace house for sale in College Square, Stokesley, TS9 — £250,000 • 3 bed • 1 bath • 857 ft²
3 bedroom terraced house for sale in West Green, Stokesley, North Yorkshire, TS9 — £260,000 • 3 bed • 2 bath • 1028 ft²
2 bedroom terraced house for sale in East End, Stokesley, Middlesbrough, North Yorkshire, TS9 — £275,000 • 2 bed • 1 bath • 1378 ft²


































































































