BD6 1DP - 3 bedroom terraced house for sale in Larch Hill, Odsal, Bra…

View on Property Piper

3 bedroom terraced house for sale in Larch Hill, Odsal, Bradford, BD6

Summary - 68 LARCH HILL BRADFORD BD6 1DP

3 bed 1 bath Terraced

Chain-free mid-terrace with large rear garden and attic room — ideal first home.
Three bedrooms plus useful attic room with Velux
An affordable three-bedroom mid-terrace with an additional attic room, generous rear gardens and off-street parking — a good entry point for first-time buyers or young families. The house is offered chain free and presents tidy decoration, double glazing and gas central heating, ready to occupy while offering scope to personalise and improve energy efficiency.

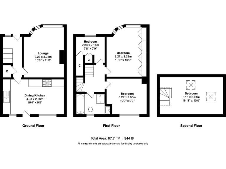
Ground-floor layout includes a bay-fronted living room and dining kitchen that opens to a decked seating area. Upstairs are three bedrooms and a four-piece family bathroom; fixed stairs lead to a useful attic room with a Velux window, ideal as an occasional bedroom, playspace or home office. The larger-than-average rear garden provides extensive outdoor space for children or gardening.

Practical strengths include off-street parking to the front, fast broadband and excellent mobile signal. The property sits close to schools, shops and commuter routes into neighbouring towns and the city. Council tax is described as cheap, and the freehold tenure means no ground rent or lease concerns.

Be realistic about local context: the wider area is classified as deprived with above-average crime levels, so buyers should factor local environment and resale considerations into plans. The property’s cavity walls are noted as having no insulation (assumed), so there is clear potential to reduce running costs through insulation and other energy improvements.

Property Details

Brochure Descriptions

Image Descriptions

Floorplan Description

Rooms

Textual Property Features

Target Audience

AI Tags

Detected Visual Features

EPC Details

Nearby Schools

Nearest Bars And Restaurants

,,,,}

Nearest General Shops

,,}

Nearest Grocery shops

,,}

Nearest Supermarkets

,,}

Nearest Religious buildings

,,}

Nearest Medical buildings

,,,}

Nearest Airports

}

Nearest Leisure Facilities

,,,,}

Nearest Tourist attractions

,,}

Nearest Train stations

,,,,}

Nearest Bus stations and stops

,,,,}

Nearest Hotels

,,}

Tags

Local Market Stats

Similar Properties

Meta

High Res Images

Compatible Images

Low res Images

Thumbnails

Raw Images

High Res Floorplan Images

Compatible Floorplan Images

Low res Floorplan Images

FloorplanImages Thumbnail

Raw Floorplan Images