Substantial rural home with cottage and outbuildings, ideal for family living or income.
Approx 14.6 acres with commanding 360° Peak District views
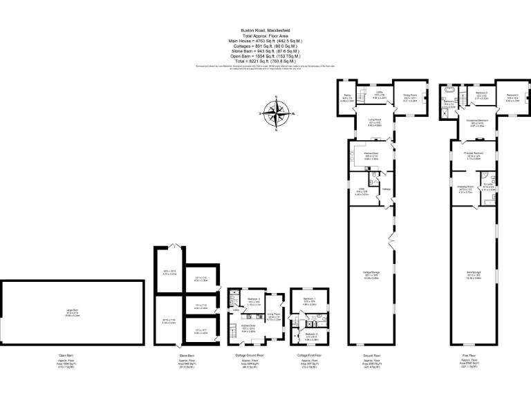
A substantial 17th‑century stone farmhouse set in about 14.6 acres on a commanding ridge within the Peak District National Park. The main house offers flexible, generous accommodation with original features—stone mullions, flagged floors and exposed beams—alongside a high‑spec farmhouse kitchen and formal reception rooms centred on large fireplaces and wood burners. The property includes a fully renovated three‑bed holiday cottage (previously rented) and several outbuildings with significant conversion potential, subject to planning permission.
Practical positives include an extensive six‑car tandem garage with conversion scope, oil‑fired boiler and radiators, double glazing, and excellent mobile signal. The site is ideal for a family wanting rural seclusion with direct access to trails and local schools, or for a buyer seeking an income stream from the holiday cottage and scope for further development of barns.
Buyers should note material constraints: the main house has an EPC rating of D and the cottage a C; the external stone walls are uninsulated (assumed) and broadband speeds are very slow. Heating relies on oil rather than a mains gas network, and council tax is described as quite expensive. Any barn conversion or garage conversion will require planning consent and associated costs.
Overall this is a rare country property combining immediate livability with clear scope for enhancement and income generation. It will suit purchasers prepared for the running costs and retrofit investment that accompany a substantial historic farmhouse in a protected national park setting.
5 bedroom detached house for sale in Wildboarclough, Macclesfield, Cheshire, SK11 — £1,250,000 • 5 bed • 3 bath • 4399 ft²
5 bedroom detached house for sale in Quarnford, Buxton, Derbyshire, SK17 — £795,000 • 5 bed • 1 bath • 1798 ft²
4 bedroom detached house for sale in Longnor, Buxton, Staffordshire, SK17 — £1,350,000 • 4 bed • 4 bath • 4574 ft²
5 bedroom farm house for sale in Onecote Leek, Staffordshire, ST13 7RZ, ST13 — £1,000,000 • 5 bed • 4 bath • 3271 ft²
3 bedroom farm house for sale in The Old Farm House, Whaley Bridge, High Peak, Cheshire, SK23 — £900,000 • 3 bed • 3 bath • 2497 ft²
4 bedroom house for sale in Lyme Handley, Whaley Bridge, High Peak, SK23 — £1,000,000 • 4 bed • 2 bath • 2088 ft²






































































































































































































