DD10 8JL - 2 bedroom flat for sale in High Street, Montrose, DD10

View on Property Piper

2 bedroom flat for sale in High Street, Montrose, DD10

Summary - 26, HIGH STREET, MONTROSE DD10 8JL

2 bed 1 bath Flat

Immediate income investment — tenanted, furnished, and town-centre located..
Tenanted buy-to-let producing £600pcm (£7,200pa) with tenants in situ
Immediate yield approximately 11% based on asking price
Sold furnished with inventory included; income from day one
EPC rating C; gas central heating and partial double glazing
Second-floor flat with attic; sold as seen, requires maintenance
Located in very deprived, constrained-renter area — limited growth risk
Town-centre location; five-minute walk to train station and amenities
Home Report valuation £68,000 for buyer comparison
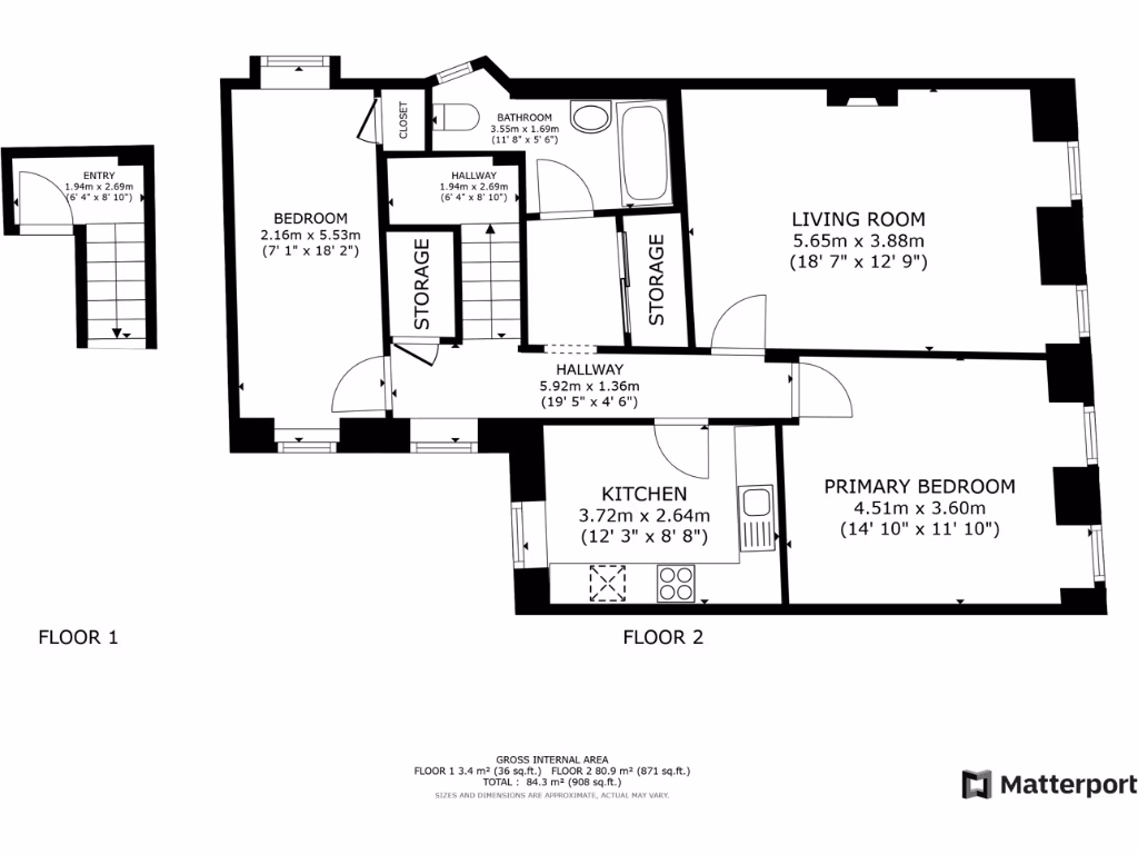
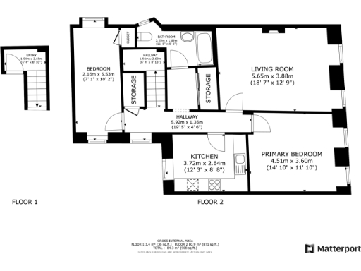
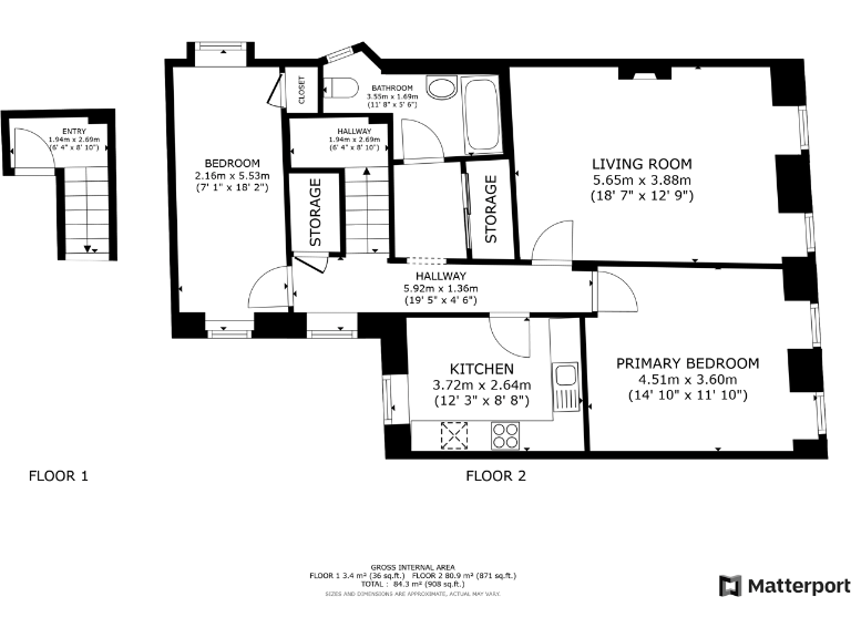
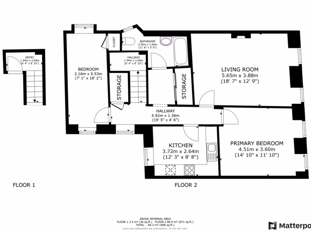
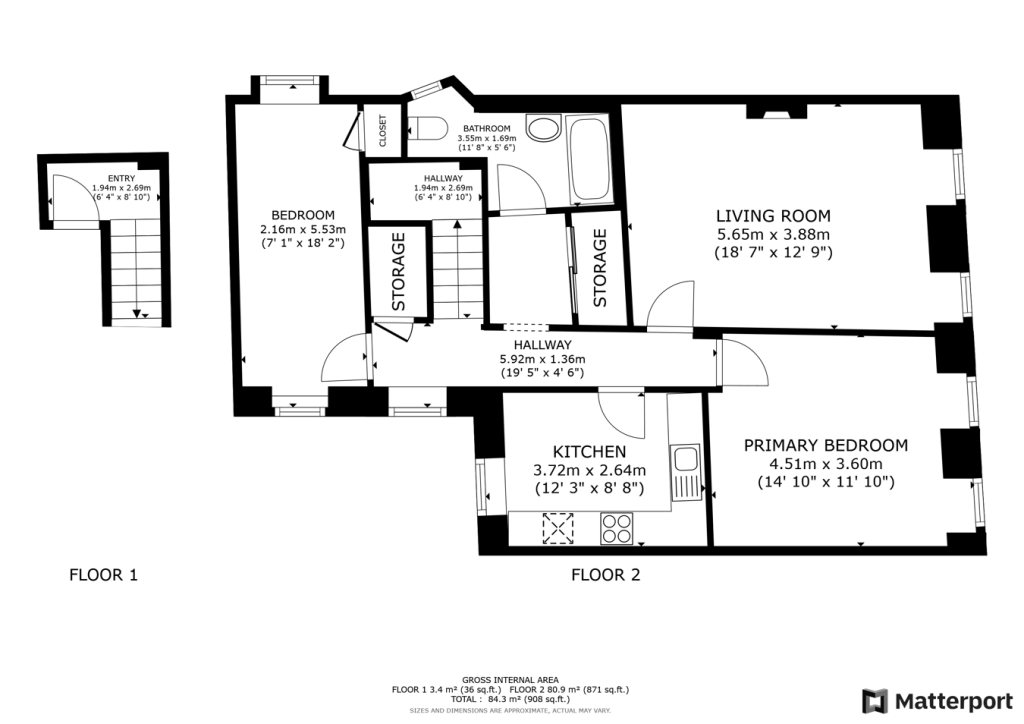
This second-floor, two-bedroom flat on Montrose High Street is offered as a buy-to-let investment with tenants in situ. It produces £600pcm (£7,200pa), reflecting an immediate yield of c.11% against the asking price of £64,995. The tenancy began September 2023 and the property is sold fully furnished with inventory included, providing rental income from day one.

The building is a Georgian mixed-use structure with period character to the exterior and typical upper-floor accommodation internally. The flat benefits from gas central heating, partial double glazing, an upper-floor attic, an EPC rating of C, fast broadband and excellent mobile signal—practical features for lettings in a town-centre location close to shops and the train station.

Notable considerations for investors: the property sits in a very deprived local area with a transitional Eastern European neighbourhood and constrained renter market, which may limit capital-growth prospects. The interior shows dated elements and some wall damage; the property is sold as seen and will require ongoing maintenance or cosmetic updating over time.

Overall this is a straightforward income purchase for a buyer prioritising immediate yield and hands-off tenancy. Buyers should budget for periodic maintenance, consider the local market conditions when modelling long-term returns, and note the Home Report valuation of £68,000 for comparison to the asking price.

Property Details

Brochure Descriptions

Image Descriptions

Floorplan Description

Rooms

Textual Property Features

Target Audience

AI Tags

Detected Visual Features

Nearest Bars And Restaurants

,,,,}

Nearest General Shops

,,}

Nearest Grocery shops

,,}

Nearest Supermarkets

,,}

Nearest Religious buildings

,,}

Nearest Medical buildings

,,,}

Nearest Leisure Facilities

,,,,}

Nearest Tourist attractions

,,}

Nearest Train stations

,,,,}

Nearest Bus stations and stops

,,,,}

Nearest Hotels

,,}

Tags

Local Market Stats

AirBnB Data

Similar Properties

Meta

High Res Images

Compatible Images

Low res Images

Thumbnails

Raw Images

High Res Floorplan Images

Compatible Floorplan Images

Low res Floorplan Images

FloorplanImages Thumbnail

Raw Floorplan Images