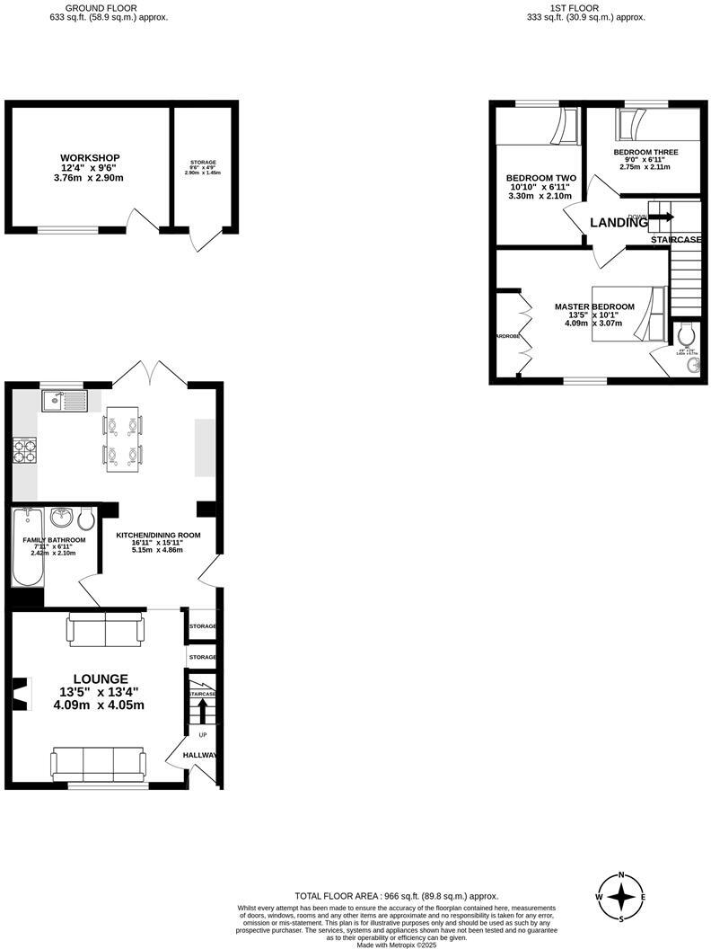
**Standout Features:**
- Three bedrooms with good proportions
- Extended kitchen/dining area with integrated appliances
- Cosy living room with wood-burning stove
- Private driveway for off-road parking
- Generous rear garden with low-maintenance design
- Versatile garden room/workshop
- Close to schools and excellent transport links
- EPC Rating: C
This charming three-bedroom semi-detached home in Lostock Hall offers a delightful combination of space and modern convenience. With approximately 966 sq. ft., the property features a welcoming entrance hallway that leads to a spacious living room, illuminated by natural light from a large front window and enhanced by a cozy log burner. The extended kitchen/dining area is perfect for family gatherings, boasting an integrated oven, abundant storage, and double patio doors that open to a sizable rear garden—a low-maintenance oasis with a flagged patio, woodchip area, and artificial lawn.
Upstairs, you’ll find three well-proportioned bedrooms, including a master with integrated storage and a private WC, showcasing thoughtful design for family life. The garden room/workshop offers additional versatile space ideal for hobbies or a home office. With a private driveway for off-road parking and easy access to local amenities and transport connections, this property is a fantastic opportunity for families or first-time buyers. Don’t miss out—early viewing is highly encouraged to secure this desirable home.
3 bedroom semi-detached house for sale in St. Cuthberts Road, Lostock Hall, Preston, PR5 — £185,000 • 3 bed • 1 bath • 1113 ft²
3 bedroom semi-detached house for sale in Wateringpool Lane, Lostock Hall, Preston, PR5 — £199,950 • 3 bed • 1 bath • 957 ft²
3 bedroom semi-detached house for sale in Avondale Drive, Lostock Hall, Preston, PR5 — £175,000 • 3 bed • 1 bath • 943 ft²
3 bedroom end of terrace house for sale in Moss Lane, Lostock Hall, PR5 — £169,950 • 3 bed • 1 bath • 927 ft²
2 bedroom semi-detached house for sale in Mercer Road, Lostock Hall, Preston, PR5 — £155,000 • 2 bed • 1 bath • 677 ft²
3 bedroom detached house for sale in Brackenbury Close, Lostock Hall, Preston, PR5 — £259,950 • 3 bed • 2 bath • 1057 ft²














































































