BS3 1PJ - 2 bed converted church flat in Park Road, BS3 1PJ

View on Property Piper

2 bedroom flat for sale in 4 Park Road, Southville, Bristol, BS3

Summary - THE PARISH, 4 FLAT 4 PARK ROAD SOUTHVILLE BRISTOL BS3 1PJ

2 bed 1 bath Flat

Spacious two-bed in a converted church with garage, chain free and close to North Street.
- Two double bedrooms over two floors, versatile layout
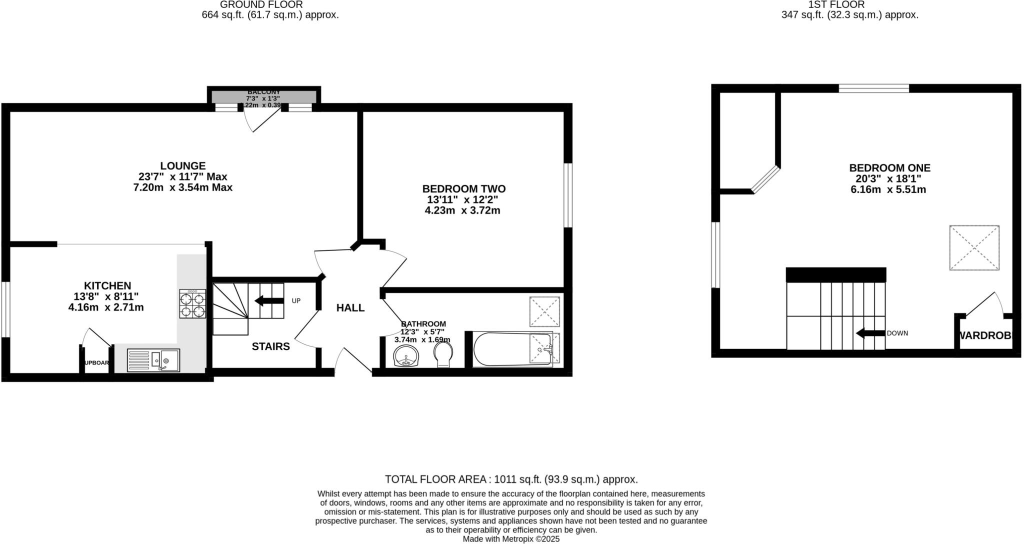
- Approx. 1,011 sq ft — larger than typical two-bed flats
- Private garage providing parking or storage — rare for area
- Chain free sale, long lease (975 years) for security
- Annual service charge £2,060.70; ground rent £50
- EPC rating D — energy improvements may be needed
- Converted church with varied ceiling heights and character
- Close to North Street amenities; average broadband speeds
Set within a converted Gothic Revival church, this chain-free two-bedroom flat combines period character with practical city living. Arranged over two floors, the apartment benefits from large arched windows and high ceilings in parts, while other rooms have lower attic-style ceilings — a building with varied character and a feeling of space. The open-plan living/kitchen is light and airy and opens to a Juliet balcony, creating a pleasant social hub for everyday life.

Both bedrooms are doubles and comfortable for a couple, small family or home office use. The property includes a rare private garage for the area, providing secure storage or parking — a significant convenience close to North Street’s shops, cafés and transport links. The flat totals approximately 1,011 sq ft, offering more space than many two-bedroom city flats.

Practical points are clear and straightforward: the tenure is leasehold with 975 years remaining, an annual service charge of £2,060.70 and a small ground rent of £50. The EPC rating is D. Broadband and local mobile signal are average-to-excellent and the location sits in an affluent, mixed neighbourhood popular with families and students.

This property will suit a first-time buyer or investor seeking a characterful, well-located home with real lifestyle benefits. Expect some compromises: varied ceiling heights, typical maintenance and communal costs associated with converted buildings, and an EPC that could be improved. Overall it’s a distinctive, spacious flat in a sought-after Bristol postcode, ready to move into chain-free.

Property Details

Brochure Descriptions

Image Descriptions

Floorplan Description

Rooms

Textual Property Features

Target Audience

AI Tags

Detected Visual Features

EPC Details

Nearby Schools

Nearest Bars And Restaurants

,,,,}

Nearest General Shops

,,}

Nearest Grocery shops

,,}

Nearest Supermarkets

,,}

Nearest Religious buildings

,,}

Nearest Medical buildings

,,,}

Nearest Airports

}

Nearest Leisure Facilities

,,,,}

Nearest Tourist attractions

,,}

Nearest Train stations

,,,,}

Nearest Bus stations and stops

,,,,}

Nearest Hotels

,,}

Tags

Local Market Stats

AirBnB Data

Similar Properties

Meta

High Res Images

Compatible Images

Low res Images

Thumbnails

Raw Images

High Res Floorplan Images

Compatible Floorplan Images

Low res Floorplan Images

FloorplanImages Thumbnail

Raw Floorplan Images