Affordable Southsea flat with parking and excellent connectivity for city living.
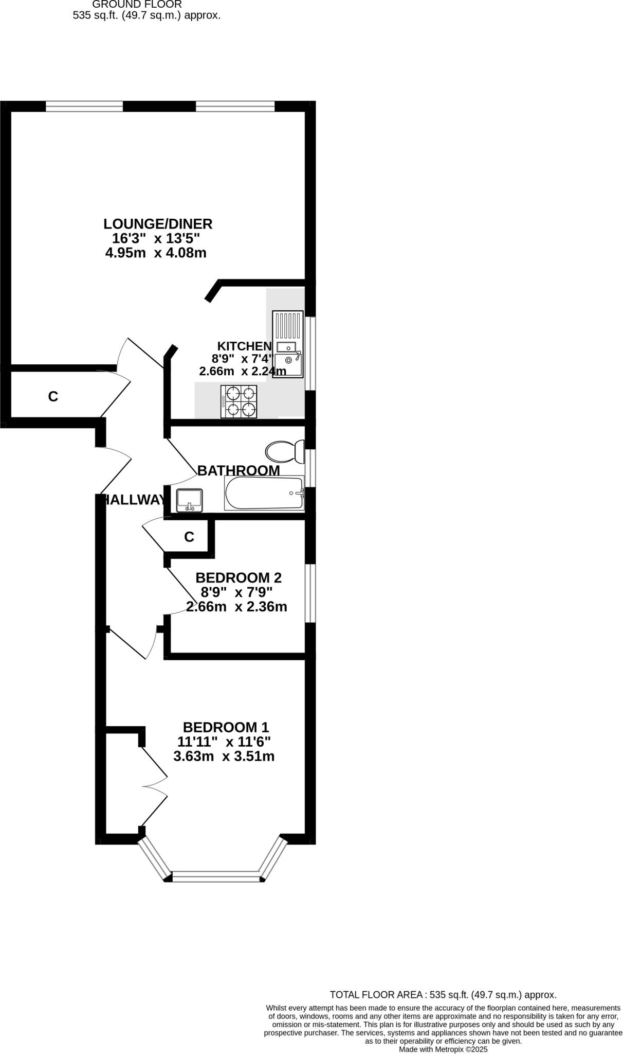
Top-floor two-bedroom flat with triple-aspect natural light
Compact overall size: approximately 535 sq ft
Off-street parking plus communal garden
Leasehold — about 90 years remaining
Main heating: electric room heaters, no central gas system
Double glazing present; installation date unknown
Fast broadband and excellent mobile signal
Nearby train station, shops and the beach within easy reach
Set on the top floor, this two-bedroom apartment delivers bright, triple-aspect living and plenty of natural light across a compact 535 sq ft layout. The sitting/dining room and separate kitchen offer practical everyday space, while a bay-windowed main bedroom adds character. Off-street parking and a communal garden are useful extras rarely found on town properties at this price.
The location is a major draw for first-time buyers: fast broadband, excellent mobile signal, nearby train station, local shops and the beach within easy reach. Modern brick construction from the late 1990s means the building should be low-maintenance, and double glazing is already in place (installation date unknown). Council tax is inexpensive, which helps running costs.
Buyers should note this is a leasehold flat with about 90 years remaining and primary heating is by electric room heaters rather than a central gas system. The overall size is small, so the layout suits those wanting efficient city living rather than wide-open rooms. No flooding risk is recorded.
This apartment suits a first-time buyer seeking an affordable entry into Southsea or an investor seeking a well-located rental. It balances bright, low-upkeep living with a compact footprint and simple heating — a straightforward, city-centre base close to amenities and transport.
2 bedroom flat for sale in Elm Grove, Southsea, PO5 — £120,000 • 2 bed • 1 bath • 463 ft²
2 bedroom flat for sale in Ashby Place, Southsea, PO5 — £190,000 • 2 bed • 1 bath • 593 ft²
2 bedroom apartment for sale in Ashburton Road, Southsea, Hampshire, PO5 — £200,000 • 2 bed • 1 bath • 410 ft²
2 bedroom apartment for sale in St. Helens Parade, Southsea, Hampshire, PO4 — £279,000 • 2 bed • 1 bath • 771 ft²
2 bedroom flat for sale in Albert Road, Southsea, PO5 — £190,000 • 2 bed • 1 bath • 562 ft²
2 bedroom apartment for sale in Shaftesbury Road, Southsea, PO5 — £220,000 • 2 bed • 1 bath • 657 ft²






























































