NE17 7DL - 3 bedroom terraced house for sale in Tweed Street, Chopwell…

View on Property Piper

3 bedroom terraced house for sale in Tweed Street, Chopwell, Newcastle upon Tyne, Tyne and Wear, NE17

Summary - 33 TWEED STREET CHOPWELL NEWCASTLE UPON TYNE NE17 7DL

3 bed 2 bath Terraced

**Property Highlights:**
- Three-bedroom mid terrace house with double storey extension
- Spacious accommodation with potential for personalization
- Chain-free sale; ready for immediate occupancy
- Affordable Council Tax Band A
- Enclosed private rear yard, ideal for outdoor space
- Close to local amenities in a quaint village with community projects
- Nearby countryside walks and easy access to Newcastle (11 miles)

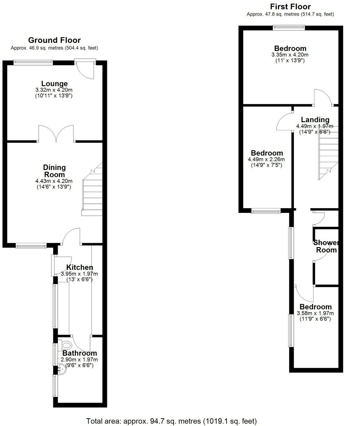
Situated in the heart of Chopwell, this charming three-bedroom mid terrace house offers great value, especially for first-time buyers or investors looking for rental potential. With a generous living area combining a cozy lounge with a traditional wood-burning stove and a well-equipped kitchen, this home provides warmth and functionality. The first floor comprises a spacious double bedroom, two single bedrooms, and a shower room, making it ideal for families or shared living.

The property features an enclosed private yard at the back, perfect for enjoying outdoor moments in comfort. While the EPC grade of D and solid brick construction suggest room for energy efficiency upgrades, the vibrant local community, including shops, medical services, and schools rated 'Good,' adds significant lifestyle appeal.

Don't miss out on this opportunity to secure an affordable home in a scenic town fringe area. Act quickly to arrange a viewing, as opportunities like this are fleeting!

Property Details

Image Descriptions

Floorplan Description

Rooms

Textual Property Features

Detected Visual Features

EPC Details

Nearby Schools

Nearest Bars And Restaurants

,,,,}

Nearest General Shops

,,}

Nearest Grocery shops

,,}

Nearest Supermarkets

,,}

Nearest Religious buildings

,,}

Nearest Medical buildings

,,,}

Nearest Airports

,}

Nearest Leisure Facilities

,,,,}

Nearest Tourist attractions

,,}

Nearest Train stations

,,,,}

Nearest Bus stations and stops

,,,,}

Nearest Hotels

,,}

Tags

Local Market Stats

Similar Properties

Meta

High Res Images

Compatible Images

Low res Images

Thumbnails

Raw Images

High Res Floorplan Images

Compatible Floorplan Images

Low res Floorplan Images

FloorplanImages Thumbnail

Raw Floorplan Images