**Standout Features:**
- 4 or 5 spacious bedrooms, 3 modern bathrooms
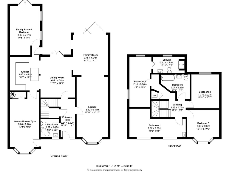
- Large, flexible living space of 2,000 square feet
- Mature, southerly-facing private garden
- 4 reception rooms, including a 22ft lounge and 18ft gym
- Centralized kitchen with high-quality integrated appliances
- Driveway parking for 2-3 vehicles
- Close proximity to excellent local schools and amenities
- New gas boiler installed in October 2024
- Chain-free sale for faster acquisition
- Potential for annexe creation or renovation
This impressive 4 or 5-bedroom detached house in Northchurch, Berkhamsted, seamlessly combines space, style, and flexibility, making it an ideal family home or investment opportunity. The property boasts a well-appointed 14ft refitted kitchen at its heart, leading to generous reception areas, including a 22ft lounge and an 18ft gym. Enjoy the benefits of a southerly-facing private garden, perfect for family gatherings or peaceful retreats.
With access to highly-rated schools such as St Mary's Primary and Ashlyns School, you’ll find this location great for families. The vibrant Berkhamsted High Street and the beautiful 5,000-acre Ashridge Estate are just minutes away, providing leisure and recreational opportunities. While the home is modern, the layout offers room for personal touches and potential extensions—ideal for those wanting to customize their environment.
Recent updates include a new 'Ideal' gas boiler, ensuring comfort and efficiency for years to come. This property is chain-free, inviting quick and straightforward ownership. Don’t miss out on the chance to own this gem in a highly sought-after area; schedule your viewing today and step into your dream home!
4 bedroom detached house for sale in High Street South, Northchurch, Berkhamsted, HP4 — £975,000 • 4 bed • 3 bath • 2000 ft²
3 bedroom terraced house for sale in High Street, Northchurch, Berkhamsted, HP4 — £600,000 • 3 bed • 2 bath • 1556 ft²
5 bedroom detached house for sale in Millfield, Berkhamsted, HP4 — £2,250,000 • 5 bed • 3 bath • 3373 ft²
4 bedroom semi-detached house for sale in Ashlyns Road, Berkhamsted, HP4 — £1,250,000 • 4 bed • 2 bath • 2560 ft²
3 bedroom link detached house for sale in Merling Croft, Northchurch, Berkhamsted, HP4 — £550,000 • 3 bed • 1 bath • 1040 ft²
5 bedroom detached house for sale in Coppins Close, Berkhamsted, Hertfordshire, HP4 — £1,150,000 • 5 bed • 2 bath • 1840 ft²






























































































