Spacious family home with workshop and elevated country outlook.
- Elevated position with wide open countryside views to the rear
- Significant extension providing very large overall internal space
- Detached triple-size garage/workshop plus long driveway parking
- Sundeck off main bedroom capturing south/west light and views
- Three reception rooms and attic room offer flexible living space
- Single family bathroom for three bedrooms may be limiting
- Solid brick walls likely without cavity insulation; energy upgrades suggested
- Small plot size relative to house; garden private but modest
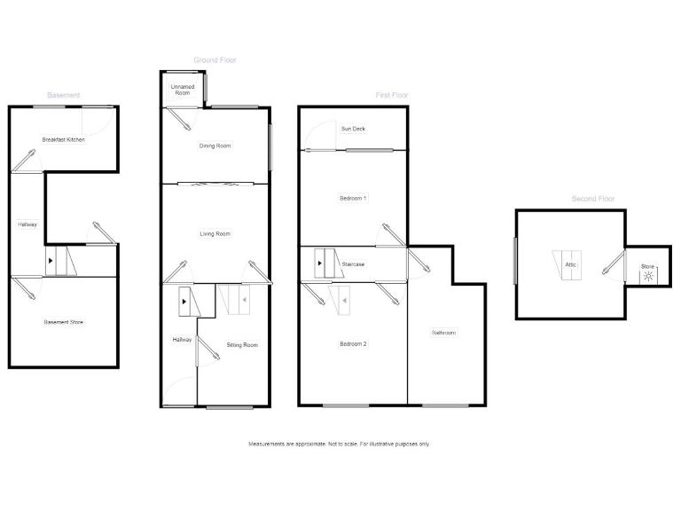
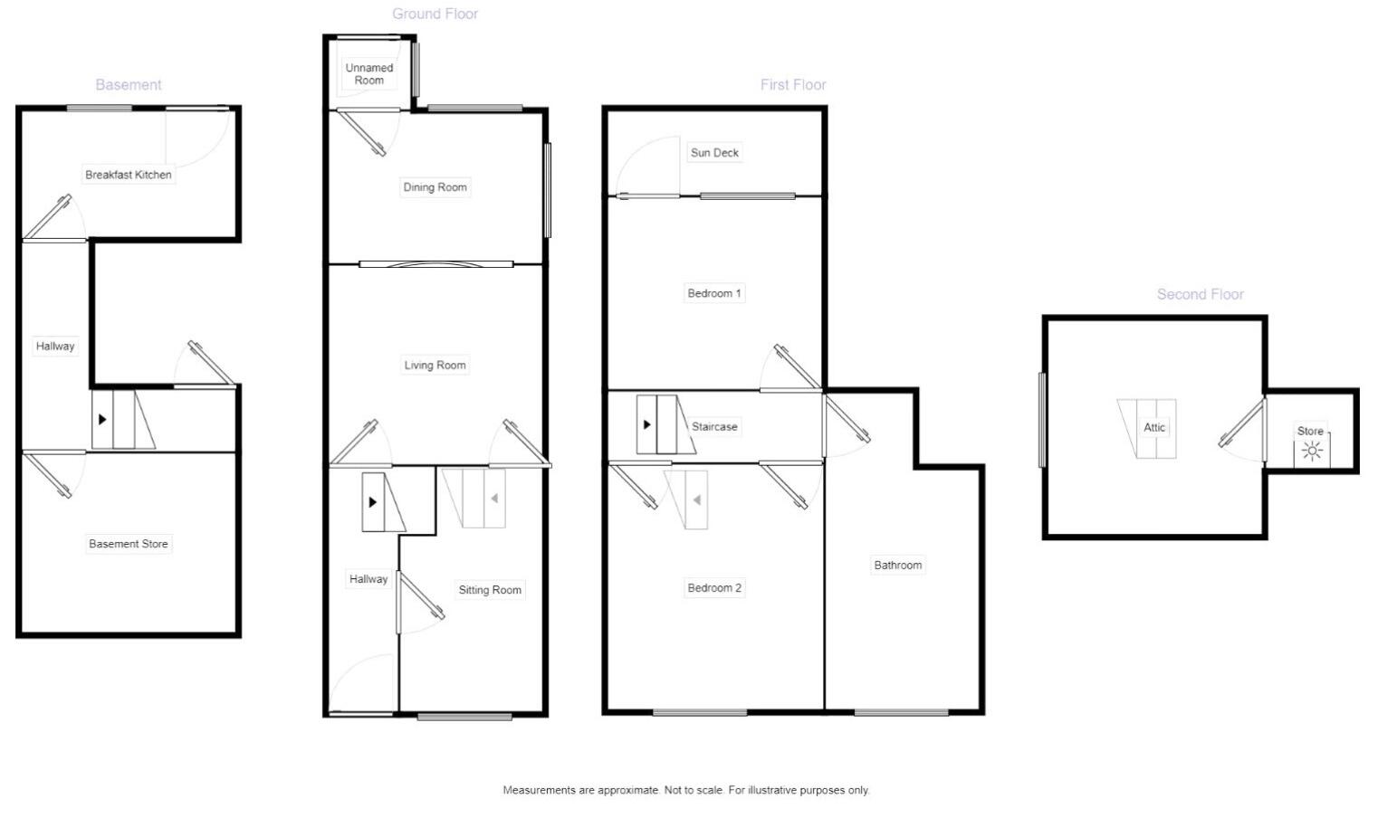
Set on an elevated plot with commanding open countryside vistas, this significantly extended semi-detached home offers generous living across four levels. The property makes the most of the view with multiple reception rooms and a sundeck off the main bedroom, ideal for morning sun or evening sunsets over Elsecar and Wentworth.
Accommodation includes a breakfast kitchen, three reception rooms, three good-size bedrooms plus an attic room, and a single well-appointed bathroom. Practical benefits include a detached triple-size garage/workshop, long driveway parking and an enclosed private rear garden. Recent updates noted are double glazing, upgraded electrics and a new boiler within the last year.
The house sits in a comfortable suburbia location with good local schools and low crime, yet it retains a countryside feel thanks to the outlook and nearby green spaces. The property is spacious (about 2,078 sqft) and suits a growing family wanting versatile reception space or someone seeking an adaptable home with workshop facilities.
Buyers should note the house is of solid-brick, early 20th-century construction and likely lacks cavity wall insulation; further energy-efficiency upgrades may be required. The plot is described as small relative to the house size, and there is only one bathroom for three bedrooms, which may influence family buyers. Viewing is recommended to appreciate the scale and outlook in person.
3 bedroom detached house for sale in Ellavale Road, Elsecar, Barnsley, S74 — £250,000 • 3 bed • 1 bath • 1278 ft²
4 bedroom detached house for sale in The Wheel, Ecclesfield, S35 — £550,000 • 4 bed • 2 bath
4 bedroom detached house for sale in Poucher Street, Rotherham, S61 — £550,000 • 4 bed • 2 bath • 2486 ft²
3 bedroom semi-detached house for sale in Barnsley Road, Wombwell, Barnsley, South Yorkshire, S73 — £185,000 • 3 bed • 1 bath
5 bedroom detached house for sale in Poplar Road, Wombwell, Barnsley, South Yorkshire, S73 — £435,000 • 5 bed • 2 bath • 1680 ft²
3 bedroom semi-detached house for sale in Upper Wortley Road, Scholes, Rotherham, S61 — £240,000 • 3 bed • 1 bath • 1018 ft²










































































































































