Chain-free project with garage and parking; ideal for family renovation.
Chain-free detached bungalow on a quiet road
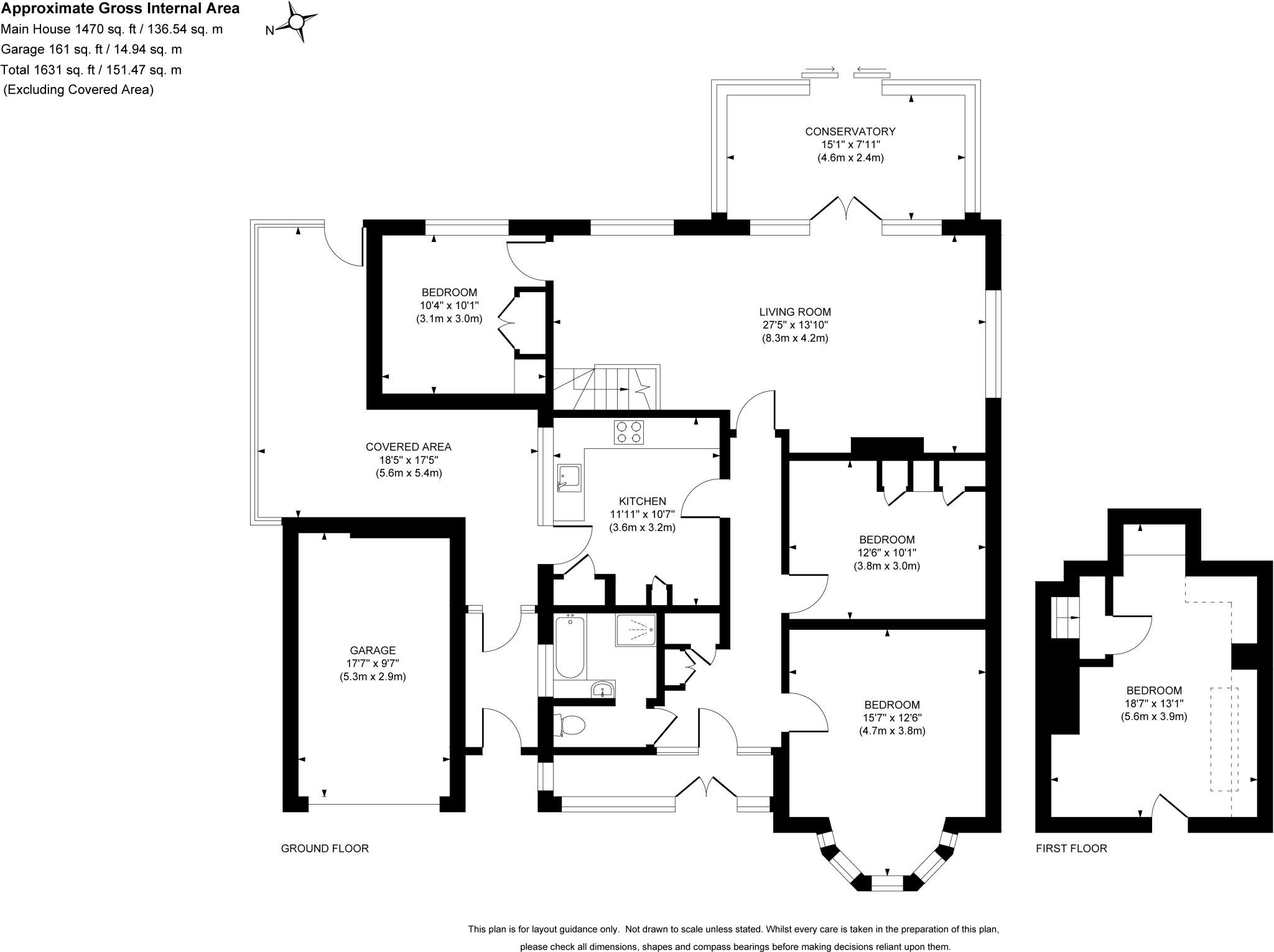
Set on a quiet road in Woking, this chain-free, four-bedroom detached bungalow occupies a generous plot with a large rear garden and garage. The property has clear scope for improvement: interiors and the kitchen date from the 1970s–80s and require modernisation, offering a straightforward refurbishment project for a family or investor.
Accommodation is arranged mainly at ground-floor level with an additional attic/first-floor room, one bathroom and separate WC. The footprint and plot suggest potential to reconfigure or extend (subject to planning), including a loft conversion opportunity for more living space. Off-street parking and a paved driveway add everyday convenience.
Key positives include freehold tenure, very low local crime, fast broadband, and proximity to several well-regarded primary and secondary schools. Practical drawbacks are the dated fixtures and finishes throughout, likely need for updating of services and kitchens, only one main bathroom, and the property’s expensive council tax banding. Buyers should allow budget for refurbishment and any necessary permissions.
This house will suit families who want space to personalise in a highly qualified, affluent area, or investors seeking a renovation project in a strong suburban market. Viewings are recommended for those looking to add value through sympathetic updating while retaining the property’s mid-20th-century character.
 4 bedroom detached house for sale in Hillside, Woking, Surrey, GU22 — £675,000 • 4 bed • 1 bath • 1329 ft²
 4 bedroom detached house for sale in Hillside, Woking, Surrey, GU22 — £675,000 • 4 bed • 1 bath • 1329 ft² 4 bedroom bungalow for sale in Coldharbour Lane, Woking, Surrey, GU22 — £950,000 • 4 bed • 2 bath • 1266 ft²
 4 bedroom bungalow for sale in Coldharbour Lane, Woking, Surrey, GU22 — £950,000 • 4 bed • 2 bath • 1266 ft² 2 bedroom bungalow for sale in Bridge Court, Horsell, Surrey, GU21 — £425,000 • 2 bed • 2 bath • 916 ft²
 2 bedroom bungalow for sale in Bridge Court, Horsell, Surrey, GU21 — £425,000 • 2 bed • 2 bath • 916 ft² 3 bedroom semi-detached bungalow for sale in Mayhurst Crescent, Woking, GU22 — £475,000 • 3 bed • 1 bath • 1240 ft²
 3 bedroom semi-detached bungalow for sale in Mayhurst Crescent, Woking, GU22 — £475,000 • 3 bed • 1 bath • 1240 ft² 4 bedroom detached house for sale in Turnoak Avenue, Woking, Surrey, GU22 — £1,000,000 • 4 bed • 2 bath • 1685 ft²
 4 bedroom detached house for sale in Turnoak Avenue, Woking, Surrey, GU22 — £1,000,000 • 4 bed • 2 bath • 1685 ft² 3 bedroom bungalow for sale in Wych Hill Way, Woking, Surrey, GU22 — £899,950 • 3 bed • 1 bath • 834 ft²
 3 bedroom bungalow for sale in Wych Hill Way, Woking, Surrey, GU22 — £899,950 • 3 bed • 1 bath • 834 ft²










































































