**Standout Features:**
- 5 spacious bedrooms, including a luxurious master suite with ensuite
- Generous 0.26 Acre corner plot in private gated community
- Open plan living with bifold doors to landscaped rear garden
- Stylish finishes throughout with underfloor heating on the ground floor
- Chain-free sale, ready for quick occupancy
- Potential for expansion with built-in attic trusses
**Notable Concerns:**
- Expensive council tax
- Possible maintenance required depending on future plans
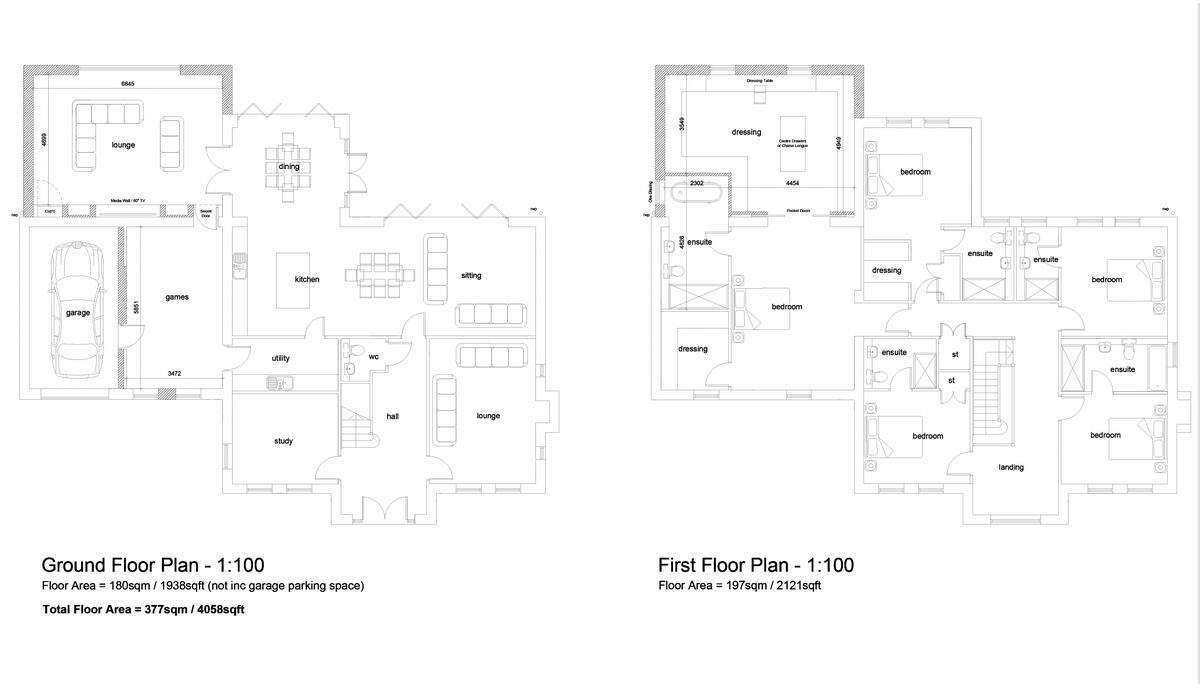
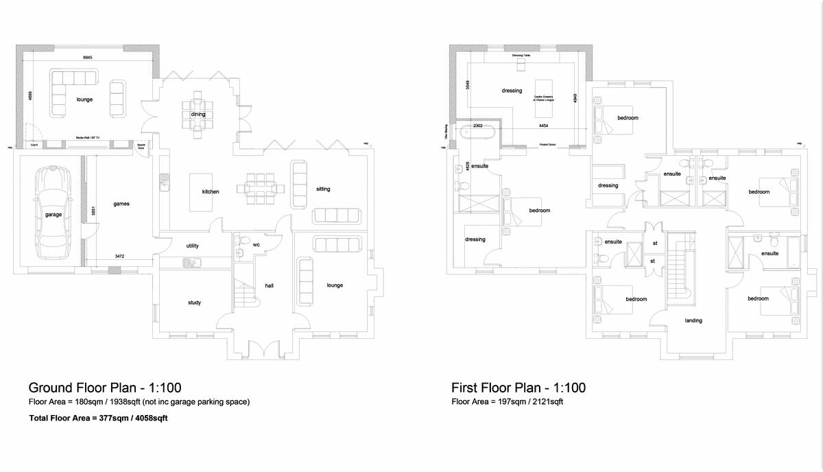
Nestled within the exclusive gated community of Manorside, Billingham, this stunning 5-bedroom detached home offers luxury living with 4,058 sqft of meticulously finished space. Positioned on a generous corner plot, the property boasts beautifully landscaped gardens and a grand entrance that sets the tone for a home designed for comfort and elegance. Inside, the open plan living area features a modern kitchen with a large island, seamlessly connecting to the outdoor space—ideal for entertaining during the warmer months.
The master suite is a standout feature that includes a vaulted ceiling, a dressing room, and an opulent ensuite bathroom perfect for relaxation. With additional generous bedrooms, a games room, and a dedicated office, this home accommodates families of all sizes. While the area has higher council tax rates, the charm and exclusivity of this home make it a perfect choice for families seeking a serene yet sophisticated lifestyle. The potential expansion possibilities through the attic trusses make this property even more appealing for future personalization.
This home is chain-free, making it an ideal option for those looking to move quickly into a well-finished, sought-after location. Don't miss out on the opportunity to make this remarkable residence your own!
6 bedroom detached house for sale in Duke of Wellington Gardens, Wynyard, Billingham, TS22 — £1,100,000 • 6 bed • 1 bath • 4985 ft²
5 bedroom detached house for sale in Manorside, Wynyard, TS22 — £1,750,000 • 5 bed • 5 bath • 8116 ft²
5 bedroom detached house for sale in The Beaumont, Wynyard, TS22 — £1,250,000 • 5 bed • 5 bath • 6157 ft²
5 bedroom detached house for sale in Duke Of Wellington Gardens, Wynyard, TS22 — £900,000 • 5 bed • 4 bath • 4941 ft²
6 bedroom detached house for sale in Manor House, The Grange, Wingate, County Durham, TS28 5LY, TS28 — £1,200,000 • 6 bed • 3 bath • 4295 ft²
5 bedroom detached house for sale in The Beaumont, Wynyard, TS22 — £1,250,000 • 5 bed • 5 bath • 5673 ft²














































































































































































































































































































































































































































