Corner plot with wrap-around garden and patio seating
Double garage plus large driveway for multiple vehicles
Open-plan kitchen/diner with breakfast bar and utility room
Master bedroom with ensuite; three further bedrooms
Built 2020 — modern build, low maintenance expected
Freehold and no forward chain for quicker completion
Council tax band above average — factor in running costs
Neighbourhood skewed older (retirement/ageing suburbanites)
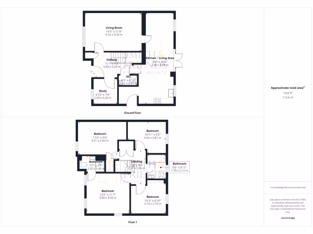
Set on a generous corner plot, this modern four-bedroom detached house (The Radleigh design) offers family-friendly living across three storeys. Built in 2020 and arranged around an open-plan kitchen/diner, the layout includes a separate lounge, additional reception room, utility and cloakroom — practical spaces for everyday life and entertaining.
The master bedroom has an ensuite and there are three further bedrooms plus a family bathroom, providing comfortable sleeping accommodation for a growing family. Outside, gardens wrap the property with a patio seating area, side access, a large driveway and a double garage — good space for cars, bikes and hobbies.
Practical details suit modern household needs: mains gas boiler with radiators, fast broadband and excellent mobile signal. The property is freehold and being sold with no forward chain, which can speed completion. Nearby schools and local shops are within easy reach.
A few factors to note: council tax sits above average for the area, and the wider neighbourhood is classified as ageing suburbanites/retirement living, which may affect local demographics. Overall the home presents low maintenance, contemporary living with clear potential for family use or investment rental income.
3 bedroom detached house for sale in Hanbury Grove, Elwick Gardens, Hartlepool, TS26 — £259,000 • 3 bed • 2 bath • 1006 ft²
4 bedroom detached house for sale in Northbrook Court, Hartlepool, TS26 — £425,000 • 4 bed • 1 bath • 1970 ft²
4 bedroom detached house for sale in Bodnant Close, Hartlepool, TS26 0GD, TS26 — £240,000 • 4 bed • 2 bath • 1054 ft²
3 bedroom detached house for sale in Hartside Gardens, Hartlepool, TS26 — £210,000 • 3 bed • 2 bath • 1163 ft²
4 bedroom detached house for sale in Hanbury Grove, Elwick Gardens, Hartlepool, TS26 — £265,000 • 4 bed • 2 bath • 1324 ft²
4 bedroom detached house for sale in Austen Close, Billingham, TS23 — £360,000 • 4 bed • 2 bath • 1260 ft²










































































