Compact Windsor home steps from shops, green space and historic sights.
Chain free one-bedroom first-floor apartment
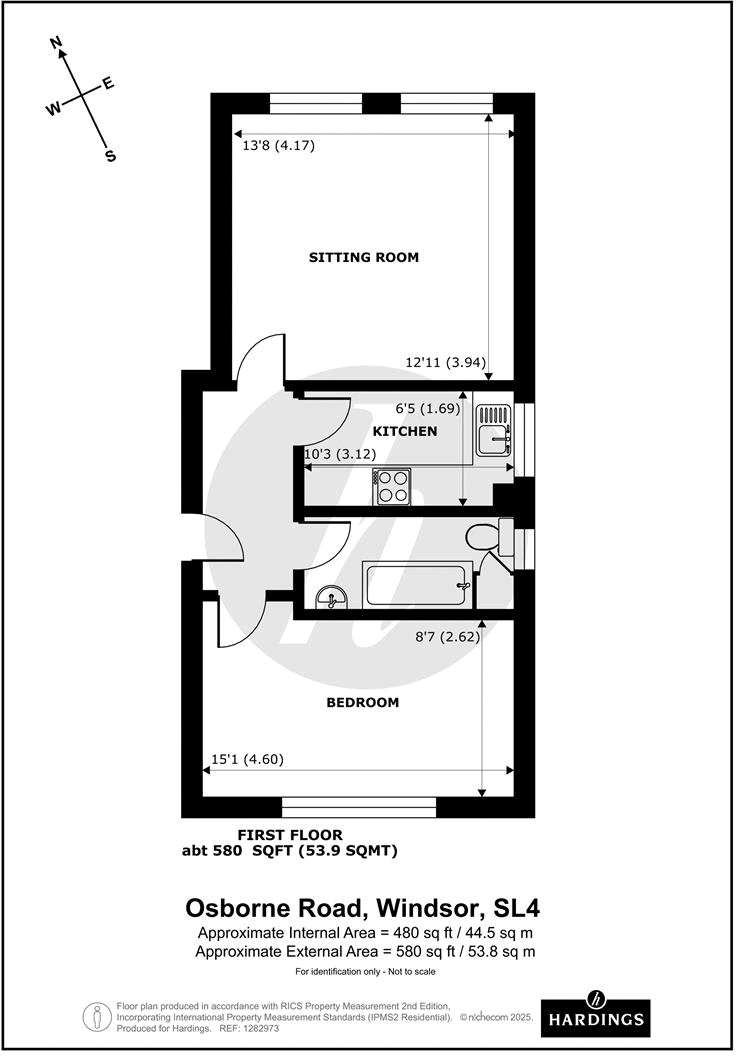
A bright one-bedroom first-floor apartment in a converted Victorian building, offered chain free and ready for immediate occupation. High ceilings and large windows give the reception diner a spacious, airy feel, while views across to Windsor Castle add a rare local landmark outlook. The separate kitchen includes integrated appliances, and the flat comes with convenient off-street parking — useful in a town-centre location.
At about 480 sq ft, the layout suits a single occupier or couple seeking a compact, well-located home and represents an accessible entry into Windsor property ownership at £300,000. The long lease (141 years remaining) provides security for buyers and makes the flat straightforward to mortgage. Nearby amenities include the town centre, the Long Walk, and a range of primary and secondary schools.
Buyers should note the property is leasehold with an average annual service charge of £1,645; check what this covers. The building’s solid-brick, pre-1900 construction means period charm but may also produce higher heating costs unless upgraded; wall insulation is assumed absent. The apartment’s modest size and single bathroom mean limited space compared with larger family homes, so it best suits downsizers, first-time buyers or investors seeking a low-maintenance Windsor base.
 1 bedroom flat for sale in Alma Road, Windsor, SL4 — £325,000 • 1 bed • 1 bath • 632 ft²
 1 bedroom flat for sale in Alma Road, Windsor, SL4 — £325,000 • 1 bed • 1 bath • 632 ft² 1 bedroom flat for sale in Alma Road, Windsor, SL4 — £225,000 • 1 bed • 1 bath • 381 ft²
 1 bedroom flat for sale in Alma Road, Windsor, SL4 — £225,000 • 1 bed • 1 bath • 381 ft² 1 bedroom flat for sale in Green Lane, Windsor, SL4 — £300,000 • 1 bed • 1 bath • 601 ft²
 1 bedroom flat for sale in Green Lane, Windsor, SL4 — £300,000 • 1 bed • 1 bath • 601 ft² 1 bedroom flat for sale in Queen Annes Road, Windsor, SL4 — £300,000 • 1 bed • 1 bath • 493 ft²
 1 bedroom flat for sale in Queen Annes Road, Windsor, SL4 — £300,000 • 1 bed • 1 bath • 493 ft² 1 bedroom apartment for sale in Oxford Road, Windsor, SL4 — £250,000 • 1 bed • 1 bath • 456 ft²
 1 bedroom apartment for sale in Oxford Road, Windsor, SL4 — £250,000 • 1 bed • 1 bath • 456 ft² 2 bedroom maisonette for sale in Osborne Court, Osborne Road, Windsor, SL4 — £375,000 • 2 bed • 1 bath • 666 ft²
 2 bedroom maisonette for sale in Osborne Court, Osborne Road, Windsor, SL4 — £375,000 • 2 bed • 1 bath • 666 ft²


















































