**Standout Features:**
- Spacious 5-bedroom end-terraced house
- Central village location in scenic Llanuwchllyn
- Enclosed garden with summerhouse and shed
- Distant views of Llyn Tegid and surrounding mountains
- 14 solar panels installed for energy efficiency
- Electric heating system and well-presented interiors
- Freehold tenure, chain-free sale
**Concerns:**
- Potential damp issues
- No formal building survey conducted recently
- Limited insulation and dated exterior
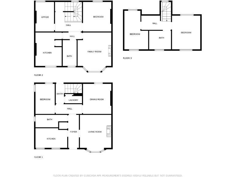
Discover the charm of **Ty Aran**, a well-presented 5-bedroom end-terrace property nestled in the heart of **Llanuwchllyn**, within the **Snowdonia National Park**. This spacious home, arranged over three storeys, is perfect for families seeking a peaceful rural lifestyle while remaining close to village amenities and outdoor pursuits. Enjoy the enclosed garden, which features a delightful summerhouse and provides breathtaking distant views of **Llyn Tegid**.
Boasting generous living spaces and good-sized bedrooms, Ty Aran allows for comfortable family living or even rental potential for investors. The house has been fitted with **14 solar panels** for environmentally conscious buyers. While the property holds a warm and inviting atmosphere, it's essential to be aware of potential damp issues and the need for insulation upgrades. This is a **freehold property** with no active planning applications, offering flexibility for future renovations. Don't miss your chance to own a piece of countryside bliss—properties like this don't last long!
5 bedroom end of terrace house for sale in Llanuwchllyn, Bala, LL23 — £265,000 • 5 bed • 3 bath • 2027 ft²
5 bedroom semi-detached house for sale in 17 Ffrydan Road, Bala, LL23 — £285,000 • 5 bed • 4 bath • 1658 ft²
6 bedroom semi-detached house for sale in Ty'r Hen Gapel, Llanuwchllyn, LL23 — £399,000 • 6 bed • 1 bath • 2045 ft²
3 bedroom detached house for sale in Llanymawddwy, Machynlleth, Gwynedd, SY20 — £395,000 • 3 bed • 3 bath • 1819 ft²
6 bedroom semi-detached house for sale in Llanuwchllyn, Bala, LL23 — £550,000 • 6 bed • 2 bath • 3230 ft²
3 bedroom detached bungalow for sale in Swn Yr Afon, Rhydymain, Dolgellau, LL40 2AS, LL40 — £300,000 • 3 bed • 2 bath • 1668 ft²






































































































































