**Standout Features:**
- Spacious 5-bedroom, 2-bathroom semi-detached house
- Approx. 2,675 sq ft living space
- Beautiful bay windows and period features
- Generous garden and off-street parking
- Chain-free with high-speed broadband
- Excellent transport links (0.4 miles to East Finchley Underground Station)
**Notable Aspects:**
- Above-average local crime rates
- Higher council tax bracket
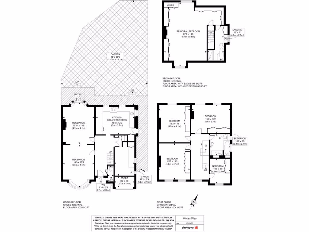
Nestled in a highly sought-after area of East Finchley, this impressive Georgian semi-detached family home offers a delightful combination of spacious living and contemporary convenience. With five large bedrooms and extensive living areas, including a charming bay-windowed reception room, separate family room, and a generous kitchen/breakfast area, this residence is designed for both relaxation and entertaining.
The standout feature is the fantastic principal suite on the second floor, complete with bespoke storage and an ensuite bathroom for added privacy. A beautifully maintained garden leads to an inviting patio, perfect for outdoor gatherings. While the property requires some modernization, its solid structure and superb location—within walking distance of excellent schools and local amenities—present endless opportunities for customization.
This is more than just a home; it's a sanctuary in a vibrant community with great potential for families or investors looking for a future-proof investment. Act quickly—properties like this, with such spacious layouts and feature-rich environments, are hard to come by!
5 bedroom semi-detached house for sale in Talbot Avenue, London, N2 — £1,500,000 • 5 bed • 2 bath • 2014 ft²
5 bedroom semi-detached house for sale in Abbots Gardens, London, N2 — £1,650,000 • 5 bed • 2 bath • 1814 ft²
4 bedroom semi-detached house for sale in Hertford Road, London, N2 — £1,600,000 • 4 bed • 3 bath • 1973 ft²
5 bedroom terraced house for sale in Lynmouth Road, East Finchley, London, N2 — £1,500,000 • 5 bed • 2 bath • 1841 ft²
4 bedroom house for sale in Ingram Road, London, N2 — £1,500,000 • 4 bed • 3 bath • 2038 ft²
5 bedroom semi-detached house for sale in Creighton Avenue, London, N2 — £1,795,000 • 5 bed • 3 bath • 2193 ft²


























































